不動産 賃貸 マンション等の住宅情報:埼玉住まい情報


鹿児島県南九州市川辺町田部田の一戸建て:物件詳細

  • 物件詳細
  • 情報の見方
  • 印刷用画面
交通
所在地
駅徒歩 価格 間取り
建物面積
土地面積
私道負担面積
物件種目
築年月

【バス】田部田中通り 停歩2分

鹿児島県南九州市川辺町田部田


500万円

5DK

132.29m²

661.72m²

中古一戸建て

1973年1月(築53年3ヶ月)

おすすめPOINT駐車場3台分以上、南向き、隣接建物距離2m以上

おすすめコメント

昭和レトロな平屋で自分好みのDIYを満喫!広々90坪の畑付きで、憧れの家庭菜園や自給自足も叶います。川辺の豊かな自然と静かな環境で、のんびり田舎暮らしを始めませんか?

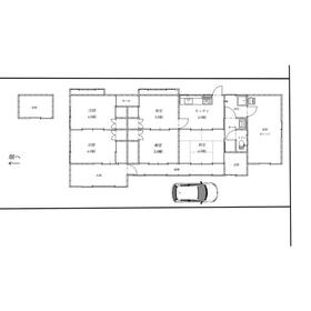
間取図

間取図

玄関

玄関

昭和時代の懐かしく趣のある玄関

<
その他の画像
  • 駐車場
  • 室内
  • 室内
  • 室内
  • 設備
  • バス/シャワー
  • トイレ
  • 収納
  • 庭
  • その他
  • 室内
  • 外観
  • 外観
>
    • とりあえず保存
    • お問い合わせ
    交通

    【バス】 田部田中通り 停歩2分

    所在地 鹿児島県南九州市川辺町田部田
    物件種目 中古一戸建て
    価格 500万円 借地期間・地代(月額)
    権利金 敷金または保証金 - / -
    維持費等 その他一時金
    間取り 5DK(和 6・5・5 洋 6・6 DK 6) 建物面積 132.29m²
    土地権利 所有権 建物構造 木造
    土地面積 661.72m²(公簿) 私道負担面積
    築年月 1973年1月(築53年3ヶ月) 都市計画 非線引区域
    建物名   建築確認番号
    用途地域 1種住居 駐車場 有 無料
    建ぺい率 容積率
    階建 平屋建 接道状況 東 3.0m 公道 接面16.9m
    地目 宅地 地勢 雛段
    国土法届出 セットバック
    アピールポイント 昭和48年築の趣ある平屋は、DIYやリノベーションのベースに最適。古き良き雰囲気を活かしつつ、モダンな住空間へ作り替える楽しみがあります。平屋ならではの階段のない生活は、長く住み続ける住居として大きな魅力です。自宅のすぐ横で、本格的な家庭菜園や果樹栽培を楽しめます。収穫したての新鮮な野菜が食卓に並ぶ、贅沢な日常が手に入ります。母屋に続いて倉庫兼ガレージと、畑用具等が収納できる倉庫が有り、建物面積に算入しておりません。
    リフォーム履歴
    リノベーション履歴
    瑕疵保証
    瑕疵保険
    評価・証明書
    備考
    主要採光面:南向き
    エネルギー消費性能
    断熱性能
    目安光熱費
    バス・トイレ 浴室に窓あり
    キッチン
    設備・サービス 出窓、上水道、プロパンガス
    その他
    現況 所有者居住中 引渡可能時期 相談
    物件番号 6989771799 仲介手数料 33万円
    情報公開日 2026年3月5日 次回更新予定日 2026年4月2日
    ケータイ用バーコード

    QRコード

    スマートフォンでこの物件を見る
    スマートフォンからもこの物件をご覧になれます。
    ※「-」と表示されている項目については、情報提供会社にご確認ください。

    クイックお問い合わせ

    ここから簡単にお問い合わせをすることができます。
    (SSLでの暗号化での送信を希望されるお客さまは こちら よりお問い合わせください)

    お問い合わせ内容(必須)
    お名前(必須) 姓  名 
    メールアドレス(必須)
    ※携帯電話のメールアドレスをご入力される方はこちらをご確認ください
    電話番号(必須)
    - -

    ※入力いただいた電話番号へSMSまたは音声でパスワードをご連絡します。

    携帯電話の番号をご入力の方へ

    携帯電話の番号をご入力の方へ
    確認画面にて送信ボタンをクリックするとSMSが携帯電話に届きます。
    そのSMSに記載のパスワード(認証番号)を入力し、お問い合わせを完了してください。
    尚、SMSの送信者番号は 0005 202 760 となります。
    これはアットホームの固定番号です。

    備考欄 希望条件、物件案内希望日、質問などがございましたらご記入ください。
    お問い合わせを行う前に「個人情報の取り扱いについて」を必ずお読みください。
    「個人情報の取り扱いについて」に同意いただいた場合は「上記にご同意の上 確認画面へ進む」のボタンをクリックしてください。

    個人情報の取り扱いについて

    皆さまが送付された個人情報はアットホーム(株)のサーバを経由し、お問い合わせ先の不動産会社にメールまたはFAXにて転送されるためアットホーム(株)にも保管されます。アットホーム(株)で保管された個人情報の取り扱いについては、【こちら】をご覧ください。
    また、本画面でご記入いただいた個人情報は、お問い合わせ先の不動産会社でも保管します。 お問い合わせ先の不動産会社が保管する個人情報の取り扱いについては、不動産会社に直接お問い合わせください。

    情報提供会社

    情報提供会社

    (株)Kプロパティーズ

    鹿児島県知事免許(3)第5804号

    交通:
    【バス】 原良小前 停歩2分
    鹿児島県鹿児島市城西2丁目6-27 義山ビル101
    TEL:
    099-206-2255
    FAX:
    099-297-5030
    所属団体:
    (公社)鹿児島県宅地建物取引業協会会員
    (一社)九州不動産公正取引協議会加盟

    取引態様:専属専任媒介

    • 会社情報
    • 80501385
    スマートフォンで
    この不動産会社を見る
    QRコード
    • とりあえず保存
    • お問い合わせ
    • 提携サイト等より掲載されている物件情報につきましては、不動産会社詳細情報にリンクされていないものがあります。
    • 物件に関するお問合せは、物件詳細ページの「情報提供会社」に表示されている不動産会社へ直接お願いいたします。
    • 間取図は、現況を優先させていただきます。
    • 映像は物件の一部を撮影したものです。物件の契約にあたっての最終判断はご自身の判断に基づいて行ってください。
    • 仲介手数料について仲介手数料

    アットホームは物件情報の適正化に努めております。 内容に誤りがある場合にはこちらへご連絡ください。

    【埼玉住まい情報】では、日本全国の物件から賃貸マンションや賃貸アパート・賃貸一戸建て等の賃貸住宅情報、新築マンション・分譲マンションや中古マンション等の売買マンション情報、新築一戸建てや中古一戸建てなどの戸建住宅、 土地など、総合的な不動産住宅情報検索サービスを提供致します。
    【埼玉住まい情報】から、選りすぐりの不動産物件を探してみましょう。

    【免責事項】
    このコーナーの運営はアットホーム株式会社(https://www.athome.co.jp/)が行っています。
    このコーナーに掲載している物件情報は、「アットホーム不動産情報ネットワーク」に加盟する不動産会社等(情報提供元)から提供されています。信頼性の高い情報提供が行えるよう、最大限の努力をしておりますが、その内容を保証するものではありません。 利用者のみなさまと各情報提供元との取引に起因する損害および情報が掲載されたことに起因する損害等については、株式会社イーシティ埼玉、およびアットホームは一切責任を負いません。
    各物件情報の内容や画像等はすべて現況を優先させていただきます。
    お取引等(お取引の準備、資金調達等を含みます)の際には、内容や契約条件等について、各情報提供元より十分な説明を受け、ご自身でご確認の上、判断してください。
    このコーナーへの物件情報のご掲載、その他不動産業務ソリューション等についての不動産会社様のお問合せはこちらからお願いいたします。

    物件画像: