新潟県新潟市北区松浜6丁目(新崎駅)の一戸建て:物件詳細
交通 所在地 |
駅徒歩 |
価格 |
間取り 建物面積 |
土地面積 私道負担面積 |
物件種目 築年月 |
|
JR白新線/新崎
新潟県新潟市北区松浜6丁目
|
57分
|
1,600万円
|
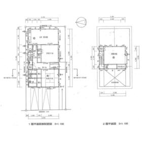
3LDK
100.19m²
|
140.46m²
なし
|
中古一戸建て
2018年10月(築7年6ヶ月)
|
|
南向き
|
|
間取図
|
案内図
|
<
その他の画像
>
|
| 交通 | JR白新線 新崎駅 徒歩57分 |
| 所在地 |
新潟県新潟市北区松浜6丁目
|
| 物件種目 |
中古一戸建て |
| 価格 |
1,600万円 |
借地期間・地代(月額) |
- |
| 権利金 |
- |
敷金または保証金 |
- / - |
| 維持費等 |
- |
その他一時金 |
なし |
| 間取り |
3LDK(和 8 洋 8・10 LDK 12) |
建物面積 |
100.19m² |
| 土地権利 |
所有権 |
建物構造 |
木造 |
| 土地面積 |
140.46m²(公簿) |
私道負担面積 |
なし |
| 築年月 |
2018年10月(築7年6ヶ月)
|
都市計画 |
市街化区域 |
| 建物名 |
新潟市北区松浜6丁目 売家 |
建築確認番号 |
- |
| 用途地域 |
1種中高 |
駐車場 |
有 無料 |
| 建ぺい率 |
60% |
容積率 |
200% |
| 階建 |
2階建 |
接道状況 |
-
|
| 地目 |
宅地 |
地勢 |
平坦 |
| 国土法届出 |
- |
セットバック |
- |
| アピールポイント |
車椅子対応のバリアフリー住宅です。
駐車場から玄関まで、ゆるいスロープになっています。
玄関かまちと言われる段差もありません。
1階の和室、洋室、LDK,トイレ、浴室、全て段差がありません。
騒音対策のエアコンが1台設置されています。
もう1台のエアコンは売主様が設置しました。
駐車場の物置は北側に設置して、雪の吹込みを軽減しています。
駐車場は、屋根付きカーポートとなっており、大事なお車を、炎天、雨、雪から守ってくれます。 |
| リフォーム履歴 |
- |
| リノベーション履歴 |
- |
| 瑕疵保証 |
- |
| 瑕疵保険 |
- |
| 評価・証明書 |
■建物状況調査 申込対応可 |
| 備考 |
主要採光面:南向き
|
| エネルギー消費性能 |
- |
| 断熱性能 |
- |
| 目安光熱費 |
- |
| バス・トイレ |
- |
| キッチン |
- |
| 設備・サービス |
全居室収納、エアコン2台以上、クローゼット、モニター付インターホン、上水道、下水道、都市ガス、電気、側溝、複層ガラス |
| その他 |
- |
| 現況 |
所有者居住中 |
引渡可能時期 |
相談 |
| 物件番号 |
6989917194 |
仲介手数料 |
59.4万円 |
| 情報公開日 |
2026年3月14日 |
次回更新予定日 |
2026年3月28日 |
| ケータイ用バーコード |
- スマートフォンでこの物件を見る
- スマートフォンからもこの物件をご覧になれます。
|
※「-」と表示されている項目については、情報提供会社にご確認ください。
| 周辺施設 |
新潟市立松浜小学校 |
| 距離 |
390m |
写真を見る |
| 周辺施設 |
新潟市立松浜中学校 |
| 距離 |
339m |
写真を見る |
ここから簡単にお問い合わせをすることができます。
(SSLでの暗号化での送信を希望されるお客さまは
こちら
よりお問い合わせください)
お問い合わせを行う前に
「個人情報の取り扱いについて」を必ずお読みください。
「個人情報の取り扱いについて」に同意いただいた場合は「上記にご同意の上 確認画面へ進む」のボタンをクリックしてください。
個人情報の取り扱いについて
皆さまが送付された個人情報はアットホーム(株)のサーバを経由し、お問い合わせ先の不動産会社にメールまたはFAXにて転送されるためアットホーム(株)にも保管されます。アットホーム(株)で保管された個人情報の取り扱いについては、【こちら】をご覧ください。
また、本画面でご記入いただいた個人情報は、お問い合わせ先の不動産会社でも保管します。 お問い合わせ先の不動産会社が保管する個人情報の取り扱いについては、不動産会社に直接お問い合わせください。
新潟県知事免許(15)第726号 |
|---|
- 新潟県新潟市北区松浜東町2丁目4番58号
- TEL:
- 025-259-5211
- FAX:
- 025-259-4439
- 所属団体:
- (公社)新潟県宅地建物取引業協会会員(公社)首都圏不動産公正取引協議会加盟
取引態様:専任媒介  - 00268538
|
- スマートフォンで
この不動産会社を見る

|
- 提携サイト等より掲載されている物件情報につきましては、不動産会社詳細情報にリンクされていないものがあります。
- 物件に関するお問合せは、物件詳細ページの「情報提供会社」に表示されている不動産会社へ直接お願いいたします。
- 間取図は、現況を優先させていただきます。
- 映像は物件の一部を撮影したものです。物件の契約にあたっての最終判断はご自身の判断に基づいて行ってください。
- 仲介手数料について

アットホームは物件情報の適正化に努めております。
内容に誤りがある場合にはこちらへご連絡ください。