愛知県豊橋市柱五番町(愛知大学前駅)の一戸建て:物件詳細
交通 所在地 |
駅徒歩 |
価格 |
間取り 建物面積 |
土地面積 私道負担面積 |
物件種目 築年月 |
|
豊橋鉄道渥美線/愛知大学前
愛知県豊橋市柱五番町
|
18分
|
3,450万円
|
4LDK
116.70m²
|
157.99m²
-
|
中古一戸建て
2020年9月(築5年7ヶ月)
|
|
駐車場3台分以上、バス1坪以上、閑静な住宅街、整形地、長期優良住宅(耐震、省エネ性等高い)
|
|
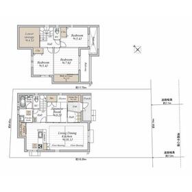
間取図
|
リビング
|
<
その他の画像
>
|
| 交通 | 豊橋鉄道渥美線 愛知大学前駅 徒歩18分 |
|---|
| その他の交通 | 豊橋鉄道渥美線 小池駅 徒歩21分 東海道新幹線 豊橋駅 徒歩27分 |
| 所在地 |
愛知県豊橋市柱五番町
|
| 物件種目 |
中古一戸建て |
| 価格 |
3,450万円 |
借地期間・地代(月額) |
- |
| 権利金 |
- |
敷金または保証金 |
- / - |
| 維持費等 |
- |
その他一時金 |
- |
| 間取り |
4LDK(和 5.2 洋 7・5.4・5.4) |
建物面積 |
116.70m² |
| 土地権利 |
所有権 |
建物構造 |
木造 |
| 土地面積 |
157.99m²(公簿) |
私道負担面積 |
- |
| 築年月 |
2020年9月(築5年7ヶ月)
|
都市計画 |
市街化区域 |
| 建物名 |
|
建築確認番号 |
- |
| 用途地域 |
工業地域 |
駐車場 |
有 無料 |
| 建ぺい率 |
60% |
容積率 |
200% |
| 階建 |
2階建 |
接道状況 |
南東 7.1m 公道 接面8.7m
|
| 地目 |
宅地 |
地勢 |
- |
| 国土法届出 |
- |
セットバック |
- |
| アピールポイント |
◆築浅戸建です。室内大変きれいにお使いです。
◆駐車3台可。急な来客なども安心です♪
◆長期優良住宅取得物件!
◆都市ガス設備有り
◆床暖房あり
◆広々4LDK、1階にも一部屋ございますので、来客の多い方やファミリーにも使いやすい間取りです♪
◆周辺にはドラッグストアやドン・キホーテなど商業施設も多く、大変利便性の良い立地です。 |
| リフォーム履歴 |
- |
| リノベーション履歴 |
- |
| 瑕疵保証 |
- |
| 瑕疵保険 |
- |
| 評価・証明書 |
■長期優良住宅認定通知書 長期優良住宅認定通知書あり |
| 備考 |
主要採光面:南東向き
施工会社:株式会社玉善
|
| エネルギー消費性能 |
- |
| 断熱性能 |
- |
| 目安光熱費 |
- |
| バス・トイレ |
浴室乾燥機、追焚機能、トイレ2ヶ所、浴室に窓あり |
| キッチン |
カウンターキッチン、オープンキッチン、3口以上コンロ |
| 設備・サービス |
全居室収納、ウォークインクローゼット、床暖房、シューズインクローゼット、クローゼット、モニター付インターホン、ディンプルキー、全居室フローリング、上水道、下水道、都市ガス、電気、側溝、人感センサー付照明、ダウンライト |
| その他 |
- |
| 現況 |
所有者居住中 |
引渡可能時期 |
相談 |
| 物件番号 |
6989949453 |
仲介手数料 |
売買代金の3%+6万円 |
| 情報公開日 |
2026年3月21日 |
次回更新予定日 |
2026年4月9日 |
| ケータイ用バーコード |
- スマートフォンでこの物件を見る
- スマートフォンからもこの物件をご覧になれます。
|
※「-」と表示されている項目については、情報提供会社にご確認ください。
ここから簡単にお問い合わせをすることができます。
(SSLでの暗号化での送信を希望されるお客さまは
こちら
よりお問い合わせください)
お問い合わせを行う前に
「個人情報の取り扱いについて」を必ずお読みください。
「個人情報の取り扱いについて」に同意いただいた場合は「上記にご同意の上 確認画面へ進む」のボタンをクリックしてください。
個人情報の取り扱いについて
皆さまが送付された個人情報はアットホーム(株)のサーバを経由し、お問い合わせ先の不動産会社にメールまたはFAXにて転送されるためアットホーム(株)にも保管されます。アットホーム(株)で保管された個人情報の取り扱いについては、【こちら】をご覧ください。
また、本画面でご記入いただいた個人情報は、お問い合わせ先の不動産会社でも保管します。 お問い合わせ先の不動産会社が保管する個人情報の取り扱いについては、不動産会社に直接お問い合わせください。
愛知県知事免許(1)第25652号 |
|---|
- 交通:
- 名古屋市桜通線/高岳駅 徒歩5分
- 愛知県名古屋市東区泉2丁目15-16 フナハシビル2階
- TEL:
- 052-912-0688
- FAX:
- 0586-22-9119
- 所属団体:
- (公社)愛知県宅地建物取引業協会会員東海不動産公正取引協議会加盟
取引態様:専任媒介  - 40411344
|
- スマートフォンで
この不動産会社を見る

|
- 提携サイト等より掲載されている物件情報につきましては、不動産会社詳細情報にリンクされていないものがあります。
- 物件に関するお問合せは、物件詳細ページの「情報提供会社」に表示されている不動産会社へ直接お願いいたします。
- 間取図は、現況を優先させていただきます。
- 映像は物件の一部を撮影したものです。物件の契約にあたっての最終判断はご自身の判断に基づいて行ってください。
- 仲介手数料について

アットホームは物件情報の適正化に努めております。
内容に誤りがある場合にはこちらへご連絡ください。