神奈川県秦野市名古木(秦野駅)の一戸建て:物件詳細
交通 所在地 |
駅徒歩 |
価格 |
間取り 建物面積 |
土地面積 私道負担面積 |
物件種目 築年月 |
|
小田急小田原線/秦野 [バス利用可] バス 7分 名古木 停歩3分
神奈川県秦野市名古木
|
30分
|
2,200万円
|
4LDK
93.36m²
|
131.96m²
-
|
中古一戸建て
2004年4月(築22年)
|
|
駐車場3台分以上
|
|
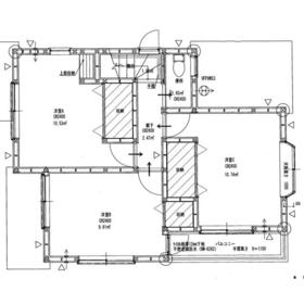
間取図
|
|
その他の画像
|
| 交通 | 小田急小田原線 秦野駅 徒歩30分 [バス利用可] バス 7分 名古木 停歩3分 |
| 所在地 |
神奈川県秦野市名古木
|
| 物件種目 |
中古一戸建て |
| 価格 |
2,200万円 |
借地期間・地代(月額) |
- |
| 権利金 |
- |
敷金または保証金 |
- / - |
| 維持費等 |
- |
その他一時金 |
- |
| 間取り |
4LDK(和 6 洋 5.8・5.7・5.4 LDK 14.5) |
建物面積 |
93.36m² |
| 土地権利 |
所有権 |
建物構造 |
木造 |
| 土地面積 |
131.96m²(公簿) |
私道負担面積 |
- |
| 築年月 |
2004年4月(築22年)
|
都市計画 |
市街化区域 |
| 建物名 |
|
建築確認番号 |
第H15確認建築秦野市00649号 |
| 用途地域 |
1種低層 |
駐車場 |
有 無料 |
| 建ぺい率 |
50% |
容積率 |
100% |
| 階建 |
2階建 |
接道状況 |
西 4.5m 公道 接面8.4m
|
| 地目 |
宅地 |
地勢 |
- |
| 国土法届出 |
- |
セットバック |
- |
| アピールポイント |
2025年にオール電化住宅へリフォームしました(お風呂・トイレ2か所・洗面台入替え)。前面道路も広くて駐車もらくらくです。 |
| リフォーム履歴 |
■水回り:2025年4月 浴室、トイレ、洗面所 ※実施年月は最も古い履歴を表示 |
| リノベーション履歴 |
- |
| 瑕疵保証 |
- |
| 瑕疵保険 |
- |
| 評価・証明書 |
- |
| 備考 |
バルコニー:3.2m²
主要採光面:西向き
|
| エネルギー消費性能 |
- |
| 断熱性能 |
- |
| 目安光熱費 |
- |
| バス・トイレ |
浴室乾燥機、オートバス、追焚機能、シャワー付洗面化粧台、温水洗浄便座、トイレ2ヶ所 |
| キッチン |
IHクッキングヒーター、3口以上コンロ |
| 設備・サービス |
太陽光発電システム、上水道、下水道、電気、蓄電池付き |
| その他 |
- |
| 現況 |
所有者居住中 |
引渡可能時期 |
相談 |
| 物件番号 |
6989956333 |
|
|
| 情報公開日 |
2026年3月19日 |
次回更新予定日 |
2026年4月2日 |
| ケータイ用バーコード |
- スマートフォンでこの物件を見る
- スマートフォンからもこの物件をご覧になれます。
|
※「-」と表示されている項目については、情報提供会社にご確認ください。
| 周辺施設 |
セブンイレブン秦野名古木店 |
| 距離 |
698m |
ここから簡単にお問い合わせをすることができます。
(SSLでの暗号化での送信を希望されるお客さまは
こちら
よりお問い合わせください)
お問い合わせを行う前に
「個人情報の取り扱いについて」を必ずお読みください。
「個人情報の取り扱いについて」に同意いただいた場合は「上記にご同意の上 確認画面へ進む」のボタンをクリックしてください。
個人情報の取り扱いについて
皆さまが送付された個人情報はアットホーム(株)のサーバを経由し、お問い合わせ先の不動産会社にメールまたはFAXにて転送されるためアットホーム(株)にも保管されます。アットホーム(株)で保管された個人情報の取り扱いについては、【こちら】をご覧ください。
また、本画面でご記入いただいた個人情報は、お問い合わせ先の不動産会社でも保管します。 お問い合わせ先の不動産会社が保管する個人情報の取り扱いについては、不動産会社に直接お問い合わせください。
神奈川県知事免許(3)第29217号 |
|---|
- 交通:
- JR相模線/香川駅
- 神奈川県茅ヶ崎市高田5丁目5-5 内田店舗1F
- TEL:
- 0467-73-7035
- FAX:
- 0467-73-7036
- 所属団体:
- (公社)全日本不動産協会会員(公社)首都圏不動産公正取引協議会加盟
取引態様:専任媒介  - 00275149
|
- スマートフォンで
この不動産会社を見る

|
- 提携サイト等より掲載されている物件情報につきましては、不動産会社詳細情報にリンクされていないものがあります。
- 物件に関するお問合せは、物件詳細ページの「情報提供会社」に表示されている不動産会社へ直接お願いいたします。
- 間取図は、現況を優先させていただきます。
- 映像は物件の一部を撮影したものです。物件の契約にあたっての最終判断はご自身の判断に基づいて行ってください。
- 仲介手数料について

アットホームは物件情報の適正化に努めております。
内容に誤りがある場合にはこちらへご連絡ください。