愛知県尾張旭市南新町中畑(尾張旭駅)の一戸建て:物件詳細
交通 所在地 |
駅徒歩 |
価格 |
間取り 建物面積 |
土地面積 私道負担面積 |
物件種目 築年月 |
|
名鉄瀬戸線/尾張旭
愛知県尾張旭市南新町中畑
|
29分
|
3,490万円
|
4LDK
99.63m²
|
148.92m²
-
|
新築一戸建て
2025年11月
|
|
駐車場3台分以上、南向き、設計住宅性能評価書あり、建設住宅性能評価書あり
|
|
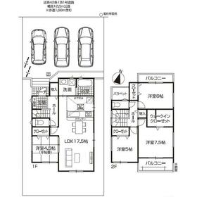
間取図
業界歴25年の担当がご案内いたします!まだまだフットワークは軽いです!
|
外観
充分な間口で駐車3台可!
|
<
その他の画像
>
|
| 交通 | 名鉄瀬戸線 尾張旭駅 徒歩29分 |
| 所在地 |
愛知県尾張旭市南新町中畑
|
| 物件種目 |
新築一戸建て |
| 価格 |
3,490万円 |
借地期間・地代(月額) |
- |
| 権利金 |
- |
敷金または保証金 |
- / - |
| 維持費等 |
- |
その他一時金 |
- |
| 間取り |
4LDK(和 4.5 洋 7.5・6・5 LDK 17.5) |
建物面積 |
99.63m² |
| 土地権利 |
所有権 |
建物構造 |
木造 |
| 土地面積 |
148.92m²(公簿) |
私道負担面積 |
- |
| 築年月 |
2025年11月
|
都市計画 |
市街化区域 |
| 建物名 |
尾張旭市南新町 戸建て |
建築確認番号 |
- |
| 用途地域 |
1種低層 |
駐車場 |
- |
| 建ぺい率 |
60% |
容積率 |
100% |
| 階建 |
2階建 |
接道状況 |
北 12.0m 公道
|
| 地目 |
宅地 |
地勢 |
- |
| 国土法届出 |
- |
セットバック |
- |
| アピールポイント |
【仲介手数料0円】初期費用を賢く抑えるなら当店へ!
《当社が選ばれる3つの理由》
①仲介手数料が無料!
・売主様からのみ手数料を頂戴する仕組みです
・それにより諸費用を【約110万円】カット!
・浮いた費用で、新しい家具や家電、あるいは将来の貯えに回してワンランク上の新生活をスタートしませんか?
②余計な費用はゼロ!
・買主様からはローン代行料やコンサル料等も一切いただきません
③キャリア25年の安心サポート
・大手さんのような華やかさはありませんが、業界25年の経験でご契約からお引渡しまで確実にサポートすることをお約束します
・当社を偶然見つけて下さったお客様には大変喜んでいただいております!
・フットワークの軽さは若い者に負けません!
《お気軽にご相談ください》
「ネットで見つけたあの物件、安くなるかな?」
そんな疑問も大歓迎!当社で取り扱えるかすぐにお調べいたします。
\まずは「お電話かメールでお問い合わせ」から/
【物件について】
・庭には物置も置けます
・住宅性能表示取得
・本地原小5分
○ご案内は現地集合・解散可能です
○無理な営業はいたしません! |
| リフォーム履歴 |
- |
| リノベーション履歴 |
- |
| 瑕疵保証 |
- |
| 瑕疵保険 |
- |
| 評価・証明書 |
- |
| 備考 |
主要採光面:南向き
|
| エネルギー消費性能 |
- |
| 断熱性能 |
- |
| 目安光熱費 |
- |
| バス・トイレ |
浴室暖房、浴室乾燥機、オートバス、追焚機能、シャワー付洗面化粧台、温水洗浄便座、トイレ2ヶ所 |
| キッチン |
カウンターキッチン、システムキッチン、3口以上コンロ |
| 設備・サービス |
全居室収納、ウォークインクローゼット、モニター付インターホン、ディンプルキー、ダブルロックドア、上水道、下水道、都市ガス、庭、複層ガラス |
| その他 |
- |
| 現況 |
空家 |
引渡可能時期 |
即時 |
| 物件番号 |
6989975383 |
仲介手数料 |
不要 |
| 情報公開日 |
2026年3月18日 |
次回更新予定日 |
2026年4月7日 |
| ケータイ用バーコード |
- スマートフォンでこの物件を見る
- スマートフォンからもこの物件をご覧になれます。
|
※「-」と表示されている項目については、情報提供会社にご確認ください。
| 周辺施設 |
アミカ尾張旭店 |
| 距離 |
977m |
写真を見る |
| 周辺施設 |
ファミリーマート守山本地ヶ原店 |
| 距離 |
702m |
| 周辺施設 |
ドラッグスギヤマ北本地ヶ原店 |
| 距離 |
598m |
写真を見る |
| 周辺施設 |
尾張旭市立旭中学校 |
| 距離 |
2199m |
写真を見る |
| 周辺施設 |
尾張旭市立本地原小学校 |
| 距離 |
384m |
写真を見る |
| 周辺施設 |
尾張旭市立本地ケ原保育園 |
| 距離 |
593m |
写真を見る |
ここから簡単にお問い合わせをすることができます。
(SSLでの暗号化での送信を希望されるお客さまは
こちら
よりお問い合わせください)
お問い合わせを行う前に
「個人情報の取り扱いについて」を必ずお読みください。
「個人情報の取り扱いについて」に同意いただいた場合は「上記にご同意の上 確認画面へ進む」のボタンをクリックしてください。
個人情報の取り扱いについて
皆さまが送付された個人情報はアットホーム(株)のサーバを経由し、お問い合わせ先の不動産会社にメールまたはFAXにて転送されるためアットホーム(株)にも保管されます。アットホーム(株)で保管された個人情報の取り扱いについては、【こちら】をご覧ください。
また、本画面でご記入いただいた個人情報は、お問い合わせ先の不動産会社でも保管します。 お問い合わせ先の不動産会社が保管する個人情報の取り扱いについては、不動産会社に直接お問い合わせください。
愛知県知事免許(2)第24503号 |
|---|
- 交通:
- 名鉄瀬戸線/印場駅 徒歩9分
- 愛知県尾張旭市庄中町1丁目8-19 2F
- TEL:
- 0561-52-2777
- FAX:
- 0561-42-6566
- 所属団体:
- (公社)愛知県宅地建物取引業協会会員東海不動産公正取引協議会加盟
取引態様:媒介  - 40408871
|
- スマートフォンで
この不動産会社を見る

|
- 提携サイト等より掲載されている物件情報につきましては、不動産会社詳細情報にリンクされていないものがあります。
- 物件に関するお問合せは、物件詳細ページの「情報提供会社」に表示されている不動産会社へ直接お願いいたします。
- 間取図は、現況を優先させていただきます。
- 映像は物件の一部を撮影したものです。物件の契約にあたっての最終判断はご自身の判断に基づいて行ってください。
- 仲介手数料について

アットホームは物件情報の適正化に努めております。
内容に誤りがある場合にはこちらへご連絡ください。