福島県いわき市中之作字勝見ケ浦(泉駅)の一戸建て:物件詳細
交通 所在地 |
駅徒歩 |
価格 |
間取り 建物面積 |
土地面積 私道負担面積 |
物件種目 築年月 |
|
JR常磐線/泉
福島県いわき市中之作字勝見ケ浦
|
9700m
|
100万円
|
6SDK
130.83m²
|
148.01m²
-
|
中古一戸建て
1985年1月(築41年5ヶ月)
|
|
バス1坪以上
|
|
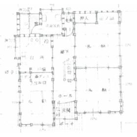
間取図
1F
|
外観
|
<
その他の画像
>
|
| 交通 | JR常磐線 泉駅 徒歩9700m |
| 所在地 |
福島県いわき市中之作字勝見ケ浦
|
| 物件種目 |
中古一戸建て |
| 価格 |
100万円 |
借地期間・地代(月額) |
- |
| 権利金 |
- |
敷金または保証金 |
- / - |
| 維持費等 |
- |
その他一時金 |
- |
| 間取り |
6SDK(和 8・8・6・6・6・6 S 6) |
建物面積 |
130.83m² |
| 土地権利 |
所有権 |
建物構造 |
木造 |
| 土地面積 |
148.01m²(公簿) |
私道負担面積 |
- |
| 築年月 |
1985年1月(築41年5ヶ月)
|
都市計画 |
市街化区域 |
| 建物名 |
|
建築確認番号 |
- |
| 用途地域 |
1種住居 |
駐車場 |
無 |
| 建ぺい率 |
60% |
容積率 |
200% |
| 階建 |
2階建 |
接道状況 |
-
|
| 地目 |
宅地 |
地勢 |
高台 |
| 国土法届出 |
- |
セットバック |
- |
| アピールポイント |
スイッチひとつでお湯が張れるオートバスだから、お風呂準備もオートマチック。また広々とした延床面積130.83㎡の居室空間で、その上奥行き(出幅)を一般的なバルコニーより広めにとったワイドバルコニー付なので、洗濯物が多い日でもバッチリです。ちなみに帰宅時間を問わずあったかい湯船に浸かれる追焚式浴室給湯仕様です。家族の物語が生まれる6SDK。ご案内いたしますのでお気軽にご連絡ください。
【賃貸可能】60,000円/家賃月額
※近隣月極駐車場有・契約詳細はお問い合わせください。
令和8年6月以降入居可能です。 |
| リフォーム履歴 |
- |
| リノベーション履歴 |
- |
| 瑕疵保証 |
- |
| 瑕疵保険 |
- |
| 評価・証明書 |
- |
| 備考 |
主要採光面:南東向き
再建築不可
|
| エネルギー消費性能 |
- |
| 断熱性能 |
- |
| 目安光熱費 |
- |
| バス・トイレ |
オートバス、追焚機能 |
| キッチン |
2口コンロ |
| 設備・サービス |
上水道、プロパンガス、ワイドバルコニー、照明器具 |
| その他 |
- |
| 現況 |
所有者居住中 |
引渡可能時期 |
相談 |
| 物件番号 |
6989977048 |
|
|
| 情報公開日 |
2026年3月19日 |
次回更新予定日 |
2026年5月9日 |
| ケータイ用バーコード |
- スマートフォンでこの物件を見る
- スマートフォンからもこの物件をご覧になれます。
|
※「-」と表示されている項目については、情報提供会社にご確認ください。
| 周辺施設 |
ファミリーマートいわき永崎海岸店 |
| 距離 |
1710m |
| 周辺施設 |
ツルハドラッグ小名浜神白店 |
| 距離 |
2542m |
ここから簡単にお問い合わせをすることができます。
(SSLでの暗号化での送信を希望されるお客さまは
こちら
よりお問い合わせください)
お問い合わせを行う前に
「個人情報の取り扱いについて」を必ずお読みください。
「個人情報の取り扱いについて」に同意いただいた場合は「上記にご同意の上 確認画面へ進む」のボタンをクリックしてください。
個人情報の取り扱いについて
皆さまが送付された個人情報はアットホーム(株)のサーバを経由し、お問い合わせ先の不動産会社にメールまたはFAXにて転送されるためアットホーム(株)にも保管されます。アットホーム(株)で保管された個人情報の取り扱いについては、【こちら】をご覧ください。
また、本画面でご記入いただいた個人情報は、お問い合わせ先の不動産会社でも保管します。 お問い合わせ先の不動産会社が保管する個人情報の取り扱いについては、不動産会社に直接お問い合わせください。
福島県知事免許(1)第3667号 |
|---|
- 交通:
- JR常磐線/泉駅
- 福島県いわき市中之作字勝見ケ浦48番地
- TEL:
- 0246-55-7320
- FAX:
- 0246-55-5512
- 所属団体:
- (公社)全日本不動産協会会員東北地区不動産公正取引協議会加盟
取引態様:媒介  - 20007129
|
- スマートフォンで
この不動産会社を見る

|
- 提携サイト等より掲載されている物件情報につきましては、不動産会社詳細情報にリンクされていないものがあります。
- 物件に関するお問合せは、物件詳細ページの「情報提供会社」に表示されている不動産会社へ直接お願いいたします。
- 間取図は、現況を優先させていただきます。
- 映像は物件の一部を撮影したものです。物件の契約にあたっての最終判断はご自身の判断に基づいて行ってください。
- 仲介手数料について

アットホームは物件情報の適正化に努めております。
内容に誤りがある場合にはこちらへご連絡ください。