福井県越前市北府3丁目(北府駅)の一戸建て:物件詳細
交通 所在地 |
駅徒歩 |
価格 |
間取り 建物面積 |
土地面積 私道負担面積 |
物件種目 築年月 |
|
福井鉄道福武線/北府
福井県越前市北府3丁目
|
7分
|
2,840万円
|
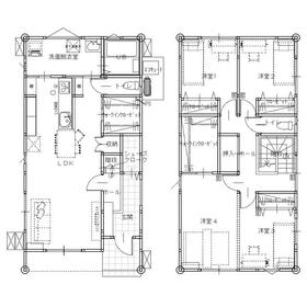
4SLDK
113.14m²
|
163.43m²
なし
|
新築一戸建て
2026年10月
|
|
駐車場3台分以上、バス1坪以上、24時間換気システム、閑静な住宅街、オール電化、整形地、隣接建物距離2m以上、分譲地内
|
| 交通 | 福井鉄道福武線 北府駅 徒歩7分 |
| 所在地 |
福井県越前市北府3丁目
|
| 物件種目 |
新築一戸建て |
| 価格 |
2,840万円 |
借地期間・地代(月額) |
- |
| 権利金 |
- |
敷金または保証金 |
- / - |
| 維持費等 |
- |
その他一時金 |
- |
| 間取り |
4SLDK(洋 7.5・5.2・5.2・5.2 LDK 18.1 S 3) |
建物面積 |
113.14m² |
| 土地権利 |
所有権 |
建物構造 |
木造 |
| 土地面積 |
163.43m²(公簿) |
私道負担面積 |
なし |
| 築年月 |
2026年10月
|
都市計画 |
非線引区域 |
| 建物名 |
越前市北府 分譲住宅S3棟 |
建築確認番号 |
第R07確認建築福井丹南00127号 |
| 用途地域 |
準工業 |
駐車場 |
- |
| 建ぺい率 |
60% |
容積率 |
200% |
| 階建 |
2階建 |
接道状況 |
南 5.0m 公道 接面8.0m
|
| 地目 |
宅地 |
地勢 |
平坦 |
| 国土法届出 |
- |
セットバック |
- |
| リフォーム履歴 |
- |
| リノベーション履歴 |
- |
| 瑕疵保証 |
- |
| 瑕疵保険 |
- |
| 評価・証明書 |
- |
| 備考 |
主要採光面:西向き
新築時・増改築時の設計図書あり、BELS/省エネ基準適合認定
|
| エネルギー消費性能 |
- |
| 断熱性能 |
- |
| 目安光熱費 |
- |
| バス・トイレ |
追焚機能、シャワー付洗面化粧台、温水洗浄便座、タンクレストイレ、浴室に窓あり |
| キッチン |
カウンターキッチン、システムキッチン、食器洗浄乾燥機、IHクッキングヒーター、3口以上コンロ、グリル |
| 設備・サービス |
全居室収納、ウォークインクローゼット、シューズインクローゼット、クローゼット、モニター付インターホン、ディンプルキー、室内物干し、上水道、下水道、電気、側溝、人感センサー付照明、ダウンライト、照明器具、火災警報器(報知機)、複層ガラス、Low-E ガラス |
| その他 |
- |
| 現況 |
建築中 |
引渡可能時期 |
相談 |
| 物件番号 |
6989981621 |
仲介手数料 |
不要 |
| 情報公開日 |
2026年3月19日 |
次回更新予定日 |
2026年4月2日 |
| ケータイ用バーコード |
- スマートフォンでこの物件を見る
- スマートフォンからもこの物件をご覧になれます。
|
※「-」と表示されている項目については、情報提供会社にご確認ください。
ここから簡単にお問い合わせをすることができます。
(SSLでの暗号化での送信を希望されるお客さまは
こちら
よりお問い合わせください)
お問い合わせを行う前に
「個人情報の取り扱いについて」を必ずお読みください。
「個人情報の取り扱いについて」に同意いただいた場合は「上記にご同意の上 確認画面へ進む」のボタンをクリックしてください。
個人情報の取り扱いについて
皆さまが送付された個人情報はアットホーム(株)のサーバを経由し、お問い合わせ先の不動産会社にメールまたはFAXにて転送されるためアットホーム(株)にも保管されます。アットホーム(株)で保管された個人情報の取り扱いについては、【こちら】をご覧ください。
また、本画面でご記入いただいた個人情報は、お問い合わせ先の不動産会社でも保管します。 お問い合わせ先の不動産会社が保管する個人情報の取り扱いについては、不動産会社に直接お問い合わせください。
福井県知事免許(3)第1563号 |
|---|
- 交通:
- ハピラインふくい/武生駅 徒歩120分
- 福井県丹生郡越前町江波89-1-3
- TEL:
- 050-7587-7334
- FAX:
- 0778-32-7110
- 所属団体:
- (公社)福井県宅地建物取引業協会会員北陸不動産公正取引協議会加盟
取引態様:売主  - 40412956
|
- スマートフォンで
この不動産会社を見る

|
- 提携サイト等より掲載されている物件情報につきましては、不動産会社詳細情報にリンクされていないものがあります。
- 物件に関するお問合せは、物件詳細ページの「情報提供会社」に表示されている不動産会社へ直接お願いいたします。
- 間取図は、現況を優先させていただきます。
- 映像は物件の一部を撮影したものです。物件の契約にあたっての最終判断はご自身の判断に基づいて行ってください。
- 仲介手数料について

アットホームは物件情報の適正化に努めております。
内容に誤りがある場合にはこちらへご連絡ください。