東京都国分寺市内藤1丁目(西国分寺駅)の一戸建て:物件詳細
交通 所在地 |
駅徒歩 |
価格 |
間取り 建物面積 |
土地面積 私道負担面積 |
物件種目 築年月 |
|
JR中央線/西国分寺
東京都国分寺市内藤1丁目
|
13分
|
6,980万円
|
4SLDK
91.08m²
|
114.52m²
有 16.00m²(共有持分1/2)
|
新築一戸建て
2026年5月
|
|
24時間セキュリティー、外壁サイディング、2面採光、24時間換気システム、閑静な住宅街、長期優良住宅(耐震、省エネ性等高い)、フラット35S適合証明書あり
|
|
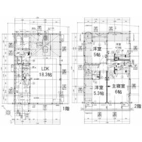
間取図
部屋図面
|
外観
外観イメージパース
|
<
その他の画像
>
|
| 交通 | JR中央線 西国分寺駅 徒歩13分 |
|---|
| その他の交通 | JR武蔵野線 西国分寺駅 徒歩13分 JR中央線 国立駅 徒歩15分 |
| 所在地 |
東京都国分寺市内藤1丁目
|
| 物件種目 |
新築一戸建て |
| 価格 |
6,980万円 |
借地期間・地代(月額) |
- |
| 権利金 |
- |
敷金または保証金 |
- / - |
| 維持費等 |
- |
その他一時金 |
- |
| 間取り |
4SLDK(洋 4.5・5・5.3・6) |
建物面積 |
91.08m² |
| 土地権利 |
所有権 |
建物構造 |
木造 |
| 土地面積 |
114.52m²(公簿) |
私道負担面積 |
有 16.00m²(共有持分1/2) |
| 築年月 |
2026年5月
|
都市計画 |
市街化区域 |
| 建物名 |
国分寺市内藤一丁目 新築戸建 1号棟 |
建築確認番号 |
第25UDI1S建03176号 |
| 用途地域 |
1種低層 |
駐車場 |
- |
| 建ぺい率 |
40% |
容積率 |
80% |
| 階建 |
2階建 |
接道状況 |
南西 4.0m 私道 接面7.3m
|
| 地目 |
宅地 |
地勢 |
平坦 |
| 国土法届出 |
- |
セットバック |
済 |
| アピールポイント |
西国分寺は東京の東西南北をつかむダブルアクセスの拠点となります。 |
| リフォーム履歴 |
- |
| リノベーション履歴 |
- |
| 瑕疵保証 |
- |
| 瑕疵保険 |
- |
| 評価・証明書 |
■長期優良住宅認定通知書 長期優良住宅認定通知書あり 建物検査実施日:2025年11月21日 ■フラット35S適合証明書 フラット35S適合証明書あり 建物検査実施日:2025年11月07日 |
| 備考 |
主要採光面:南東向き
建築確認完了検査済証あり、再建築不可
以前の建物にて告知事項あり
|
| エネルギー消費性能 |
- |
| 断熱性能 |
- |
| 目安光熱費 |
- |
| バス・トイレ |
追焚機能、トイレ2ヶ所 |
| キッチン |
システムキッチン、食器洗浄乾燥機、浄水器、3口以上コンロ、グリル |
| 設備・サービス |
全居室収納、床暖房、シューズインクローゼット、床下収納、モニター付インターホン、電動シャッター、シャッター雨戸、全居室フローリング、上水道、下水道、都市ガス、電気、火災警報器(報知機)、インターネット対応、複層ガラス |
| その他 |
- |
| 現況 |
建築中 |
引渡可能時期 |
2026年5月予定 |
| 物件番号 |
6990002933 |
仲介手数料 |
売買代金の3%+6万円 |
| 情報公開日 |
2026年3月20日 |
次回更新予定日 |
2026年5月30日 |
| ケータイ用バーコード |
- スマートフォンでこの物件を見る
- スマートフォンからもこの物件をご覧になれます。
|
※「-」と表示されている項目については、情報提供会社にご確認ください。
| 周辺施設 |
セブンイレブン 国立東三丁目店 |
| 距離 |
350m |
写真を見る |
| 周辺施設 |
クリエイトS/D 府中武蔵台店 |
| 距離 |
750m |
写真を見る |
| 周辺施設 |
コープみらい 国分寺店 |
| 距離 |
450m |
写真を見る |
| 周辺施設 |
ジェーソン西国分寺店 |
| 距離 |
300m |
写真を見る |
| 周辺施設 |
都立多摩総合医療センター |
| 距離 |
950m |
写真を見る |
| 周辺施設 |
国分寺市立第五小学校 |
| 距離 |
1100m |
写真を見る |
| 周辺施設 |
国分寺市立第四中学校 |
| 距離 |
1700m |
写真を見る |
ここから簡単にお問い合わせをすることができます。
(SSLでの暗号化での送信を希望されるお客さまは
こちら
よりお問い合わせください)
お問い合わせを行う前に
「個人情報の取り扱いについて」を必ずお読みください。
「個人情報の取り扱いについて」に同意いただいた場合は「上記にご同意の上 確認画面へ進む」のボタンをクリックしてください。
個人情報の取り扱いについて
皆さまが送付された個人情報はアットホーム(株)のサーバを経由し、お問い合わせ先の不動産会社にメールまたはFAXにて転送されるためアットホーム(株)にも保管されます。アットホーム(株)で保管された個人情報の取り扱いについては、【こちら】をご覧ください。
また、本画面でご記入いただいた個人情報は、お問い合わせ先の不動産会社でも保管します。 お問い合わせ先の不動産会社が保管する個人情報の取り扱いについては、不動産会社に直接お問い合わせください。
東京都知事免許(7)第72077号 |
|---|
- 交通:
- 西武新宿線/上井草駅 徒歩6分
- 東京都練馬区下石神井4丁目9番1号
- TEL:
- 03-3997-3907
- FAX:
- 03-3997-3902
- 所属団体:
- (公社)全日本不動産協会会員(公社)首都圏不動産公正取引協議会加盟
取引態様:媒介  - 00985751
|
- スマートフォンで
この不動産会社を見る

|
- 提携サイト等より掲載されている物件情報につきましては、不動産会社詳細情報にリンクされていないものがあります。
- 物件に関するお問合せは、物件詳細ページの「情報提供会社」に表示されている不動産会社へ直接お願いいたします。
- 間取図は、現況を優先させていただきます。
- 映像は物件の一部を撮影したものです。物件の契約にあたっての最終判断はご自身の判断に基づいて行ってください。
- 仲介手数料について

アットホームは物件情報の適正化に努めております。
内容に誤りがある場合にはこちらへご連絡ください。