東京都羽村市緑ヶ丘2丁目(羽村駅)の土地:物件詳細
交通 所在地 |
駅徒歩 |
価格 坪単価 |
土地面積(坪数) 私道負担面積 |
引渡方法 最適用途 |
建ぺい率 容積率 |
|
JR青梅線/羽村
東京都羽村市緑ヶ丘2丁目
|
14分
|
6,180万円
52.84万円
|
386.68m²
(116.97坪)
なし
|
現況渡
住宅用地
|
60%
200%
|
|
間取図
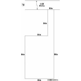
プライバシー性の高い旗竿地です。車や通行人の音が聞こえにくく、穏やかに暮らせそう。
|
外観
【建築条件なし売地】お好きなハウスメーカー・工務店を選べます。理想のおうちをご建築ください♪
|
その他の画像
|
| 交通 | JR青梅線 羽村駅 徒歩14分 |
|---|
| その他の交通 | JR青梅線 羽村駅 【バス】 2分 図書館・ゆとろぎ 停歩5分 JR青梅線 小作駅 【バス】 2分 図書館・ゆとろぎ 停歩5分 |
| 所在地 |
東京都羽村市緑ヶ丘2丁目
|
| 物件種目 |
土地 |
| 価格 |
6,180万円 |
坪単価 |
52.84万円 |
| 借地期間・地代(月額) |
- |
権利金 |
- |
| 敷金または保証金 |
- / - |
維持費等 |
- |
| その他一時金 |
- |
|
|
| 土地面積 |
386.68m²(公簿) |
坪数 |
116.97坪 |
| 最適用途 |
住宅用地 |
私道負担面積 |
なし |
| 土地権利 |
所有権 |
都市計画 |
市街化区域 |
| 用途地域 |
1種中高 |
地勢 |
平坦 |
| 建ぺい率 |
60% |
容積率 |
200% |
| 接道状況 |
南西 25.0m 公道 接面3.0m
|
地目 |
宅地 |
| 国土法届出 |
- |
セットバック |
- |
| 特記事項 |
- |
| 備考 |
準防火地域・第1種高度地区
|
| エネルギー消費性能 |
- |
| 断熱性能 |
- |
| 目安光熱費 |
- |
| バス・トイレ |
- |
| キッチン |
- |
| 設備・サービス |
上水道、下水道、プロパンガス、電気 |
| その他 |
- |
| 条件等 |
- |
現況 |
建物有 |
| 引渡し(可能時期/方法) |
相談/現況渡 |
物件番号 |
1046865566 |
| 情報公開日 |
2025年11月23日 |
次回更新予定日 |
2026年5月25日 |
| ケータイ用バーコード |
- スマートフォンでこの物件を見る
- スマートフォンからもこの物件をご覧になれます。
|
※「-」と表示されている項目については、情報提供会社にご確認ください。
| 周辺施設 |
いなげや ina21 羽村富士見平店 |
| 距離 |
657m |
| 周辺施設 |
セブン-イレブン 羽村富士見平1丁目店 |
| 距離 |
309m |
| 周辺施設 |
サンドラッグ 羽村神明台店 |
| 距離 |
796m |
| 周辺施設 |
羽村市立富士見小学校 |
| 距離 |
567m |
写真を見る |
| 周辺施設 |
羽村市立羽村第二中学校 |
| 距離 |
762m |
写真を見る |
ここから簡単にお問い合わせをすることができます。
(SSLでの暗号化での送信を希望されるお客さまは
こちら
よりお問い合わせください)
お問い合わせを行う前に
「個人情報の取り扱いについて」を必ずお読みください。
「個人情報の取り扱いについて」に同意いただいた場合は「上記にご同意の上 確認画面へ進む」のボタンをクリックしてください。
個人情報の取り扱いについて
皆さまが送付された個人情報はアットホーム(株)のサーバを経由し、お問い合わせ先の不動産会社にメールまたはFAXにて転送されるためアットホーム(株)にも保管されます。アットホーム(株)で保管された個人情報の取り扱いについては、【こちら】をご覧ください。
また、本画面でご記入いただいた個人情報は、お問い合わせ先の不動産会社でも保管します。 お問い合わせ先の不動産会社が保管する個人情報の取り扱いについては、不動産会社に直接お問い合わせください。
セキスイハイム不動産(株) 東京流通支店国土交通大臣免許(10)第3490号 |
|---|
- 交通:
- JR山手線/浜松町駅 徒歩8分
- 東京都港区芝2丁目13-4 住友不動産芝ビル4号館
- TEL:
- 0120-186-816
- FAX:
- 03-6682-6164
- 所属団体:
- (一社)不動産流通経営協会会員(公社)東京都宅地建物取引業協会会員(一社)不動産協会会員(公社)首都圏不動産公正取引協議会加盟
取引態様:専任媒介 |
- 提携サイト等より掲載されている物件情報につきましては、不動産会社詳細情報にリンクされていないものがあります。
- 物件に関するお問合せは、物件詳細ページの「情報提供会社」に表示されている不動産会社へ直接お願いいたします。
- 間取図は、現況を優先させていただきます。
- 映像は物件の一部を撮影したものです。物件の契約にあたっての最終判断はご自身の判断に基づいて行ってください。
- 仲介手数料について

アットホームは物件情報の適正化に努めております。
内容に誤りがある場合にはこちらへご連絡ください。