石川県河北郡津幡町字横浜(津幡駅)の土地:物件詳細
交通 所在地 |
駅徒歩 |
価格 坪単価 |
土地面積(坪数) 私道負担面積 |
引渡方法 最適用途 |
建ぺい率 容積率 |
|
IRいしかわ鉄道/津幡
石川県河北郡津幡町字横浜
|
16分
|
1,060万円
15.34万円
|
228.49m²
(69.11坪)
なし
|
現況渡
住宅用地
|
60%
200%
|
|
間取図
|
外観
|
その他の画像
|
| 交通 | IRいしかわ鉄道 津幡駅 徒歩16分 |
| 所在地 |
石川県河北郡津幡町字横浜
|
| 物件種目 |
土地 |
| 価格 |
1,060万円 |
坪単価 |
15.34万円 |
| 借地期間・地代(月額) |
- |
権利金 |
- |
| 敷金または保証金 |
- / - |
維持費等 |
- |
| その他一時金 |
- |
|
|
| 土地面積 |
228.49m²(公簿) |
坪数 |
69.11坪 |
| 最適用途 |
住宅用地 |
私道負担面積 |
なし |
| 土地権利 |
所有権 |
都市計画 |
非線引区域 |
| 用途地域 |
1種住居 |
地勢 |
平坦 |
| 建ぺい率 |
60% |
容積率 |
200% |
| 接道状況 |
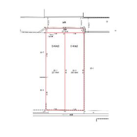
北 6.0m 公道 接面7.5m
|
地目 |
宅地 |
| 国土法届出 |
- |
セットバック |
- |
| 特記事項 |
- |
| 備考 |
総区画:2区画
土地面積68.96坪 前面道路約6m 間口約7.5m上下水道引込済み津幡小学校まで約930m 津幡中学校まで約500mセブンイレブン津幡横浜店まで約300m ゲンキー横浜店まで約350m業務スーパー津幡店まで約500m カジマートみなみ店まで約400m河北中央病院まで約600m 津幡町役場まで約600m※業者様は買い別れになります※水道加入金別途16.5万税込必要
|
| エネルギー消費性能 |
- |
| 断熱性能 |
- |
| 目安光熱費 |
- |
| バス・トイレ |
- |
| キッチン |
- |
| 設備・サービス |
上水道、下水道 |
| その他 |
- |
| 条件等 |
- |
現況 |
更地 |
| 引渡し(可能時期/方法) |
相談/現況渡 |
物件番号 |
1081312595 |
| 情報公開日 |
2025年5月19日 |
次回更新予定日 |
2026年5月9日 |
| ケータイ用バーコード |
- スマートフォンでこの物件を見る
- スマートフォンからもこの物件をご覧になれます。
|
※「-」と表示されている項目については、情報提供会社にご確認ください。
ここから簡単にお問い合わせをすることができます。
(SSLでの暗号化での送信を希望されるお客さまは
こちら
よりお問い合わせください)
お問い合わせを行う前に
「個人情報の取り扱いについて」を必ずお読みください。
「個人情報の取り扱いについて」に同意いただいた場合は「上記にご同意の上 確認画面へ進む」のボタンをクリックしてください。
個人情報の取り扱いについて
皆さまが送付された個人情報はアットホーム(株)のサーバを経由し、お問い合わせ先の不動産会社にメールまたはFAXにて転送されるためアットホーム(株)にも保管されます。アットホーム(株)で保管された個人情報の取り扱いについては、【こちら】をご覧ください。
また、本画面でご記入いただいた個人情報は、お問い合わせ先の不動産会社でも保管します。 お問い合わせ先の不動産会社が保管する個人情報の取り扱いについては、不動産会社に直接お問い合わせください。
国土交通大臣免許(1)第10900号 |
|---|
- 交通:
- 【バス】 米丸学校前
- 石川県金沢市間明町2丁目269
- TEL:
- 076-220-6330
- FAX:
- 076-220-6331
- 所属団体:
- (公社)石川県宅地建物取引業協会会員北陸不動産公正取引協議会加盟
取引態様:専任媒介  - 40406627
|
- スマートフォンで
この不動産会社を見る

|
- 提携サイト等より掲載されている物件情報につきましては、不動産会社詳細情報にリンクされていないものがあります。
- 物件に関するお問合せは、物件詳細ページの「情報提供会社」に表示されている不動産会社へ直接お願いいたします。
- 間取図は、現況を優先させていただきます。
- 映像は物件の一部を撮影したものです。物件の契約にあたっての最終判断はご自身の判断に基づいて行ってください。
- 仲介手数料について

アットホームは物件情報の適正化に努めております。
内容に誤りがある場合にはこちらへご連絡ください。