不動産 賃貸 マンション等の住宅情報:埼玉住まい情報


神奈川県藤沢市遠藤(湘南台駅)の土地:物件詳細

  • 物件詳細
  • 情報の見方
  • 印刷用画面
交通
所在地
駅徒歩 価格
坪単価
土地面積(坪数)
私道負担面積
引渡方法
最適用途
建ぺい率
容積率

小田急江ノ島線/湘南台
【バス】13分 菖蒲沢 停歩1分

神奈川県藤沢市遠藤


8,500万円

35.02万円

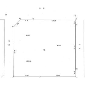
802.40m² (242.72坪)

なし

更地渡

住宅用地

50%

80%

おすすめコメント  スタッフ: 依田 龍斗

約242坪の売地です! ぜひ現地をご覧ください。◇本物件は、市街化調整区域(A地区【一般基準地区】)に指定されているため、建築物の建築や開発行為を行う場合には予め藤沢市の許可が必要となります。

間取図

間取図

便利な間取り設計

外観

外観

広々とした外観です

<
その他の画像
  • その他
  • その他
  • その他
  • その他
  • その他
  • その他
  • 公園
  • 中学校
  • 公園
  • コンビニ
  • ショッピング施設
  • 公園
  • ショッピング施設
>
    • とりあえず保存
    • お問い合わせ
    交通

    小田急江ノ島線 湘南台駅
    【バス】 13分 菖蒲沢 停歩1分

    その他の交通

    相鉄いずみ野線 湘南台駅
    【バス】 13分 菖蒲沢 停歩1分

    ブルーライン 湘南台駅
    【バス】 13分 菖蒲沢 停歩1分

    所在地 神奈川県藤沢市遠藤
    物件種目 土地
    価格 8,500万円 坪単価 35.02万円
    借地期間・地代(月額) 権利金
    敷金または保証金 - / - 維持費等
    その他一時金 なし    
    土地面積 802.40m²(実測) 坪数 242.72坪
    最適用途 住宅用地 私道負担面積 なし
    土地権利 所有権 都市計画 調整区域
    用途地域 無指定 地勢
    建ぺい率 50% 容積率 80%
    接道状況 北 26.0m 公道 ・ 東 27.0m 公道 ・ 西 24.0m 地目 宅地
    国土法届出 セットバック
    アピールポイント お気軽にお問い合わせ、ご相談ください♪

    ベテランスタッフによる住宅ローン相談も実施中!
    当社提携ファイナンシャルプランナーの先生に無料で相談できるFP相談会も実施中!
    住宅ローンは仲介プラザへにお任せ下さい!

    借入する住宅ローンの金利が0.1%違うだけでも、総支払額は変わって参ります。
    そのため、マイホーム選び以上に銀行選びも凄く重要になって参ります。
    何かを測る(選ぶ)とき、しっかりとした物差し(知識)が無ければ正確に測ることは出来ません。
    弊社では先ず、専門のシステムを使って住宅ローンの仕組みや金利や保証料の種類、保険の種類や、各銀行の特徴やメリットデメリットなどを解り易く丁寧にご説明させて頂き、お客様が住宅ローンを選ぶときに重要な物差し作りのお手伝いをさせて頂き、お客様と一緒により良い住宅ローンの組み立てをご提案して参ります。
    特記事項
    備考
    法令等制限:調整区域につき建築許可要。建築主の許可要件あり
    ◇以前に存在した給油所の地下タンクは撤去済。
    ◇土壌調査(ベンゼン・油分)の結果、汚染は確認されず。、都市再生特別地区、景観法、屋外広告物条例等
    エネルギー消費性能
    断熱性能
    目安光熱費
    バス・トイレ
    キッチン
    設備・サービス 上水道
    その他
    条件等 現況 更地
    引渡し(可能時期/方法) 相談/更地渡 物件番号 1083411189
    情報公開日 2025年8月8日 次回更新予定日 2025年11月6日
    ケータイ用バーコード

    QRコード

    スマートフォンでこの物件を見る
    スマートフォンからもこの物件をご覧になれます。
    ※「-」と表示されている項目については、情報提供会社にご確認ください。

    この物件の周辺情報

    周辺施設 葛原公園
    距離 1223m
    周辺施設 御所見中学校
    距離 1080m
    周辺施設 くずはら里山広場
    距離 1432m
    周辺施設 セブンイレブン藤沢菖蒲沢店
    距離 1342m
    周辺施設 西松屋チェーン 藤沢葛原店
    距離 1746m
    周辺施設 藤沢市少年の森
    距離 1586m
    周辺施設 イトーヨーカドー湘南台店
    距離 1912m

    クイックお問い合わせ

    ここから簡単にお問い合わせをすることができます。
    (SSLでの暗号化での送信を希望されるお客さまは こちら よりお問い合わせください)

    お問い合わせ内容(必須)
    お名前(必須) 姓  名 
    メールアドレス(必須)
    ※携帯電話のメールアドレスをご入力される方はこちらをご確認ください
    電話番号(必須)
    - -

    ※入力いただいた電話番号へSMSまたは音声でパスワードをご連絡します。

    携帯電話の番号をご入力の方へ

    携帯電話の番号をご入力の方へ
    確認画面にて送信ボタンをクリックするとSMSが携帯電話に届きます。
    そのSMSに記載のパスワード(認証番号)を入力し、お問い合わせを完了してください。
    尚、SMSの送信者番号は 0005 202 760 となります。
    これはアットホームの固定番号です。

    備考欄 希望条件、物件案内希望日、質問などがございましたらご記入ください。
    お問い合わせを行う前に「個人情報の取り扱いについて」を必ずお読みください。
    「個人情報の取り扱いについて」に同意いただいた場合は「上記にご同意の上 確認画面へ進む」のボタンをクリックしてください。

    個人情報の取り扱いについて

    皆さまが送付された個人情報はアットホーム(株)のサーバを経由し、お問い合わせ先の不動産会社にメールまたはFAXにて転送されるためアットホーム(株)にも保管されます。アットホーム(株)で保管された個人情報の取り扱いについては、【こちら】をご覧ください。
    また、本画面でご記入いただいた個人情報は、お問い合わせ先の不動産会社でも保管します。 お問い合わせ先の不動産会社が保管する個人情報の取り扱いについては、不動産会社に直接お問い合わせください。

    情報提供会社

    情報提供会社

    センチュリー21仲介プラザ

    神奈川県知事免許(5)第25536号

    交通:
    小田急江ノ島線/湘南台駅
    神奈川県藤沢市湘南台2丁目5-8 Nビル1F
    TEL:
    0466-41-4411
    FAX:
    0466-41-4433
    所属団体:
    (公社)神奈川県宅地建物取引業協会会員
    (公社)首都圏不動産公正取引協議会加盟

    取引態様:媒介

    • 会社情報
    • 99000027
    スマートフォンで
    この不動産会社を見る
    QRコード
    • とりあえず保存
    • お問い合わせ
    • 提携サイト等より掲載されている物件情報につきましては、不動産会社詳細情報にリンクされていないものがあります。
    • 物件に関するお問合せは、物件詳細ページの「情報提供会社」に表示されている不動産会社へ直接お願いいたします。
    • 間取図は、現況を優先させていただきます。
    • 映像は物件の一部を撮影したものです。物件の契約にあたっての最終判断はご自身の判断に基づいて行ってください。
    • 仲介手数料について仲介手数料

    アットホームは物件情報の適正化に努めております。 内容に誤りがある場合にはこちらへご連絡ください。

    【埼玉住まい情報】では、日本全国の物件から賃貸マンションや賃貸アパート・賃貸一戸建て等の賃貸住宅情報、新築マンション・分譲マンションや中古マンション等の売買マンション情報、新築一戸建てや中古一戸建てなどの戸建住宅、 土地など、総合的な不動産住宅情報検索サービスを提供致します。
    【埼玉住まい情報】から、選りすぐりの不動産物件を探してみましょう。

    【免責事項】
    このコーナーの運営はアットホーム株式会社(https://www.athome.co.jp/)が行っています。
    このコーナーに掲載している物件情報は、「アットホーム不動産情報ネットワーク」に加盟する不動産会社等(情報提供元)から提供されています。信頼性の高い情報提供が行えるよう、最大限の努力をしておりますが、その内容を保証するものではありません。 利用者のみなさまと各情報提供元との取引に起因する損害および情報が掲載されたことに起因する損害等については、株式会社イーシティ埼玉、およびアットホームは一切責任を負いません。
    各物件情報の内容や画像等はすべて現況を優先させていただきます。
    お取引等(お取引の準備、資金調達等を含みます)の際には、内容や契約条件等について、各情報提供元より十分な説明を受け、ご自身でご確認の上、判断してください。
    このコーナーへの物件情報のご掲載、その他不動産業務ソリューション等についての不動産会社様のお問合せはこちらからお願いいたします。

    物件画像: