神奈川県横浜市旭区下川井町(三ツ境駅)の土地:物件詳細
交通 所在地 |
駅徒歩 |
価格 坪単価 |
土地面積(坪数) 私道負担面積 |
引渡方法 最適用途 |
建ぺい率 容積率 |
|
相鉄本線/三ツ境 【バス】5分 旭高校入口 停歩3分
神奈川県横浜市旭区下川井町
|
-
|
4,800万円
59.42万円
|
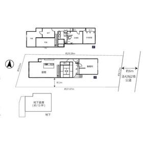
267.06m²
(80.78坪)
なし
|
現況渡
住宅用地
|
40%
80%
|
|
間取図
建築条件ございません!お好きなハウスメ…
|
外観
敷地面積は広々と80坪超のため、間取り…
|
<
その他の画像
>
|
| 交通 | 相鉄本線 三ツ境駅 【バス】 5分 旭高校入口 停歩3分 |
|---|
| その他の交通 | 相鉄本線 希望ケ丘駅 徒歩40分 |
| 所在地 |
神奈川県横浜市旭区下川井町
|
| 物件種目 |
土地 |
| 価格 |
4,800万円 |
坪単価 |
59.42万円 |
| 借地期間・地代(月額) |
- |
権利金 |
- |
| 敷金または保証金 |
- / - |
維持費等 |
- |
| その他一時金 |
なし |
|
|
| 土地面積 |
267.06m²(公簿) |
坪数 |
80.78坪 |
| 最適用途 |
住宅用地 |
私道負担面積 |
なし |
| 土地権利 |
所有権 |
都市計画 |
調整区域 |
| 用途地域 |
1種低層 |
地勢 |
- |
| 建ぺい率 |
40% |
容積率 |
80% |
| 接道状況 |
東 6.0m 公道
|
地目 |
宅地 |
| 国土法届出 |
- |
セットバック |
- |
| アピールポイント |
建築条件ございません!お好きなハウスメーカーをお選びいただけます。敷地面積は広々と80坪超のため、間取りの自由度も高く、理想のマイホームが建てやすいです。リビングを広くしたり、お庭をつくったりと夢が膨らみますね!「三ツ境」駅は駅ビルもありお買い物にも便利です。
■□■見学時間の目安■□■
・時短コース(目安時間/1時間)
スタッフがなるべく短時間で本物件をご案内・ご説明
現地でのお待ち合わせも可能です。
・基本コース(目安時間/2時間)
弊社へご来店いただきご希望に合わせた物件を全てご紹介。
物件説明などを丁寧にご案内・ご説明
・プレミアムコース(目安時間/3時間)
基本コースに加え、資金計画などをご説明。お悩みにとことん向き合います。
■□■住宅ローンアドバイザーによる無料相談会実施中■□■
「購入・売却・買い替え」などのお金に関することや、ご契約からお引き渡しまでの流れなど、経験豊富な担当スタッフが分かりやすく説明をさせていただきます。
ご自宅の売却査定は「訪問・電話・メール」すべて対応可能、もちろん無料で承ります!
|
| 特記事項 |
- |
| 備考 |
法令等制限:都市計画法施行令36条1項3号ロに該当
整理コード:652131、建築条件ございません!お好きなハウスメーカーをお選びいただけます。敷地面積は広々と80坪超のため、間取りの自由度も高く、理想のマイホームが建てやすいです。リビングを広くしたり、お庭をつくったりと夢が膨らみますね!「三ツ境」駅は駅ビルもありお買い物にも便利です。
|
| エネルギー消費性能 |
- |
| 断熱性能 |
- |
| 目安光熱費 |
- |
| バス・トイレ |
- |
| キッチン |
- |
| 設備・サービス |
上水道、下水道、プロパンガス |
| その他 |
- |
| 条件等 |
- |
現況 |
建物有 |
| 引渡し(可能時期/方法) |
相談/現況渡 |
物件番号 |
1108536703 |
| 情報公開日 |
2025年10月28日 |
次回更新予定日 |
2026年5月30日 |
| ケータイ用バーコード |
- スマートフォンでこの物件を見る
- スマートフォンからもこの物件をご覧になれます。
|
※「-」と表示されている項目については、情報提供会社にご確認ください。
| 周辺施設 |
三ッ境駅(相鉄 本線) |
| 距離 |
2400m |
写真を見る |
| 周辺施設 |
横浜市立都岡小学校 |
| 距離 |
700m |
写真を見る |
| 周辺施設 |
横浜市立旭中学校 |
| 距離 |
1600m |
写真を見る |
| 周辺施設 |
セブンイレブン横浜川井宿町店 |
| 距離 |
840m |
写真を見る |
| 周辺施設 |
金が谷公園 |
| 距離 |
1101m |
写真を見る |
ここから簡単にお問い合わせをすることができます。
(SSLでの暗号化での送信を希望されるお客さまは
こちら
よりお問い合わせください)
お問い合わせを行う前に
「個人情報の取り扱いについて」を必ずお読みください。
「個人情報の取り扱いについて」に同意いただいた場合は「上記にご同意の上 確認画面へ進む」のボタンをクリックしてください。
個人情報の取り扱いについて
皆さまが送付された個人情報はアットホーム(株)のサーバを経由し、お問い合わせ先の不動産会社にメールまたはFAXにて転送されるためアットホーム(株)にも保管されます。アットホーム(株)で保管された個人情報の取り扱いについては、【こちら】をご覧ください。
また、本画面でご記入いただいた個人情報は、お問い合わせ先の不動産会社でも保管します。 お問い合わせ先の不動産会社が保管する個人情報の取り扱いについては、不動産会社に直接お問い合わせください。
神奈川県知事免許(2)第30210号 |
|---|
- 交通:
- ブルーライン/立場駅
- 神奈川県横浜市泉区中田西1丁目1-26
- TEL:
- 045-800-1015
- FAX:
- 045-800-1020
- 所属団体:
- (公社)全日本不動産協会会員(公社)首都圏不動産公正取引協議会加盟
取引態様:媒介  - 99000912
|
- スマートフォンで
この不動産会社を見る

|
- 提携サイト等より掲載されている物件情報につきましては、不動産会社詳細情報にリンクされていないものがあります。
- 物件に関するお問合せは、物件詳細ページの「情報提供会社」に表示されている不動産会社へ直接お願いいたします。
- 間取図は、現況を優先させていただきます。
- 映像は物件の一部を撮影したものです。物件の契約にあたっての最終判断はご自身の判断に基づいて行ってください。
- 仲介手数料について

アットホームは物件情報の適正化に努めております。
内容に誤りがある場合にはこちらへご連絡ください。