神奈川県横浜市泉区岡津町(弥生台駅)の土地:物件詳細
交通 所在地 |
駅徒歩 |
価格 坪単価 |
土地面積(坪数) 私道負担面積 |
引渡方法 最適用途 |
建ぺい率 容積率 |
|
相鉄いずみ野線/弥生台
神奈川県横浜市泉区岡津町
|
17分
|
2,830万円
74.56万円
|
125.48m²
(37.95坪)
有 300.80m²(共有持分1/22)
|
-
住宅用地
|
50%
80%
|
|
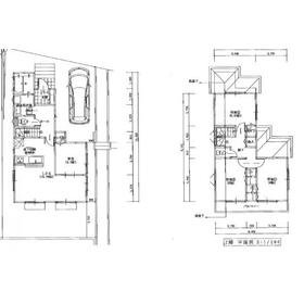
間取図
【区画図】ローンのシュミレーション等踏み込んだお話しも是非聞いて住宅購入まで一緒にまとめていきましょう!
|
94.81平米 1650万円
|
<
その他の画像
>
|
| 交通 | 相鉄いずみ野線 弥生台駅 徒歩17分 |
|---|
| その他の交通 | 相鉄いずみ野線 緑園都市駅 徒歩26分 JR東海道本線 戸塚駅 【バス】 22分 まほろば 停歩6分 |
| 所在地 |
神奈川県横浜市泉区岡津町
|
| 物件種目 |
土地 |
| 価格 |
2,830万円 |
坪単価 |
74.56万円 |
| 借地期間・地代(月額) |
- |
権利金 |
- |
| 敷金または保証金 |
- / - |
維持費等 |
- |
| その他一時金 |
- |
|
|
| 土地面積 |
125.48m²(実測) |
坪数 |
37.95坪 |
| 最適用途 |
住宅用地 |
私道負担面積 |
有 300.80m²(共有持分1/22) |
| 土地権利 |
所有権 |
都市計画 |
市街化区域 |
| 用途地域 |
1種低層 |
地勢 |
平坦 |
| 建ぺい率 |
50% |
容積率 |
80% |
| 接道状況 |
北東 4.1m 公道
|
地目 |
宅地 |
| 国土法届出 |
- |
セットバック |
- |
| アピールポイント |
【営業時間 10:00~20:00】
上記時間はお電話が繋がりやすくなっております
人気物件には特に問い合わせが集中するため、お早めにお電話ください
お電話の場合、緑色の電話で問い合わせをクリック♪
又は
「資料請求(無料)」ボタンよりご予約いただくとご見学がスムーズです
当店は二俣川駅から徒歩1分の立地!青い看板が目印!
開放的な接客スペースとDVDや遊び道具が揃ったキッズコーナーをご用意しておりますので、お子様連れでも安心です!
提携駐車場もご用意しております。
ご来場の際は、事前にご予約をお願いします
「室内・現地を見学する」ボタンよりご予約頂くとスムーズです
現地ご案内
お客様の貴重なお時間の中で、ご希望の情報をご案内します
ご都合に合わせたご紹介をします
おおよその所要時間や内容は、下記をご参考ください
ご希望条件のご相談(30分~)
資金計画のご相談(30分~)
現地/物件見学(30分~)
周辺環境のご紹介(30分~)
ライフスタイルは人により様々、
ご家族の思いを受け止めて設計致します。まずはスタートをすることが大切です。
私達は様々なご要望にお応え致します! |
| 特記事項 |
- |
| 備考 |
法令等制限:宅地造成工事規制区域 敷地面積最低限度有 日影制限有
総区画:20区画
開発許可等番号:2024開1611
高さ限度有 景観法 高度地区 生産緑地地区(第88036号)
**~** すまい安心のおとりつぎ **~**当社13店舗のネットワークを駆使し「新鮮」で「安全」な情報をお届けします。■ここが大事!!周辺の教育施設やスーパー、ドラックストア等の情報、災害情報を「物件レポート」お渡します!■他の物件と併せてご案内もOK!■ご自宅や指定場所から無料送迎もOK!■当日見学もOK!
|
| エネルギー消費性能 |
- |
| 断熱性能 |
- |
| 目安光熱費 |
- |
| バス・トイレ |
- |
| キッチン |
- |
| 設備・サービス |
上水道、下水道、都市ガス、電気 |
| その他 |
- |
| 条件等 |
建築条件付き |
現況 |
更地 |
| 引渡し(可能時期/方法) |
相談/- |
物件番号 |
1147885211 |
| 情報公開日 |
2025年11月9日 |
次回更新予定日 |
2025年12月15日 |
| ケータイ用バーコード |
- スマートフォンでこの物件を見る
- スマートフォンからもこの物件をご覧になれます。
|
※「-」と表示されている項目については、情報提供会社にご確認ください。
| 周辺施設 |
横浜市立岡津小学校 |
| 距離 |
1220m |
写真を見る |
| 周辺施設 |
横浜市立岡津中学校 |
| 距離 |
1310m |
写真を見る |
| 周辺施設 |
相模鉄道 弥生台駅 |
| 距離 |
1300m |
写真を見る |
| 周辺施設 |
岡津幼稚園 |
| 距離 |
1100m |
写真を見る |
| 周辺施設 |
領家キッズ保育園 |
| 距離 |
1300m |
写真を見る |
| 周辺施設 |
岡津クリニック |
| 距離 |
450m |
写真を見る |
| 周辺施設 |
いなげや 横浜西が岡店 |
| 距離 |
550m |
写真を見る |
ここから簡単にお問い合わせをすることができます。
(SSLでの暗号化での送信を希望されるお客さまは
こちら
よりお問い合わせください)
お問い合わせを行う前に
「個人情報の取り扱いについて」を必ずお読みください。
「個人情報の取り扱いについて」に同意いただいた場合は「上記にご同意の上 確認画面へ進む」のボタンをクリックしてください。
個人情報の取り扱いについて
皆さまが送付された個人情報はアットホーム(株)のサーバを経由し、お問い合わせ先の不動産会社にメールまたはFAXにて転送されるためアットホーム(株)にも保管されます。アットホーム(株)で保管された個人情報の取り扱いについては、【こちら】をご覧ください。
また、本画面でご記入いただいた個人情報は、お問い合わせ先の不動産会社でも保管します。 お問い合わせ先の不動産会社が保管する個人情報の取り扱いについては、不動産会社に直接お問い合わせください。
国土交通大臣免許(9)第3744号 |
|---|
- 交通:
- 相鉄本線/二俣川駅 徒歩1分
- 神奈川県横浜市旭区二俣川1丁目6-1 二俣川北口ビル1階
- TEL:
- 045-360-4361
- FAX:
- 045-360-4312
- 所属団体:
- (公社)神奈川県宅地建物取引業協会会員(公社)首都圏不動産公正取引協議会加盟
取引態様:媒介  - 00784254
|
- スマートフォンで
この不動産会社を見る

|
- 提携サイト等より掲載されている物件情報につきましては、不動産会社詳細情報にリンクされていないものがあります。
- 物件に関するお問合せは、物件詳細ページの「情報提供会社」に表示されている不動産会社へ直接お願いいたします。
- 間取図は、現況を優先させていただきます。
- 映像は物件の一部を撮影したものです。物件の契約にあたっての最終判断はご自身の判断に基づいて行ってください。
- 仲介手数料について

アットホームは物件情報の適正化に努めております。
内容に誤りがある場合にはこちらへご連絡ください。