東京都品川区豊町5丁目(西大井駅)の土地:物件詳細
交通 所在地 |
駅徒歩 |
価格 坪単価 |
土地面積(坪数) 私道負担面積 |
引渡方法 最適用途 |
建ぺい率 容積率 |
|
JR横須賀線/西大井
東京都品川区豊町5丁目
|
6分
|
19,880万円
304.74万円
|
215.66m²
(65.23坪)
なし
|
更地渡
住宅用地
|
60%
160%
|
|
間取図
全体区画図
|
外観
現況写真
|
<
その他の画像
>
|
| 交通 | JR横須賀線 西大井駅 徒歩6分 |
|---|
| その他の交通 | 東急大井町線 戸越公園駅 徒歩8分 都営浅草線 中延駅 徒歩10分 |
| 所在地 |
東京都品川区豊町5丁目
|
| 物件種目 |
土地 |
| 価格 |
19,880万円 |
坪単価 |
304.74万円 |
| 借地期間・地代(月額) |
- |
権利金 |
- |
| 敷金または保証金 |
- / - |
維持費等 |
- |
| その他一時金 |
- |
|
|
| 土地面積 |
215.66m²(実測) |
坪数 |
65.23坪 |
| 最適用途 |
住宅用地 |
私道負担面積 |
なし |
| 土地権利 |
所有権 |
都市計画 |
市街化区域 |
| 用途地域 |
1種住居 |
地勢 |
- |
| 建ぺい率 |
60% |
容積率 |
160% |
| 接道状況 |
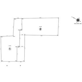
南西 4.3m 公道 接面9.1m
|
地目 |
宅地 |
| 国土法届出 |
- |
セットバック |
- |
| アピールポイント |
◆◇ライフプランシミュレーション(無料)による無理のない資金計画のご提案◇◆
「今が買い時、借り時」といった甘い言葉に惑わされず、10~20年後をシミュレーションすることが必要
◆◇近隣聞き込み調査や役所調査を含めた独自の物件調査報告書の作成◇◆
近隣聞き込みや役所調査を含めた独自の物件調査報告書の作成。不動産購入に関する不安を解消
★☆住宅購入セミナー(無料)☆★
わかりやすくより的確なセミナーを定期的に個別の住宅ローン相談からセミナーを毎月開催
★☆HP会員限定物件公開中(無料)☆★
独自ルートで毎日数十件取得、弊社成約の60%超はネット未掲載物件
★☆不動産購入に関するお客様の不安を解消いたします☆★
◆◇不動産の専門家がマイホーム探しを徹底サポート◇◆ |
| 特記事項 |
分割可 |
| 備考 |
法令等制限:景観法、航空法、第二種高度地区、準防火/新防火地域、日影規制
区画番号:一括
西大井駅6分◆◆利便性が充実
その他法令等制限:宅地造成及び特定盛土等規制法◆◇不動産の専門家ファイナンシャルプランナーがあなたのマイホーム探しを徹底サポート◇◆
|
| エネルギー消費性能 |
- |
| 断熱性能 |
- |
| 目安光熱費 |
- |
| バス・トイレ |
- |
| キッチン |
- |
| 設備・サービス |
上水道、下水道、都市ガス、電気 |
| その他 |
- |
| 条件等 |
- |
現況 |
建物有 |
| 引渡し(可能時期/方法) |
相談/更地渡 |
物件番号 |
1150998808 |
| 情報公開日 |
2026年2月7日 |
次回更新予定日 |
2026年2月21日 |
| ケータイ用バーコード |
- スマートフォンでこの物件を見る
- スマートフォンからもこの物件をご覧になれます。
|
※「-」と表示されている項目については、情報提供会社にご確認ください。
| 周辺施設 |
JR西大井駅 |
| 距離 |
450m |
写真を見る |
| 周辺施設 |
【小中一貫校】品川区立豊葉の杜学園 |
| 距離 |
600m |
写真を見る |
| 周辺施設 |
西大井保育園 |
| 距離 |
600m |
写真を見る |
| 周辺施設 |
ビッグ・エー 品川豊町店 |
| 距離 |
350m |
写真を見る |
| 周辺施設 |
セブンイレブン品川戸越5丁目店 |
| 距離 |
350m |
写真を見る |
| 周辺施設 |
ツルハドラッグ戸越公園店 |
| 距離 |
550m |
写真を見る |
| 周辺施設 |
昭和大学病院 |
| 距離 |
2000m |
写真を見る |
ここから簡単にお問い合わせをすることができます。
(SSLでの暗号化での送信を希望されるお客さまは
こちら
よりお問い合わせください)
お問い合わせを行う前に
「個人情報の取り扱いについて」を必ずお読みください。
「個人情報の取り扱いについて」に同意いただいた場合は「上記にご同意の上 確認画面へ進む」のボタンをクリックしてください。
個人情報の取り扱いについて
皆さまが送付された個人情報はアットホーム(株)のサーバを経由し、お問い合わせ先の不動産会社にメールまたはFAXにて転送されるためアットホーム(株)にも保管されます。アットホーム(株)で保管された個人情報の取り扱いについては、【こちら】をご覧ください。
また、本画面でご記入いただいた個人情報は、お問い合わせ先の不動産会社でも保管します。 お問い合わせ先の不動産会社が保管する個人情報の取り扱いについては、不動産会社に直接お問い合わせください。
東京都知事免許(4)第86581号 |
|---|
- 交通:
- 都営浅草線/中延駅 徒歩2分
- 東京都品川区二葉4丁目1-20 MC中延ビル4F
- TEL:
- 03-3782-6660
- FAX:
- 03-3782-6662
- 所属団体:
- (公社)全日本不動産協会会員(公社)首都圏不動産公正取引協議会加盟
取引態様:媒介  - 00160578
|
- スマートフォンで
この不動産会社を見る

|
- 提携サイト等より掲載されている物件情報につきましては、不動産会社詳細情報にリンクされていないものがあります。
- 物件に関するお問合せは、物件詳細ページの「情報提供会社」に表示されている不動産会社へ直接お願いいたします。
- 間取図は、現況を優先させていただきます。
- 映像は物件の一部を撮影したものです。物件の契約にあたっての最終判断はご自身の判断に基づいて行ってください。
- 仲介手数料について

アットホームは物件情報の適正化に努めております。
内容に誤りがある場合にはこちらへご連絡ください。