岡山県岡山市南区築港新町1丁目(備前西市駅)の土地:物件詳細
交通 所在地 |
駅徒歩 |
価格 坪単価 |
土地面積(坪数) 私道負担面積 |
引渡方法 最適用途 |
建ぺい率 容積率 |
宇野線/備前西市
岡山県岡山市南区築港新町1丁目
|
65分
|
5,400万円
51.14万円
|
349.13m²
(105.61坪)
なし
|
相談
事業用地
|
80%
200%
|
交通 | 宇野線 備前西市駅 徒歩65分 |
所在地 |
岡山県岡山市南区築港新町1丁目
|
物件種目 |
土地 |
価格 |
5,400万円 |
坪単価 |
51.14万円 |
借地期間・地代(月額) |
- |
権利金 |
- |
敷金または保証金 |
- / - |
維持費等 |
- |
その他一時金 |
- |
|
|
土地面積 |
349.13m²(実測) |
坪数 |
105.61坪 |
最適用途 |
事業用地 |
私道負担面積 |
なし |
土地権利 |
所有権 |
都市計画 |
市街化区域 |
用途地域 |
近隣商業 |
地勢 |
平坦 |
建ぺい率 |
80% |
容積率 |
200% |
接道状況 |
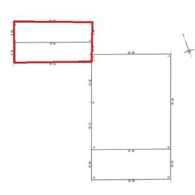
西 16.0m 公道 接面13.6m
|
地目 |
原野 |
国土法届出 |
- |
セットバック |
- |
アピールポイント |
詳細はお気軽にお問合せください。 |
特記事項 |
整形地 |
備考 |
法令等制限:準防火地域
総区画:1区画
・現況渡しとなります。 ・引渡し時期については相談となります。
・南東の隣地(実測1109.01㎡(約335.47坪))と一括で16,135万円でも販売中です。
・上下水道、下水道、ガス:前面道路配管あり
|
エネルギー消費性能 |
- |
断熱性能 |
- |
目安光熱費 |
- |
バス・トイレ |
- |
キッチン |
- |
設備・サービス |
- |
その他 |
- |
条件等 |
- |
現況 |
更地 |
引渡し(可能時期/方法) |
相談/相談 |
物件番号 |
1163568207 |
情報公開日 |
2025年9月8日 |
次回更新予定日 |
2025年11月6日 |
ケータイ用バーコード |
- スマートフォンでこの物件を見る
- スマートフォンからもこの物件をご覧になれます。
|
※「-」と表示されている項目については、情報提供会社にご確認ください。
周辺施設 |
ローソン岡山築港新町1丁目店 |
距離 |
300m |
ここから簡単にお問い合わせをすることができます。
(SSLでの暗号化での送信を希望されるお客さまは
こちら
よりお問い合わせください)
お問い合わせを行う前に
「個人情報の取り扱いについて」を必ずお読みください。
「個人情報の取り扱いについて」に同意いただいた場合は「上記にご同意の上 確認画面へ進む」のボタンをクリックしてください。
個人情報の取り扱いについて
皆さまが送付された個人情報はアットホーム(株)のサーバを経由し、お問い合わせ先の不動産会社にメールまたはFAXにて転送されるためアットホーム(株)にも保管されます。アットホーム(株)で保管された個人情報の取り扱いについては、【こちら】をご覧ください。
また、本画面でご記入いただいた個人情報は、お問い合わせ先の不動産会社でも保管します。 お問い合わせ先の不動産会社が保管する個人情報の取り扱いについては、不動産会社に直接お問い合わせください。
国土交通大臣免許(2)第9597号 |
---|
- 交通:
- JR山陽本線/北長瀬駅 徒歩9分 【バス】3分 中仙道
- 岡山県岡山市北区中仙道2丁目33-1 2F
- TEL:
- 086-242-0288
- FAX:
- 086-238-1520
- 所属団体:
- (公社)岡山県宅地建物取引業協会会員不動産公正取引協議会加盟
取引態様:媒介  - 50104323
|
- スマートフォンで
この不動産会社を見る

|
- 提携サイト等より掲載されている物件情報につきましては、不動産会社詳細情報にリンクされていないものがあります。
- 物件に関するお問合せは、物件詳細ページの「情報提供会社」に表示されている不動産会社へ直接お願いいたします。
- 間取図は、現況を優先させていただきます。
- 映像は物件の一部を撮影したものです。物件の契約にあたっての最終判断はご自身の判断に基づいて行ってください。
- 仲介手数料について

アットホームは物件情報の適正化に努めております。
内容に誤りがある場合にはこちらへご連絡ください。