神奈川県横浜市戸塚区舞岡町(戸塚駅)の土地:物件詳細
交通 所在地 |
駅徒歩 |
価格 坪単価 |
土地面積(坪数) 私道負担面積 |
引渡方法 最適用途 |
建ぺい率 容積率 |
|
JR横須賀線/戸塚
神奈川県横浜市戸塚区舞岡町
|
21分
|
2,880万円
158.68万円
|
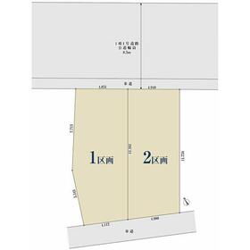
60.00m²
(18.14坪)
なし
|
相談
-
|
60%
200%
|
|
間取図
建物参考プラン 価格:1,500万円 面積:95.52m2
|
その他
|
その他の画像
|
| 交通 | JR横須賀線 戸塚駅 徒歩21分 |
|---|
| その他の交通 | ブルーライン 舞岡駅 徒歩19分 湘南新宿ライン(宇都宮〜逗子) 戸塚駅 徒歩21分 |
| 所在地 |
神奈川県横浜市戸塚区舞岡町
|
| 物件種目 |
土地 |
| 価格 |
2,880万円 |
坪単価 |
158.68万円 |
| 借地期間・地代(月額) |
- |
権利金 |
- |
| 敷金または保証金 |
- / - |
維持費等 |
- |
| その他一時金 |
- |
|
|
| 土地面積 |
60.00m² |
坪数 |
18.14坪 |
| 最適用途 |
- |
私道負担面積 |
なし |
| 土地権利 |
所有権 |
都市計画 |
市街化区域 |
| 用途地域 |
1種住居 |
地勢 |
- |
| 建ぺい率 |
60% |
容積率 |
200% |
| 接道状況 |
北東 8.5m 公道
|
地目 |
宅地 |
| 国土法届出 |
- |
セットバック |
- |
| 特記事項 |
- |
| 備考 |
-
|
| エネルギー消費性能 |
- |
| 断熱性能 |
- |
| 目安光熱費 |
- |
| バス・トイレ |
- |
| キッチン |
- |
| 設備・サービス |
都市ガス |
| その他 |
- |
| 条件等 |
- |
現況 |
更地 |
| 引渡し(可能時期/方法) |
相談/相談 |
物件番号 |
1169593807 |
| 情報公開日 |
2026年1月17日 |
次回更新予定日 |
2026年2月20日 |
| ケータイ用バーコード |
- スマートフォンでこの物件を見る
- スマートフォンからもこの物件をご覧になれます。
|
※「-」と表示されている項目については、情報提供会社にご確認ください。
| 周辺施設 |
JR「戸塚」駅 |
| 距離 |
1680m |
写真を見る |
| 周辺施設 |
ブルーライン「舞岡」駅 |
| 距離 |
1520m |
写真を見る |
| 周辺施設 |
イオンスタイル戸塚 |
| 距離 |
640m |
写真を見る |
| 周辺施設 |
マルエツ戸塚舞岡店 |
| 距離 |
850m |
写真を見る |
| 周辺施設 |
柏尾町第二公園 |
| 距離 |
786m |
写真を見る |
| 周辺施設 |
横浜市立舞岡小学校 |
| 距離 |
864m |
写真を見る |
| 周辺施設 |
横浜市立舞岡中学校 |
| 距離 |
373m |
写真を見る |
| 周辺施設 |
秋葉保育園 |
| 距離 |
1221m |
写真を見る |
ここから簡単にお問い合わせをすることができます。
(SSLでの暗号化での送信を希望されるお客さまは
こちら
よりお問い合わせください)
お問い合わせを行う前に
「個人情報の取り扱いについて」を必ずお読みください。
「個人情報の取り扱いについて」に同意いただいた場合は「上記にご同意の上 確認画面へ進む」のボタンをクリックしてください。
個人情報の取り扱いについて
皆さまが送付された個人情報はアットホーム(株)のサーバを経由し、お問い合わせ先の不動産会社にメールまたはFAXにて転送されるためアットホーム(株)にも保管されます。アットホーム(株)で保管された個人情報の取り扱いについては、【こちら】をご覧ください。
また、本画面でご記入いただいた個人情報は、お問い合わせ先の不動産会社でも保管します。 お問い合わせ先の不動産会社が保管する個人情報の取り扱いについては、不動産会社に直接お問い合わせください。
国土交通大臣免許(1)第9996号 |
|---|
- 交通:
- JR山手線/渋谷駅 徒歩1分
- 東京都渋谷区渋谷1丁目13-9 渋谷たくぎんビル
- TEL:
- 0120-717-021
- FAX:
- 03-3400-9964
- 所属団体:
- (一社)不動産流通経営協会会員(一社)全国住宅産業協会会員(公社)首都圏不動産公正取引協議会加盟
取引態様:媒介  - 00781691
|
- スマートフォンで
この不動産会社を見る

|
- 提携サイト等より掲載されている物件情報につきましては、不動産会社詳細情報にリンクされていないものがあります。
- 物件に関するお問合せは、物件詳細ページの「情報提供会社」に表示されている不動産会社へ直接お願いいたします。
- 間取図は、現況を優先させていただきます。
- 映像は物件の一部を撮影したものです。物件の契約にあたっての最終判断はご自身の判断に基づいて行ってください。
- 仲介手数料について

アットホームは物件情報の適正化に努めております。
内容に誤りがある場合にはこちらへご連絡ください。