神奈川県相模原市南区東林間1丁目(東林間駅)の土地:物件詳細
交通 所在地 |
駅徒歩 |
価格 坪単価 |
土地面積(坪数) 私道負担面積 |
引渡方法 最適用途 |
建ぺい率 容積率 |
|
小田急江ノ島線/東林間
神奈川県相模原市南区東林間1丁目
|
12分
|
3,940万円
114.27万円
|
113.99m²
(34.48坪)
-
|
更地渡
住宅用地
|
60%
200%
|
|
地形図等
【全体区画図】
|
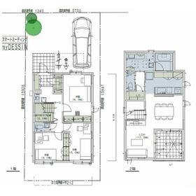
その他
参考プラン
|
<
その他の画像
>
|
| 交通 | 小田急江ノ島線 東林間駅 徒歩12分 |
|---|
| その他の交通 | 小田急小田原線 相模大野駅 徒歩14分 小田急小田原線 小田急相模原駅 徒歩20分 |
| 所在地 |
神奈川県相模原市南区東林間1丁目
|
| 物件種目 |
土地 |
| 価格 |
3,940万円 |
坪単価 |
114.27万円 |
| 借地期間・地代(月額) |
- |
権利金 |
- |
| 敷金または保証金 |
- / - |
維持費等 |
- |
| その他一時金 |
なし |
|
|
| 土地面積 |
113.99m² |
坪数 |
34.48坪 |
| 最適用途 |
住宅用地 |
私道負担面積 |
- |
| 土地権利 |
所有権 |
都市計画 |
市街化区域 |
| 用途地域 |
1種中高 |
地勢 |
- |
| 建ぺい率 |
60% |
容積率 |
200% |
| 接道状況 |
北 6.0m 公道
|
地目 |
山林 |
| 国土法届出 |
- |
セットバック |
- |
| アピールポイント |
◇小田急江ノ島線「東林間」駅より徒歩12分に立地します。利便性の高さと緑豊かな環境が調和するエリアです。
◇都心や横浜方面へのアクセスも快適で、通勤・通学にも便利です。
◇ご家族にちょうど良い住まいを計画できる、約34坪の建築条件付き売地です。ヘーベルハウスならではの高い断熱性や遮音性も、ご家族の快適な暮らしを支えます。
◇日々の暮らしに便利なスーパーやコンビニ、教育施設や医療機関も揃い、安心の生活環境が整っています。
◇周辺には小・中学校や公園が身近に揃い、子育てにも安心の環境です。緑豊かな街並みの中で、伸び伸びとした子育てライフを楽しめます。
現地へのご案内等、随時受け承っております。周辺環境も含めまして、是非一度現地をご覧ください。 |
| 特記事項 |
- |
| 備考 |
法令等制限:準防火地域
区画番号:2区画
総区画:4区画
|
| エネルギー消費性能 |
- |
| 断熱性能 |
- |
| 目安光熱費 |
- |
| バス・トイレ |
- |
| キッチン |
- |
| 設備・サービス |
下水道、都市ガス、電気 |
| その他 |
- |
| 条件等 |
建築条件付き |
現況 |
更地 |
| 引渡し(可能時期/方法) |
相談/更地渡 |
物件番号 |
1188366415 |
| 情報公開日 |
2025年9月20日 |
次回更新予定日 |
2025年11月4日 |
| ケータイ用バーコード |
- スマートフォンでこの物件を見る
- スマートフォンからもこの物件をご覧になれます。
|
※「-」と表示されている項目については、情報提供会社にご確認ください。
| 周辺施設 |
小田急江ノ島線「東林間」駅 |
| 距離 |
840m |
写真を見る |
| 周辺施設 |
sanwa東林間店 |
| 距離 |
1000m |
写真を見る |
| 周辺施設 |
セブンイレブン相模原東林間1丁目店 |
| 距離 |
500m |
写真を見る |
| 周辺施設 |
クリエイトエス・ディー東林間駅前通り店 |
| 距離 |
800m |
写真を見る |
| 周辺施設 |
Gakkenほいくえん東林間 |
| 距離 |
350m |
写真を見る |
| 周辺施設 |
相模原市立鶴の台小学校 |
| 距離 |
500m |
写真を見る |
| 周辺施設 |
相模原市立新町中学校 |
| 距離 |
700m |
写真を見る |
ここから簡単にお問い合わせをすることができます。
(SSLでの暗号化での送信を希望されるお客さまは
こちら
よりお問い合わせください)
お問い合わせを行う前に
「個人情報の取り扱いについて」を必ずお読みください。
「個人情報の取り扱いについて」に同意いただいた場合は「上記にご同意の上 確認画面へ進む」のボタンをクリックしてください。
個人情報の取り扱いについて
皆さまが送付された個人情報はアットホーム(株)のサーバを経由し、お問い合わせ先の不動産会社にメールまたはFAXにて転送されるためアットホーム(株)にも保管されます。アットホーム(株)で保管された個人情報の取り扱いについては、【こちら】をご覧ください。
また、本画面でご記入いただいた個人情報は、お問い合わせ先の不動産会社でも保管します。 お問い合わせ先の不動産会社が保管する個人情報の取り扱いについては、不動産会社に直接お問い合わせください。
国土交通大臣免許(15)第1168号 |
|---|
- 交通:
- 小田急小田原線/新百合ヶ丘駅 徒歩1分
- 神奈川県川崎市麻生区万福寺1丁目18-1 新百合ヶ丘駅北口ロータリー前
- TEL:
- 0120-090-918
- FAX:
- 044-966-0755
- 所属団体:
- (一社)不動産協会会員(一社)不動産流通経営協会会員(公社)首都圏不動産公正取引協議会加盟
取引態様:媒介  - 00781390
|
- スマートフォンで
この不動産会社を見る

|
- 提携サイト等より掲載されている物件情報につきましては、不動産会社詳細情報にリンクされていないものがあります。
- 物件に関するお問合せは、物件詳細ページの「情報提供会社」に表示されている不動産会社へ直接お願いいたします。
- 間取図は、現況を優先させていただきます。
- 映像は物件の一部を撮影したものです。物件の契約にあたっての最終判断はご自身の判断に基づいて行ってください。
- 仲介手数料について

アットホームは物件情報の適正化に努めております。
内容に誤りがある場合にはこちらへご連絡ください。