兵庫県加古川市野口町古大内(東加古川駅)の土地:物件詳細
交通 所在地 |
駅徒歩 |
価格 坪単価 |
土地面積(坪数) 私道負担面積 |
引渡方法 最適用途 |
建ぺい率 容積率 |
|
JR山陽本線/東加古川
兵庫県加古川市野口町古大内
|
23分
|
1,426万円
37万円
|
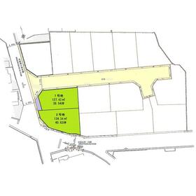
127.42m²
(38.54坪)
-
|
現況渡
住宅用地
|
60%
200%
|
|
地形図等
|
その他
|
その他の画像
|
| 交通 | JR山陽本線 東加古川駅 徒歩23分 |
| 所在地 |
兵庫県加古川市野口町古大内
|
| 物件種目 |
土地 |
| 価格 |
1,426万円 |
坪単価 |
37万円 |
| 借地期間・地代(月額) |
- |
権利金 |
- |
| 敷金または保証金 |
- / - |
維持費等 |
- |
| その他一時金 |
- |
|
|
| 土地面積 |
127.42m²(公簿) |
坪数 |
38.54坪 |
| 最適用途 |
住宅用地 |
私道負担面積 |
- |
| 土地権利 |
所有権 |
都市計画 |
市街化区域 |
| 用途地域 |
1種住居 |
地勢 |
平坦 |
| 建ぺい率 |
60% |
容積率 |
200% |
| 接道状況 |
北 6.0m
|
地目 |
宅地 |
| 国土法届出 |
- |
セットバック |
- |
| アピールポイント |
◇周辺環境◇
・ファミリーマート 加古川野口町店まで徒歩約4分
・ダイレックス 加古川野口店まで徒歩約8分
・イオン加古川店まで徒歩約13分
センチュリー21リブライフ加古川店は地域密着型です。住宅ローンや不動産のことなら、どのようなことでもお気軽にご相談ください。
私たちセンチュリー21は不動産のプロフェッショナルとして、お客様のご要望にお応えします!! |
| 特記事項 |
整形地 |
| 備考 |
・土日はもちろん、平日、お仕事帰りのご見学も大歓迎
・ご見学方法は以下の内容をご参考にしてください♪
お客様のご都合に合わせて内容を変更することが可能です。
○ショートプラン
【目安時間:30分~1時間】
「とりあえず物件だけ見たい」という方に最適。
現地待ち合わせ、もしくはお車での送迎で物件見学のみを行うプランです。
○スタンダードプラン
【目安時間:2時間~4時間】
「ついでに他の物件も見学したい」という方に最適。お問い合わせいただいた物件の他に未公開物件のご紹介。資金計画のご相談。現地の物件見学を行っていただきます。
○スペシャルプラン
【目安時間:4時間~8時間】
お住まい探しが初めてで一から相談したい方に最適。
弊社にご来社いただき、『住宅ローンの安全な組み方のご説明。資金計画のご相談。土地・家の探し方のご相談。現地の物件見学。近隣の周辺の施設のご紹介』を行っていただきます。
10時から2時間程度ご相談し、お昼休憩をとっていただき実際の物件を見学いただきます。
豊富な情報と経験を持ったセンチュリー21のスタッフが、お客様の様々なご要望に沿ったアドバイスをいたします。
|
| エネルギー消費性能 |
- |
| 断熱性能 |
- |
| 目安光熱費 |
- |
| バス・トイレ |
- |
| キッチン |
- |
| 設備・サービス |
上水道、下水道、都市ガス |
| その他 |
- |
| 条件等 |
- |
現況 |
更地 |
| 引渡し(可能時期/方法) |
相談/現況渡 |
物件番号 |
6979039165 |
| 情報公開日 |
2025年11月2日 |
次回更新予定日 |
2025年12月14日 |
| ケータイ用バーコード |
- スマートフォンでこの物件を見る
- スマートフォンからもこの物件をご覧になれます。
|
※「-」と表示されている項目については、情報提供会社にご確認ください。
ここから簡単にお問い合わせをすることができます。
(SSLでの暗号化での送信を希望されるお客さまは
こちら
よりお問い合わせください)
お問い合わせを行う前に
「個人情報の取り扱いについて」を必ずお読みください。
「個人情報の取り扱いについて」に同意いただいた場合は「上記にご同意の上 確認画面へ進む」のボタンをクリックしてください。
個人情報の取り扱いについて
皆さまが送付された個人情報はアットホーム(株)のサーバを経由し、お問い合わせ先の不動産会社にメールまたはFAXにて転送されるためアットホーム(株)にも保管されます。アットホーム(株)で保管された個人情報の取り扱いについては、【こちら】をご覧ください。
また、本画面でご記入いただいた個人情報は、お問い合わせ先の不動産会社でも保管します。 お問い合わせ先の不動産会社が保管する個人情報の取り扱いについては、不動産会社に直接お問い合わせください。
兵庫県知事免許(2)第451624号 |
|---|
- 交通:
- JR山陽本線/加古川駅 徒歩2分
- 兵庫県加古川市加古川町篠原町50番地7 ウィズマークス加古川駅前104号
- TEL:
- 079-453-6130
- FAX:
- 079-453-6103
- 所属団体:
- (一社)兵庫県宅地建物取引業協会会員不動産公正取引協議会加盟
取引態様:売主  - 50019237
|
- スマートフォンで
この不動産会社を見る

|
- 提携サイト等より掲載されている物件情報につきましては、不動産会社詳細情報にリンクされていないものがあります。
- 物件に関するお問合せは、物件詳細ページの「情報提供会社」に表示されている不動産会社へ直接お願いいたします。
- 間取図は、現況を優先させていただきます。
- 映像は物件の一部を撮影したものです。物件の契約にあたっての最終判断はご自身の判断に基づいて行ってください。
- 仲介手数料について

アットホームは物件情報の適正化に努めております。
内容に誤りがある場合にはこちらへご連絡ください。