福井県福井市高木中央1丁目(まつもと町屋駅)の土地:物件詳細
交通 所在地 |
駅徒歩 |
価格 坪単価 |
土地面積(坪数) 私道負担面積 |
引渡方法 最適用途 |
建ぺい率 容積率 |
|
えちぜん鉄道三国線/まつもと町屋
福井県福井市高木中央1丁目
|
23分
|
1,697万円
23万円
|
244.00m²
(73.80坪)
-
|
現況渡
住宅用地
|
60%
200%
|
|
地形図等
|
|
<
その他の画像
>
|
| 交通 | えちぜん鉄道三国線 まつもと町屋駅 徒歩23分 |
|---|
| その他の交通 | えちぜん鉄道三国線 西別院駅 徒歩28分 えちぜん鉄道勝山線 越前開発駅 徒歩28分 |
| 所在地 |
福井県福井市高木中央1丁目
|
| 物件種目 |
土地 |
| 価格 |
1,697万円 |
坪単価 |
23万円 |
| 借地期間・地代(月額) |
- |
権利金 |
- |
| 敷金または保証金 |
- / - |
維持費等 |
- |
| その他一時金 |
- |
|
|
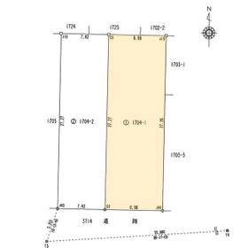
| 土地面積 |
244.00m²(公簿) |
坪数 |
73.80坪 |
| 最適用途 |
住宅用地 |
私道負担面積 |
- |
| 土地権利 |
所有権 |
都市計画 |
市街化区域 |
| 用途地域 |
1種住居 |
地勢 |
平坦 |
| 建ぺい率 |
60% |
容積率 |
200% |
| 接道状況 |
南 6.0m 公道 接面8.9m
|
地目 |
田 |
| 国土法届出 |
- |
セットバック |
- |
| アピールポイント |
待望の高木中央1丁目から売土地が登場しました♪
こちらがあるのは、ゲンキー高木中央店から徒歩2分の場所にある閑静な住宅街の一画で、ご存知の通り、徒歩圏内には多種多様な商業施設が豊富に並ぶ好立地♪
コンビニ・ドラッグストア、美味しいと評判の飲食店等も豊富です(^^♪
「高木線」・「環状東線」と主要幹線道路まで車で1分とすぐそこで、交通アクセスも大変良好です。
さらに、近日オープン予定の「そよら福井開発」へ車で4分、エルパ大和田店には車で7分という充実ぶりです!
土地面積もゆったり贅沢な約73坪!!
その他、些細なことでも何でもお気軽にお問い合わせください。
お待ちしております。
校区 中藤小学校、灯明寺中学校
※上下水道前面道本管有り(宅内引込無しのため、買主様にて引込みが必要になります。負担金・施工費は買主様負担になります。) |
| 特記事項 |
- |
| 備考 |
※上下水道前面道本管有り(宅内引込無しのため、買主様にて引込みが必要になります。負担金・施工費は買主様負担になります。)
|
| エネルギー消費性能 |
- |
| 断熱性能 |
- |
| 目安光熱費 |
- |
| バス・トイレ |
- |
| キッチン |
- |
| 設備・サービス |
- |
| その他 |
- |
| 条件等 |
- |
現況 |
更地 |
| 引渡し(可能時期/方法) |
相談/現況渡 |
物件番号 |
6983176837 |
| 情報公開日 |
2024年8月8日 |
次回更新予定日 |
2025年12月29日 |
| ケータイ用バーコード |
- スマートフォンでこの物件を見る
- スマートフォンからもこの物件をご覧になれます。
|
※「-」と表示されている項目については、情報提供会社にご確認ください。
| 周辺施設 |
ゲンキー高木中央店 |
| 距離 |
168m |
写真を見る |
| 周辺施設 |
ファミリーマート福井高木中央店 |
| 距離 |
211m |
写真を見る |
| 周辺施設 |
高木中央公園 |
| 距離 |
339m |
写真を見る |
| 周辺施設 |
クスリのアオキ高木中央店 |
| 距離 |
253m |
写真を見る |
| 周辺施設 |
トマト&オニオン高木店 |
| 距離 |
238m |
写真を見る |
| 周辺施設 |
ローソン福井高木中央一丁目店 |
| 距離 |
361m |
ここから簡単にお問い合わせをすることができます。
(SSLでの暗号化での送信を希望されるお客さまは
こちら
よりお問い合わせください)
お問い合わせを行う前に
「個人情報の取り扱いについて」を必ずお読みください。
「個人情報の取り扱いについて」に同意いただいた場合は「上記にご同意の上 確認画面へ進む」のボタンをクリックしてください。
個人情報の取り扱いについて
皆さまが送付された個人情報はアットホーム(株)のサーバを経由し、お問い合わせ先の不動産会社にメールまたはFAXにて転送されるためアットホーム(株)にも保管されます。アットホーム(株)で保管された個人情報の取り扱いについては、【こちら】をご覧ください。
また、本画面でご記入いただいた個人情報は、お問い合わせ先の不動産会社でも保管します。 お問い合わせ先の不動産会社が保管する個人情報の取り扱いについては、不動産会社に直接お問い合わせください。
福井県知事免許(4)第1510号 |
|---|
- 交通:
- ハピラインふくい/鯖江駅
- 福井県鯖江市新横江2丁目1-26
- TEL:
- 0778-43-6255
- FAX:
- 0778-43-6256
- 所属団体:
- (公社)全日本不動産協会会員北陸不動産公正取引協議会加盟
取引態様:媒介  - 40408263
|
- スマートフォンで
この不動産会社を見る

|
- 提携サイト等より掲載されている物件情報につきましては、不動産会社詳細情報にリンクされていないものがあります。
- 物件に関するお問合せは、物件詳細ページの「情報提供会社」に表示されている不動産会社へ直接お願いいたします。
- 間取図は、現況を優先させていただきます。
- 映像は物件の一部を撮影したものです。物件の契約にあたっての最終判断はご自身の判断に基づいて行ってください。
- 仲介手数料について

アットホームは物件情報の適正化に努めております。
内容に誤りがある場合にはこちらへご連絡ください。