広島県広島市安佐南区八木6丁目(上八木駅)の土地:物件詳細
交通 所在地 |
駅徒歩 |
価格 坪単価 |
土地面積(坪数) 私道負担面積 |
引渡方法 最適用途 |
建ぺい率 容積率 |
|
可部線/上八木
広島県広島市安佐南区八木6丁目
|
9分
|
900万円
20.35万円
|
146.27m²
(44.24坪)
-
|
更地渡
住宅用地
|
60%
200%
|
|
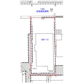
地形図等
|
その他
本物件は土地販売です。建物は参考プランであり、建築には別途建築確認が必要です。
|
<
その他の画像
>
|
| 交通 | 可部線 上八木駅 徒歩9分 |
|---|
| その他の交通 | 可部線 梅林駅 徒歩20分 可部線 中島駅 徒歩25分 |
| 所在地 |
広島県広島市安佐南区八木6丁目
|
| 物件種目 |
土地 |
| 価格 |
900万円 |
坪単価 |
20.35万円 |
| 借地期間・地代(月額) |
- |
権利金 |
- |
| 敷金または保証金 |
- / - |
維持費等 |
- |
| その他一時金 |
- |
|
|
| 土地面積 |
146.27m²(実測) |
坪数 |
44.24坪 |
| 最適用途 |
住宅用地 |
私道負担面積 |
- |
| 土地権利 |
所有権 |
都市計画 |
市街化区域 |
| 用途地域 |
1種中高 |
地勢 |
- |
| 建ぺい率 |
60% |
容積率 |
200% |
| 接道状況 |
北西 4.0m 公道
|
地目 |
宅地 |
| 国土法届出 |
- |
セットバック |
- |
| アピールポイント |
〇参考プラン例ございます!!
〇小学校まで徒歩約9分とお子様の通学も安心♪
〇幼稚園も徒歩圏内にございます。
〇別所団地中バス停まで徒歩約2分
〇可部線上八木駅まで徒歩約9分と通勤通学にも便利(^^♪
〇徒歩圏内に複数の公園があり穏やかな住環境が広がるエリア
是非お気軽にお問い合わせください(^^)/
イエステーション安佐南店 エネック株式会社 【082-546-9491】 |
| 特記事項 |
- |
| 備考 |
-
|
| エネルギー消費性能 |
- |
| 断熱性能 |
- |
| 目安光熱費 |
- |
| バス・トイレ |
- |
| キッチン |
- |
| 設備・サービス |
上水道、下水道、プロパンガス |
| その他 |
- |
| 条件等 |
- |
現況 |
更地 |
| 引渡し(可能時期/方法) |
相談/更地渡 |
物件番号 |
6984507515 |
| 情報公開日 |
2024年12月13日 |
次回更新予定日 |
2026年1月3日 |
| ケータイ用バーコード |
- スマートフォンでこの物件を見る
- スマートフォンからもこの物件をご覧になれます。
|
※「-」と表示されている項目については、情報提供会社にご確認ください。
| 周辺施設 |
ゆめマート八木 |
| 距離 |
1665m |
写真を見る |
| 周辺施設 |
セブンイレブン広島八木店 |
| 距離 |
491m |
写真を見る |
| 周辺施設 |
広島市立城山北中学校 |
| 距離 |
1178m |
写真を見る |
| 周辺施設 |
広島市立八木小学校 |
| 距離 |
704m |
写真を見る |
| 周辺施設 |
広島市立八木幼稚園 |
| 距離 |
726m |
写真を見る |
ここから簡単にお問い合わせをすることができます。
(SSLでの暗号化での送信を希望されるお客さまは
こちら
よりお問い合わせください)
お問い合わせを行う前に
「個人情報の取り扱いについて」を必ずお読みください。
「個人情報の取り扱いについて」に同意いただいた場合は「上記にご同意の上 確認画面へ進む」のボタンをクリックしてください。
個人情報の取り扱いについて
皆さまが送付された個人情報はアットホーム(株)のサーバを経由し、お問い合わせ先の不動産会社にメールまたはFAXにて転送されるためアットホーム(株)にも保管されます。アットホーム(株)で保管された個人情報の取り扱いについては、【こちら】をご覧ください。
また、本画面でご記入いただいた個人情報は、お問い合わせ先の不動産会社でも保管します。 お問い合わせ先の不動産会社が保管する個人情報の取り扱いについては、不動産会社に直接お問い合わせください。
広島県知事免許(2)第10499号 |
|---|
- 交通:
- 可部線/下祇園駅 徒歩7分
- 広島県広島市安佐南区祇園2丁目23-15
- TEL:
- 082-546-9491
- FAX:
- 082-546-9492
- 所属団体:
- (公社)広島県宅地建物取引業協会会員中国地区不動産公正取引協議会加盟
取引態様:売主  - 50101009
|
- スマートフォンで
この不動産会社を見る

|
- 提携サイト等より掲載されている物件情報につきましては、不動産会社詳細情報にリンクされていないものがあります。
- 物件に関するお問合せは、物件詳細ページの「情報提供会社」に表示されている不動産会社へ直接お願いいたします。
- 間取図は、現況を優先させていただきます。
- 映像は物件の一部を撮影したものです。物件の契約にあたっての最終判断はご自身の判断に基づいて行ってください。
- 仲介手数料について

アットホームは物件情報の適正化に努めております。
内容に誤りがある場合にはこちらへご連絡ください。