不動産 賃貸 マンション等の住宅情報:埼玉住まい情報


埼玉県熊谷市上川上(熊谷駅)の土地:物件詳細

  • 物件詳細
  • 情報の見方
  • 印刷用画面
交通
所在地
駅徒歩 価格
坪単価
土地面積(坪数)
私道負担面積
引渡方法
最適用途
建ぺい率
容積率

JR高崎線/熊谷
[バス利用可] バス 10分 停歩16分

埼玉県熊谷市上川上

3400m

980万円

9.34万円

347.04m² (104.97坪)

現況渡

住宅用地

60%

200%

おすすめコメント  スタッフ: 都所 久史

四季折々の彩りに包まれる良質な環境。

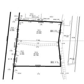
地形図等

地形図等

外観

外観

<
その他の画像
  • 外観
  • 外観
  • 外観
  • 公園
  • レジャー・観光
  • レジャー・観光
  • 幼稚園、保育園
  • 郵便局
  • コンビニ
  • 小学校
  • 飲食店
>
    • とりあえず保存
    • お問い合わせ
    交通

    JR高崎線 熊谷駅 徒歩3400m
    [バス利用可] バス 10分  停歩16分

    所在地 埼玉県熊谷市上川上
    物件種目 土地
    価格 980万円 坪単価 9.34万円
    借地期間・地代(月額) 権利金
    敷金または保証金 - / - 維持費等
    その他一時金 下水道区域外流入付加金㎡単価:370円    
    土地面積 347.04m²(実測) 坪数 104.97坪
    最適用途 住宅用地 私道負担面積
    土地権利 所有権 都市計画 調整区域
    用途地域 無指定 地勢 平坦
    建ぺい率 60% 容積率 200%
    接道状況 西 3.0m 公道 接面19.0m 地目
    国土法届出 セットバック
    特記事項
    備考
    他所在地:572-5,572-6,572-7,
    法令等制限:都市計画法第34条12号開発許可要す
    ・農地法第5条許可要す
    ・土地家屋調査士、司法書士指定あり
    ・境界ブロック盛土造成・上下水道取出し渡し)
    ・埋蔵文化財(北島遺跡)包蔵地内
    ・本下水(区域外流入可能)
    エネルギー消費性能
    断熱性能
    目安光熱費
    バス・トイレ
    キッチン
    設備・サービス 上水道、下水道、プロパンガス
    その他
    条件等 現況 更地
    引渡し(可能時期/方法) 相談/現況渡 物件番号 6985212942
    仲介手数料 33万円    
    情報公開日 2025年9月30日 次回更新予定日 2025年12月30日
    ケータイ用バーコード

    QRコード

    スマートフォンでこの物件を見る
    スマートフォンからもこの物件をご覧になれます。
    ※「-」と表示されている項目については、情報提供会社にご確認ください。

    この物件の周辺情報

    周辺施設 熊谷スポーツ文化公園
    距離 502m
    周辺施設 熊谷ラグビー場
    距離 625m
    周辺施設 花湯スパリゾート
    距離 729m
    周辺施設 新里保育園
    距離 864m
    周辺施設 熊谷肥塚郵便局
    距離 1235m
    周辺施設 セブンイレブン熊谷上之店
    距離 1331m
    周辺施設 熊谷市立成田星宮小学校
    距離 1185m
    周辺施設 マクドナルド熊谷バイパス店
    距離 1226m

    クイックお問い合わせ

    ここから簡単にお問い合わせをすることができます。
    (SSLでの暗号化での送信を希望されるお客さまは こちら よりお問い合わせください)

    お問い合わせ内容(必須)
    お名前(必須) 姓  名 
    メールアドレス(必須)
    ※携帯電話のメールアドレスをご入力される方はこちらをご確認ください
    電話番号(必須)
    - -

    ※入力いただいた電話番号へSMSまたは音声でパスワードをご連絡します。

    携帯電話の番号をご入力の方へ

    携帯電話の番号をご入力の方へ
    確認画面にて送信ボタンをクリックするとSMSが携帯電話に届きます。
    そのSMSに記載のパスワード(認証番号)を入力し、お問い合わせを完了してください。
    尚、SMSの送信者番号は 0005 202 760 となります。
    これはアットホームの固定番号です。

    備考欄 希望条件、物件案内希望日、質問などがございましたらご記入ください。
    お問い合わせを行う前に「個人情報の取り扱いについて」を必ずお読みください。
    「個人情報の取り扱いについて」に同意いただいた場合は「上記にご同意の上 確認画面へ進む」のボタンをクリックしてください。

    個人情報の取り扱いについて

    皆さまが送付された個人情報はアットホーム(株)のサーバを経由し、お問い合わせ先の不動産会社にメールまたはFAXにて転送されるためアットホーム(株)にも保管されます。アットホーム(株)で保管された個人情報の取り扱いについては、【こちら】をご覧ください。
    また、本画面でご記入いただいた個人情報は、お問い合わせ先の不動産会社でも保管します。 お問い合わせ先の不動産会社が保管する個人情報の取り扱いについては、不動産会社に直接お問い合わせください。

    情報提供会社

    情報提供会社

    (株)ライブズ

    埼玉県知事免許(2)第24058号

    交通:
    JR高崎線/熊谷駅 徒歩26分 【バス】7分 外科病院前 停歩5分
    埼玉県熊谷市佐谷田3742番地1 
    TEL:
    048-501-7618
    FAX:
    048-501-7628
    所属団体:
    (公社)埼玉県宅地建物取引業協会会員
    (公社)首都圏不動産公正取引協議会加盟

    取引態様:媒介

    • 会社情報
    • 00267026
    スマートフォンで
    この不動産会社を見る
    QRコード
    • とりあえず保存
    • お問い合わせ
    • 提携サイト等より掲載されている物件情報につきましては、不動産会社詳細情報にリンクされていないものがあります。
    • 物件に関するお問合せは、物件詳細ページの「情報提供会社」に表示されている不動産会社へ直接お願いいたします。
    • 間取図は、現況を優先させていただきます。
    • 映像は物件の一部を撮影したものです。物件の契約にあたっての最終判断はご自身の判断に基づいて行ってください。
    • 仲介手数料について仲介手数料

    アットホームは物件情報の適正化に努めております。 内容に誤りがある場合にはこちらへご連絡ください。

    【埼玉住まい情報】では、日本全国の物件から賃貸マンションや賃貸アパート・賃貸一戸建て等の賃貸住宅情報、新築マンション・分譲マンションや中古マンション等の売買マンション情報、新築一戸建てや中古一戸建てなどの戸建住宅、 土地など、総合的な不動産住宅情報検索サービスを提供致します。
    【埼玉住まい情報】から、選りすぐりの不動産物件を探してみましょう。

    【免責事項】
    このコーナーの運営はアットホーム株式会社(https://www.athome.co.jp/)が行っています。
    このコーナーに掲載している物件情報は、「アットホーム不動産情報ネットワーク」に加盟する不動産会社等(情報提供元)から提供されています。信頼性の高い情報提供が行えるよう、最大限の努力をしておりますが、その内容を保証するものではありません。 利用者のみなさまと各情報提供元との取引に起因する損害および情報が掲載されたことに起因する損害等については、株式会社イーシティ埼玉、およびアットホームは一切責任を負いません。
    各物件情報の内容や画像等はすべて現況を優先させていただきます。
    お取引等(お取引の準備、資金調達等を含みます)の際には、内容や契約条件等について、各情報提供元より十分な説明を受け、ご自身でご確認の上、判断してください。
    このコーナーへの物件情報のご掲載、その他不動産業務ソリューション等についての不動産会社様のお問合せはこちらからお願いいたします。

    物件画像: