石川県河北郡津幡町字清水(本津幡駅)の土地:物件詳細
交通 所在地 |
駅徒歩 |
価格 坪単価 |
土地面積(坪数) 私道負担面積 |
引渡方法 最適用途 |
建ぺい率 容積率 |
|
七尾線/本津幡 [バス利用可] バス 清水中央 停歩2分
石川県河北郡津幡町字清水
|
11分
|
690万円
15.91万円
|
143.37m²
(43.36坪)
-
|
更地渡
住宅用地
|
60%
200%
|
|
地形図等
|
|
その他の画像
|
| 交通 | 七尾線 本津幡駅 徒歩11分 [バス利用可] バス 清水中央 停歩2分 |
| 所在地 |
石川県河北郡津幡町字清水
|
| 物件種目 |
土地 |
| 価格 |
690万円 |
坪単価 |
15.91万円 |
| 借地期間・地代(月額) |
- |
権利金 |
- |
| 敷金または保証金 |
- / - |
維持費等 |
- |
| その他一時金 |
施設負担金:500,000円 |
|
|
| 土地面積 |
143.37m²(公簿) |
坪数 |
43.36坪 |
| 最適用途 |
住宅用地 |
私道負担面積 |
- |
| 土地権利 |
所有権 |
都市計画 |
市街化区域 |
| 用途地域 |
1種住居 |
地勢 |
平坦 |
| 建ぺい率 |
60% |
容積率 |
200% |
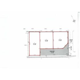
| 接道状況 |
東 3.7m 公道 接面8.9m
・
南 5.0m 公道 接面7.5m
・
二方道路
|
地目 |
畑 |
| 国土法届出 |
- |
セットバック |
- |
| アピールポイント |
閑静な住宅地。東南角、南向き区画あり!全3区画。お求めやすい価格帯。建築条件はございませんのでお好きな建築会社で建築できます。 |
| 特記事項 |
- |
| 備考 |
宅地造成渡し。
施設負担金50万円別途必要。
|
| エネルギー消費性能 |
- |
| 断熱性能 |
- |
| 目安光熱費 |
- |
| バス・トイレ |
- |
| キッチン |
- |
| 設備・サービス |
上水道、下水道、プロパンガス、電気、側溝 |
| その他 |
- |
| 条件等 |
- |
現況 |
更地 |
| 引渡し(可能時期/方法) |
即時/更地渡 |
物件番号 |
6985672883 |
| 情報公開日 |
2025年6月5日 |
次回更新予定日 |
2026年5月17日 |
| ケータイ用バーコード |
- スマートフォンでこの物件を見る
- スマートフォンからもこの物件をご覧になれます。
|
※「-」と表示されている項目については、情報提供会社にご確認ください。
| 周辺施設 |
KAJIMARTみなみ店 |
| 距離 |
716m |
| 周辺施設 |
ファミリーマート本津幡駅前店 |
| 距離 |
396m |
ここから簡単にお問い合わせをすることができます。
(SSLでの暗号化での送信を希望されるお客さまは
こちら
よりお問い合わせください)
お問い合わせを行う前に
「個人情報の取り扱いについて」を必ずお読みください。
「個人情報の取り扱いについて」に同意いただいた場合は「上記にご同意の上 確認画面へ進む」のボタンをクリックしてください。
個人情報の取り扱いについて
皆さまが送付された個人情報はアットホーム(株)のサーバを経由し、お問い合わせ先の不動産会社にメールまたはFAXにて転送されるためアットホーム(株)にも保管されます。アットホーム(株)で保管された個人情報の取り扱いについては、【こちら】をご覧ください。
また、本画面でご記入いただいた個人情報は、お問い合わせ先の不動産会社でも保管します。 お問い合わせ先の不動産会社が保管する個人情報の取り扱いについては、不動産会社に直接お問い合わせください。
石川県知事免許(3)第4136号 |
|---|
- 交通:
- 北陸鉄道石川線/野々市工大前駅 徒歩15分
- 石川県野々市市白山町10番23号 木野ビル108
- TEL:
- 076-208-5046
- FAX:
- 076-259-1433
- 所属団体:
- (公社)全日本不動産協会会員北陸不動産公正取引協議会加盟
取引態様:専任媒介  - 40406664
|
- スマートフォンで
この不動産会社を見る

|
- 提携サイト等より掲載されている物件情報につきましては、不動産会社詳細情報にリンクされていないものがあります。
- 物件に関するお問合せは、物件詳細ページの「情報提供会社」に表示されている不動産会社へ直接お願いいたします。
- 間取図は、現況を優先させていただきます。
- 映像は物件の一部を撮影したものです。物件の契約にあたっての最終判断はご自身の判断に基づいて行ってください。
- 仲介手数料について

アットホームは物件情報の適正化に努めております。
内容に誤りがある場合にはこちらへご連絡ください。