京都府亀岡市北古世町1丁目(亀岡駅)の土地:物件詳細
交通 所在地 |
駅徒歩 |
価格 坪単価 |
土地面積(坪数) 私道負担面積 |
引渡方法 最適用途 |
建ぺい率 容積率 |
|
JR山陰本線/亀岡
京都府亀岡市北古世町1丁目
|
11分
|
2,600万円
40.04万円
|
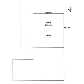
214.67m²
(64.93坪)
有 32.00m²
|
現況渡
住宅用地
|
60%
200%
|
|
地形図等
|
外観
|
その他の画像
|
| 交通 | JR山陰本線 亀岡駅 徒歩11分 |
| 所在地 |
京都府亀岡市北古世町1丁目
|
| 物件種目 |
土地 |
| 価格 |
2,600万円 |
坪単価 |
40.04万円 |
| 借地期間・地代(月額) |
- |
権利金 |
- |
| 敷金または保証金 |
- / - |
維持費等 |
- |
| その他一時金 |
- |
|
|
| 土地面積 |
214.67m²(公簿) |
坪数 |
64.93坪 |
| 最適用途 |
住宅用地 |
私道負担面積 |
有 32.00m² |
| 土地権利 |
所有権 |
都市計画 |
市街化区域 |
| 用途地域 |
1種住居 |
地勢 |
平坦 |
| 建ぺい率 |
60% |
容積率 |
200% |
| 接道状況 |
東 4.0m 私道 位置指定有 接面15.6m
|
地目 |
宅地 |
| 国土法届出 |
- |
セットバック |
- |
| 特記事項 |
整形地 |
| 備考 |
法令等制限:法22条指定区域
□現状有姿公簿取引
□売主の契約不適合責任免責
□埋蔵文化財包蔵地
□境界が未確定の為、実測面積が増減する場合があり、
約4m位置指定道路及び隣地との境界は未確定です。
確定測量の予定はありません。位置指定道路として、
私道部分を含みます。亀岡市公衆用道路として32㎡
|
| エネルギー消費性能 |
- |
| 断熱性能 |
- |
| 目安光熱費 |
- |
| バス・トイレ |
- |
| キッチン |
- |
| 設備・サービス |
上水道、下水道、プロパンガス、電気、側溝 |
| その他 |
- |
| 条件等 |
- |
現況 |
建物有 |
| 引渡し(可能時期/方法) |
相談/現況渡 |
物件番号 |
6985943598 |
| 情報公開日 |
2025年5月7日 |
次回更新予定日 |
2025年12月19日 |
| ケータイ用バーコード |
- スマートフォンでこの物件を見る
- スマートフォンからもこの物件をご覧になれます。
|
※「-」と表示されている項目については、情報提供会社にご確認ください。
| 周辺施設 |
スギ薬局亀岡東店 |
| 距離 |
479m |
写真を見る |
| 周辺施設 |
イオン亀岡店 |
| 距離 |
507m |
写真を見る |
| 周辺施設 |
スーパーマツモト中央店 |
| 距離 |
619m |
写真を見る |
| 周辺施設 |
アミティ亀岡ショッピングセンター |
| 距離 |
723m |
写真を見る |
| 周辺施設 |
京都府立亀岡高校 |
| 距離 |
377m |
写真を見る |
| 周辺施設 |
亀岡市立亀岡中学校 |
| 距離 |
604m |
写真を見る |
| 周辺施設 |
亀岡市立亀岡小学校 |
| 距離 |
562m |
写真を見る |
ここから簡単にお問い合わせをすることができます。
(SSLでの暗号化での送信を希望されるお客さまは
こちら
よりお問い合わせください)
お問い合わせを行う前に
「個人情報の取り扱いについて」を必ずお読みください。
「個人情報の取り扱いについて」に同意いただいた場合は「上記にご同意の上 確認画面へ進む」のボタンをクリックしてください。
個人情報の取り扱いについて
皆さまが送付された個人情報はアットホーム(株)のサーバを経由し、お問い合わせ先の不動産会社にメールまたはFAXにて転送されるためアットホーム(株)にも保管されます。アットホーム(株)で保管された個人情報の取り扱いについては、【こちら】をご覧ください。
また、本画面でご記入いただいた個人情報は、お問い合わせ先の不動産会社でも保管します。 お問い合わせ先の不動産会社が保管する個人情報の取り扱いについては、不動産会社に直接お問い合わせください。
京都府知事免許(3)第13538号 |
|---|
- 交通:
- JR山陰本線/亀岡駅 徒歩2分
- 京都府亀岡市追分町谷筋37-33
- TEL:
- 0771-29-5500
- FAX:
- 0771-29-5510
- 所属団体:
- (公社)全日本不動産協会会員(公社)近畿地区不動産公正取引協議会加盟
取引態様:専任媒介  - 50026683
|
- スマートフォンで
この不動産会社を見る

|
- 提携サイト等より掲載されている物件情報につきましては、不動産会社詳細情報にリンクされていないものがあります。
- 物件に関するお問合せは、物件詳細ページの「情報提供会社」に表示されている不動産会社へ直接お願いいたします。
- 間取図は、現況を優先させていただきます。
- 映像は物件の一部を撮影したものです。物件の契約にあたっての最終判断はご自身の判断に基づいて行ってください。
- 仲介手数料について

アットホームは物件情報の適正化に努めております。
内容に誤りがある場合にはこちらへご連絡ください。