新潟県新潟市西区五十嵐中島5丁目(内野西が丘駅)の土地:物件詳細
交通 所在地 |
駅徒歩 |
価格 坪単価 |
土地面積(坪数) 私道負担面積 |
引渡方法 最適用途 |
建ぺい率 容積率 |
|
JR越後線/内野西が丘
新潟県新潟市西区五十嵐中島5丁目
|
14分
|
1,180万円
11.83万円
|
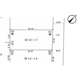
330.00m²
(99.82坪)
なし
|
更地渡
住宅用地
|
60%
200%
|
|
地形図等
|
|
その他の画像
|
| 交通 | JR越後線 内野西が丘駅 徒歩14分 |
|---|
| その他の交通 | 【バス】 新潟交通/西新町 停歩2分 |
| 所在地 |
新潟県新潟市西区五十嵐中島5丁目
|
| 物件種目 |
土地 |
| 価格 |
1,180万円 |
坪単価 |
11.83万円 |
| 借地期間・地代(月額) |
- |
権利金 |
- |
| 敷金または保証金 |
- / - |
維持費等 |
- |
| その他一時金 |
- |
|
|
| 土地面積 |
330.00m²(公簿) |
坪数 |
99.82坪 |
| 最適用途 |
住宅用地 |
私道負担面積 |
なし |
| 土地権利 |
所有権 |
都市計画 |
市街化区域 |
| 用途地域 |
1種中高、2種中高 |
地勢 |
平坦 |
| 建ぺい率 |
60% |
容積率 |
200% |
| 接道状況 |
東 6.0m
|
地目 |
雑種地 |
| 国土法届出 |
- |
セットバック |
- |
| アピールポイント |
●生活利便性の高さ
ホームセンターコメリ・原信・第四北越銀行が徒歩1分以内。日々の買い物や銀行手続きが驚くほどスムーズで、生活のストレスを大きく軽減します。
●100坪のゆとりある敷地
広さを活かし、店舗併用住宅や事務所併設住宅など、多様な活用が可能。駐車場を複数台しっかり確保でき、来客の多い業態にも対応できます。
●住まいとしての快適性
家庭菜園、子どもの外遊びスペース、アウトドア・ガレージなど、広さを楽しめる生活が実現。建物配置の自由度も高く、理想の住まいをつくりやすい土地です。
●周辺環境の良さ
落ち着いた住宅地で、暮らしやすさと利便性が両立。生活の便利さを求めつつ、広い敷地でゆとりある暮らしを望む方に適した物件です。 |
| 特記事項 |
整形地 |
| 備考 |
敷地内に水道の引き込みはございませんが、ご購入後に買主様にて引き込み工事をしていただくことで、ご利用いただけます。
建築基準法第22条規制あり。道路斜線制限1/1.25。隣地斜線制限20m+1/1.25。日影規制規制あり。
|
| エネルギー消費性能 |
- |
| 断熱性能 |
- |
| 目安光熱費 |
- |
| バス・トイレ |
- |
| キッチン |
- |
| 設備・サービス |
下水道、都市ガス、電気 |
| その他 |
- |
| 条件等 |
- |
現況 |
更地 |
| 引渡し(可能時期/方法) |
即時/更地渡 |
物件番号 |
6987156945 |
| 仲介手数料 |
売買代金の3.3%+6.6万円 |
|
|
| 情報公開日 |
2025年11月18日 |
次回更新予定日 |
2025年12月21日 |
| ケータイ用バーコード |
- スマートフォンでこの物件を見る
- スマートフォンからもこの物件をご覧になれます。
|
※「-」と表示されている項目については、情報提供会社にご確認ください。
| 周辺施設 |
セブンイレブン新潟五十嵐中島5丁目店 |
| 距離 |
278m |
写真を見る |
| 周辺施設 |
コメリハード&グリーン西内野店 |
| 距離 |
189m |
写真を見る |
| 周辺施設 |
第四北越銀行 |
| 距離 |
175m |
写真を見る |
ここから簡単にお問い合わせをすることができます。
(SSLでの暗号化での送信を希望されるお客さまは
こちら
よりお問い合わせください)
お問い合わせを行う前に
「個人情報の取り扱いについて」を必ずお読みください。
「個人情報の取り扱いについて」に同意いただいた場合は「上記にご同意の上 確認画面へ進む」のボタンをクリックしてください。
個人情報の取り扱いについて
皆さまが送付された個人情報はアットホーム(株)のサーバを経由し、お問い合わせ先の不動産会社にメールまたはFAXにて転送されるためアットホーム(株)にも保管されます。アットホーム(株)で保管された個人情報の取り扱いについては、【こちら】をご覧ください。
また、本画面でご記入いただいた個人情報は、お問い合わせ先の不動産会社でも保管します。 お問い合わせ先の不動産会社が保管する個人情報の取り扱いについては、不動産会社に直接お問い合わせください。
新潟県知事免許(1)第5801号 |
|---|
- 交通:
- JR信越本線/越後石山駅 徒歩17分 【バス】15分 江南二丁目 停歩4分
- 新潟県新潟市東区江南3丁目1-9 江南事務所203
- TEL:
- 025-282-7428
- 所属団体:
- (公社)全日本不動産協会会員(公社)首都圏不動産公正取引協議会加盟
取引態様:一般媒介  - 00281354
|
- スマートフォンで
この不動産会社を見る

|
- 提携サイト等より掲載されている物件情報につきましては、不動産会社詳細情報にリンクされていないものがあります。
- 物件に関するお問合せは、物件詳細ページの「情報提供会社」に表示されている不動産会社へ直接お願いいたします。
- 間取図は、現況を優先させていただきます。
- 映像は物件の一部を撮影したものです。物件の契約にあたっての最終判断はご自身の判断に基づいて行ってください。
- 仲介手数料について

アットホームは物件情報の適正化に努めております。
内容に誤りがある場合にはこちらへご連絡ください。