埼玉県さいたま市桜区栄和1丁目(南与野駅)の土地:物件詳細
交通 所在地 |
駅徒歩 |
価格 坪単価 |
土地面積(坪数) 私道負担面積 |
引渡方法 最適用途 |
建ぺい率 容積率 |
JR埼京線/南与野
埼玉県さいたま市桜区栄和1丁目
|
27分
|
1,680万円
47.21万円
|
117.64m²
(35.58坪)
なし
|
現況渡
住宅用地
|
60%
200%
|
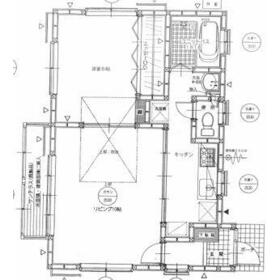
地形図等
|
|
その他の画像
|
交通 | JR埼京線 南与野駅 徒歩27分 |
---|
その他の交通 | JR武蔵野線 西浦和駅 徒歩32分 |
所在地 |
埼玉県さいたま市桜区栄和1丁目
|
物件種目 |
土地 |
価格 |
1,680万円 |
坪単価 |
47.21万円 |
借地期間・地代(月額) |
- |
権利金 |
- |
敷金または保証金 |
- / - |
維持費等 |
- |
その他一時金 |
- |
|
|
土地面積 |
117.64m²(公簿) |
坪数 |
35.58坪 |
最適用途 |
住宅用地 |
私道負担面積 |
なし |
土地権利 |
所有権 |
都市計画 |
市街化区域 |
用途地域 |
1種住居 |
地勢 |
平坦 |
建ぺい率 |
60% |
容積率 |
200% |
接道状況 |
東 4.0m 公道 接面3.0m
|
地目 |
宅地 |
国土法届出 |
- |
セットバック |
- |
特記事項 |
- |
備考 |
-
|
エネルギー消費性能 |
- |
断熱性能 |
- |
目安光熱費 |
- |
バス・トイレ |
- |
キッチン |
- |
設備・サービス |
- |
その他 |
- |
条件等 |
- |
現況 |
建物有 |
引渡し(可能時期/方法) |
相談/現況渡 |
物件番号 |
6987856259 |
仲介手数料 |
売買代金の3%+6万円 |
|
|
情報公開日 |
2025年10月2日 |
次回更新予定日 |
2025年10月16日 |
ケータイ用バーコード |
- スマートフォンでこの物件を見る
- スマートフォンからもこの物件をご覧になれます。
|
※「-」と表示されている項目については、情報提供会社にご確認ください。
周辺施設 |
グルメシティ浦和道場店 |
距離 |
405m |
写真を見る |
周辺施設 |
TAIRAYA浦和栄和店 |
距離 |
686m |
写真を見る |
周辺施設 |
ローソンさいたま桜道場一丁目店 |
距離 |
376m |
写真を見る |
周辺施設 |
ドラッグセイムス道場店 |
距離 |
216m |
写真を見る |
周辺施設 |
ウエルシアさいたま栄和店 |
距離 |
467m |
写真を見る |
周辺施設 |
さいたま市立栄和小学校 |
距離 |
386m |
写真を見る |
周辺施設 |
認定こども園さかわ幼稚園 |
距離 |
267m |
周辺施設 |
浦和栄和郵便局 |
距離 |
528m |
写真を見る |
ここから簡単にお問い合わせをすることができます。
(SSLでの暗号化での送信を希望されるお客さまは
こちら
よりお問い合わせください)
お問い合わせを行う前に
「個人情報の取り扱いについて」を必ずお読みください。
「個人情報の取り扱いについて」に同意いただいた場合は「上記にご同意の上 確認画面へ進む」のボタンをクリックしてください。
個人情報の取り扱いについて
皆さまが送付された個人情報はアットホーム(株)のサーバを経由し、お問い合わせ先の不動産会社にメールまたはFAXにて転送されるためアットホーム(株)にも保管されます。アットホーム(株)で保管された個人情報の取り扱いについては、【こちら】をご覧ください。
また、本画面でご記入いただいた個人情報は、お問い合わせ先の不動産会社でも保管します。 お問い合わせ先の不動産会社が保管する個人情報の取り扱いについては、不動産会社に直接お問い合わせください。
埼玉県知事免許(2)第23060号 |
---|
- 交通:
- JR京浜東北線/蕨駅 徒歩20分
- 埼玉県川口市芝1丁目14-3
- TEL:
- 048-267-2148
- FAX:
- 048-267-2333
- 所属団体:
- (公社)埼玉県宅地建物取引業協会会員不動産公正取引協議会加盟
取引態様:専任媒介  - 00018689
|
- スマートフォンで
この不動産会社を見る

|
- 提携サイト等より掲載されている物件情報につきましては、不動産会社詳細情報にリンクされていないものがあります。
- 物件に関するお問合せは、物件詳細ページの「情報提供会社」に表示されている不動産会社へ直接お願いいたします。
- 間取図は、現況を優先させていただきます。
- 映像は物件の一部を撮影したものです。物件の契約にあたっての最終判断はご自身の判断に基づいて行ってください。
- 仲介手数料について

アットホームは物件情報の適正化に努めております。
内容に誤りがある場合にはこちらへご連絡ください。