東京都墨田区東向島6丁目(東向島駅)の土地:物件詳細
交通 所在地 |
駅徒歩 |
価格 坪単価 |
土地面積(坪数) 私道負担面積 |
引渡方法 最適用途 |
建ぺい率 容積率 |
|
東武伊勢崎線/東向島
東京都墨田区東向島6丁目
|
7分
|
4,150万円
281.83万円
|
48.68m²
(14.72坪)
-
|
更地渡
住宅用地
|
90%
289%
|
|
地形図等
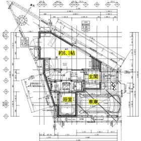
参考プラン 1階部分 建物参考価格 2130万円(税込)延床面積:94.05㎡
|
その他
参考プラン 2階部分 建物参考価格 2130万円(税込)延床面積:94.05㎡
|
<
その他の画像
>
|
| 交通 | 東武伊勢崎線 東向島駅 徒歩7分 |
|---|
| その他の交通 | 京成押上線 八広駅 徒歩9分 京成押上線 京成曳舟駅 徒歩14分 |
| 所在地 |
東京都墨田区東向島6丁目
|
| 物件種目 |
土地 |
| 価格 |
4,150万円 |
坪単価 |
281.83万円 |
| 借地期間・地代(月額) |
- |
権利金 |
- |
| 敷金または保証金 |
- / - |
維持費等 |
- |
| その他一時金 |
- |
|
|
| 土地面積 |
48.68m² |
坪数 |
14.72坪 |
| 最適用途 |
住宅用地 |
私道負担面積 |
- |
| 土地権利 |
所有権 |
都市計画 |
市街化区域 |
| 用途地域 |
準工業 |
地勢 |
平坦 |
| 建ぺい率 |
90% |
容積率 |
289% |
| 接道状況 |
北東 5.6m 公道 接面4.6m
|
地目 |
宅地 |
| 国土法届出 |
- |
セットバック |
- |
| アピールポイント |
ショールームの御用意御座います。
ご希望の間取り・カラーセレクト・住宅性能はお早めにお声かけください。
建物参考プランがあります。
3階建て参考価格 2130万円(税込)
参考プラン延床面積 94.05m2
4LDK※納戸仕様になる場合もあり
設計士とご希望の間取りを作成頂きます♪
【物件担当直通 080-8032-5569 齊藤まで】
上記にお問合せ頂きますとスムーズです。 |
| 特記事項 |
- |
| 備考 |
区画番号:1
|
| エネルギー消費性能 |
- |
| 断熱性能 |
- |
| 目安光熱費 |
- |
| バス・トイレ |
- |
| キッチン |
- |
| 設備・サービス |
上水道、下水道、都市ガス |
| その他 |
- |
| 条件等 |
建築条件付き |
現況 |
更地 |
| 引渡し(可能時期/方法) |
相談/更地渡 |
物件番号 |
6988395541 |
| 情報公開日 |
2025年11月14日 |
次回更新予定日 |
2025年12月14日 |
| ケータイ用バーコード |
- スマートフォンでこの物件を見る
- スマートフォンからもこの物件をご覧になれます。
|
※「-」と表示されている項目については、情報提供会社にご確認ください。
| 周辺施設 |
まいばすけっと東向島駅北店 |
| 距離 |
421m |
写真を見る |
| 周辺施設 |
Olympic八広店 |
| 距離 |
648m |
写真を見る |
| 周辺施設 |
ミニストップ東向島5丁目店 |
| 距離 |
308m |
写真を見る |
| 周辺施設 |
セブンイレブン墨田四ツ木橋南店 |
| 距離 |
267m |
写真を見る |
| 周辺施設 |
ホームセンターコーナンドイト東向島店 |
| 距離 |
242m |
写真を見る |
| 周辺施設 |
墨田区立吾嬬第二中学校 |
| 距離 |
1028m |
写真を見る |
| 周辺施設 |
墨田区立八広小学校 |
| 距離 |
411m |
写真を見る |
| 周辺施設 |
墨田区立八広幼稚園 |
| 距離 |
275m |
写真を見る |
ここから簡単にお問い合わせをすることができます。
(SSLでの暗号化での送信を希望されるお客さまは
こちら
よりお問い合わせください)
お問い合わせを行う前に
「個人情報の取り扱いについて」を必ずお読みください。
「個人情報の取り扱いについて」に同意いただいた場合は「上記にご同意の上 確認画面へ進む」のボタンをクリックしてください。
個人情報の取り扱いについて
皆さまが送付された個人情報はアットホーム(株)のサーバを経由し、お問い合わせ先の不動産会社にメールまたはFAXにて転送されるためアットホーム(株)にも保管されます。アットホーム(株)で保管された個人情報の取り扱いについては、【こちら】をご覧ください。
また、本画面でご記入いただいた個人情報は、お問い合わせ先の不動産会社でも保管します。 お問い合わせ先の不動産会社が保管する個人情報の取り扱いについては、不動産会社に直接お問い合わせください。
東京都知事免許(2)第103124号 |
|---|
- 交通:
- JR総武線/亀戸駅 徒歩3分
- 東京都江東区亀戸6丁目37-4 亀戸コーポ201
- TEL:
- 03-5626-2097
- 所属団体:
- (公社)全日本不動産協会会員(公社)首都圏不動産公正取引協議会加盟
取引態様:媒介  - 00281280
|
- スマートフォンで
この不動産会社を見る

|
- 提携サイト等より掲載されている物件情報につきましては、不動産会社詳細情報にリンクされていないものがあります。
- 物件に関するお問合せは、物件詳細ページの「情報提供会社」に表示されている不動産会社へ直接お願いいたします。
- 間取図は、現況を優先させていただきます。
- 映像は物件の一部を撮影したものです。物件の契約にあたっての最終判断はご自身の判断に基づいて行ってください。
- 仲介手数料について

アットホームは物件情報の適正化に努めております。
内容に誤りがある場合にはこちらへご連絡ください。