不動産 賃貸 マンション等の住宅情報:埼玉住まい情報


福島県郡山市大槻町字下町の土地:物件詳細

  • 物件詳細
  • 情報の見方
  • 印刷用画面
交通
所在地
駅徒歩 価格
坪単価
土地面積(坪数)
私道負担面積
引渡方法
最適用途
建ぺい率
容積率

【バス】大槻上町 停歩3分

福島県郡山市大槻町字下町


1,380万円

27.15万円

168.08m² (50.84坪)

現況渡

住宅用地

60%

200%

おすすめコメント

建築条件付きの開発分譲地4区画。大槻行政センターすぐ近く。半径1km圏に小中学校・スーパー・コンビニ・ドラッグストア・金融機関等あり日常生活便利です。バス停徒歩およそ3分。

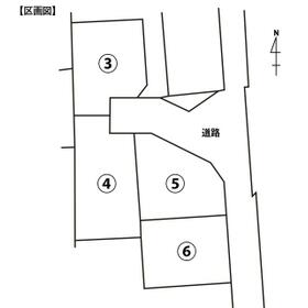
地形図等

地形図等

その他の画像
    • とりあえず保存
    • お問い合わせ
    交通

    【バス】 大槻上町 停歩3分

    所在地 福島県郡山市大槻町字下町
    物件種目 土地
    価格 1,380万円 坪単価 27.15万円
    借地期間・地代(月額) 権利金
    敷金または保証金 - / - 維持費等
    その他一時金    
    土地面積 168.08m²(実測) 坪数 50.84坪
    最適用途 住宅用地 私道負担面積
    土地権利 所有権 都市計画 市街化区域
    用途地域 1種中高 地勢 平坦
    建ぺい率 60% 容積率 200%
    接道状況 東 5.0m 公道 地目 宅地
    国土法届出 セットバック
    アピールポイント ご購入後3ヶ月以内にリンクワークス(株)との間で建物工事請負契約を締結していただきます。間取り・仕様等はご相談に応じます。
    特記事項 整形地
    備考
    区画番号:6
    エネルギー消費性能
    断熱性能
    目安光熱費
    バス・トイレ
    キッチン
    設備・サービス 上水道、下水道、プロパンガス、電気、側溝
    その他
    条件等 建築条件付き 現況 更地
    引渡し(可能時期/方法) 即時/現況渡 物件番号 6988406357
    仲介手数料 52.14万円    
    情報公開日 2025年11月15日 次回更新予定日 2025年12月15日
    ケータイ用バーコード

    QRコード

    スマートフォンでこの物件を見る
    スマートフォンからもこの物件をご覧になれます。
    ※「-」と表示されている項目については、情報提供会社にご確認ください。

    この物件の周辺情報

    周辺施設 ブイチェーン大槻店
    距離 1134m
    周辺施設 ヨークベニマルコスモス通り店
    距離 1100m
    周辺施設 ファミリーマート大槻三森街道店
    距離 135m
    周辺施設 セブンイレブン郡山大槻御前南店
    距離 707m
    周辺施設 ドラッグセイムス大槻店
    距離 1229m
    周辺施設 郡山市立大槻中学校
    距離 1023m
    周辺施設 郡山市立大槻小学校
    距離 645m
    周辺施設 郡山信用金庫大槻支店
    距離 287m

    クイックお問い合わせ

    ここから簡単にお問い合わせをすることができます。
    (SSLでの暗号化での送信を希望されるお客さまは こちら よりお問い合わせください)

    お問い合わせ内容(必須)
    お名前(必須) 姓  名 
    メールアドレス(必須)
    ※携帯電話のメールアドレスをご入力される方はこちらをご確認ください
    電話番号(必須)
    - -

    ※入力いただいた電話番号へSMSまたは音声でパスワードをご連絡します。

    携帯電話の番号をご入力の方へ

    携帯電話の番号をご入力の方へ
    確認画面にて送信ボタンをクリックするとSMSが携帯電話に届きます。
    そのSMSに記載のパスワード(認証番号)を入力し、お問い合わせを完了してください。
    尚、SMSの送信者番号は 0005 202 760 となります。
    これはアットホームの固定番号です。

    備考欄 希望条件、物件案内希望日、質問などがございましたらご記入ください。
    お問い合わせを行う前に「個人情報の取り扱いについて」を必ずお読みください。
    「個人情報の取り扱いについて」に同意いただいた場合は「上記にご同意の上 確認画面へ進む」のボタンをクリックしてください。

    個人情報の取り扱いについて

    皆さまが送付された個人情報はアットホーム(株)のサーバを経由し、お問い合わせ先の不動産会社にメールまたはFAXにて転送されるためアットホーム(株)にも保管されます。アットホーム(株)で保管された個人情報の取り扱いについては、【こちら】をご覧ください。
    また、本画面でご記入いただいた個人情報は、お問い合わせ先の不動産会社でも保管します。 お問い合わせ先の不動産会社が保管する個人情報の取り扱いについては、不動産会社に直接お問い合わせください。

    情報提供会社

    情報提供会社

    (株)ナカノコーポレーション

    福島県知事免許(8)第1528号

    交通:
    東北新幹線/郡山駅 【バス】25分 御前 停歩2分
    福島県郡山市御前南5丁目18 
    TEL:
    024-951-3991
    FAX:
    024-951-3669
    所属団体:
    (公社)福島県宅地建物取引業協会会員
    東北地区不動産公正取引協議会加盟

    取引態様:一般媒介

    • 会社情報
    • 20002442
    スマートフォンで
    この不動産会社を見る
    QRコード
    • とりあえず保存
    • お問い合わせ
    • 提携サイト等より掲載されている物件情報につきましては、不動産会社詳細情報にリンクされていないものがあります。
    • 物件に関するお問合せは、物件詳細ページの「情報提供会社」に表示されている不動産会社へ直接お願いいたします。
    • 間取図は、現況を優先させていただきます。
    • 映像は物件の一部を撮影したものです。物件の契約にあたっての最終判断はご自身の判断に基づいて行ってください。
    • 仲介手数料について仲介手数料

    アットホームは物件情報の適正化に努めております。 内容に誤りがある場合にはこちらへご連絡ください。

    【埼玉住まい情報】では、日本全国の物件から賃貸マンションや賃貸アパート・賃貸一戸建て等の賃貸住宅情報、新築マンション・分譲マンションや中古マンション等の売買マンション情報、新築一戸建てや中古一戸建てなどの戸建住宅、 土地など、総合的な不動産住宅情報検索サービスを提供致します。
    【埼玉住まい情報】から、選りすぐりの不動産物件を探してみましょう。

    【免責事項】
    このコーナーの運営はアットホーム株式会社(https://www.athome.co.jp/)が行っています。
    このコーナーに掲載している物件情報は、「アットホーム不動産情報ネットワーク」に加盟する不動産会社等(情報提供元)から提供されています。信頼性の高い情報提供が行えるよう、最大限の努力をしておりますが、その内容を保証するものではありません。 利用者のみなさまと各情報提供元との取引に起因する損害および情報が掲載されたことに起因する損害等については、株式会社イーシティ埼玉、およびアットホームは一切責任を負いません。
    各物件情報の内容や画像等はすべて現況を優先させていただきます。
    お取引等(お取引の準備、資金調達等を含みます)の際には、内容や契約条件等について、各情報提供元より十分な説明を受け、ご自身でご確認の上、判断してください。
    このコーナーへの物件情報のご掲載、その他不動産業務ソリューション等についての不動産会社様のお問合せはこちらからお願いいたします。

    物件画像: