宮城県仙台市泉区市名坂字野蔵(泉中央駅)の土地:物件詳細
交通 所在地 |
駅徒歩 |
価格 坪単価 |
土地面積(坪数) 私道負担面積 |
引渡方法 最適用途 |
建ぺい率 容積率 |
|
仙台市南北線/泉中央
宮城県仙台市泉区市名坂字野蔵
|
29分
|
3,880万円
35.01万円
|
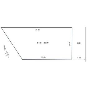
366.41m²
(110.83坪)
-
|
現況渡
事務所用地
|
60%
200%
|
|
地形図等
|
|
その他の画像
|
| 交通 | 仙台市南北線 泉中央駅 徒歩29分 |
|---|
| その他の交通 | 仙台市南北線 八乙女駅 徒歩29分 |
| 所在地 |
宮城県仙台市泉区市名坂字野蔵
|
| 物件種目 |
土地 |
| 価格 |
3,880万円 |
坪単価 |
35.01万円 |
| 借地期間・地代(月額) |
- |
権利金 |
- |
| 敷金または保証金 |
- / - |
維持費等 |
- |
| その他一時金 |
- |
|
|
| 土地面積 |
366.41m²(公簿) |
坪数 |
110.83坪 |
| 最適用途 |
事務所用地 |
私道負担面積 |
- |
| 土地権利 |
所有権 |
都市計画 |
市街化区域 |
| 用途地域 |
2種住居 |
地勢 |
平坦 |
| 建ぺい率 |
60% |
容積率 |
200% |
| 接道状況 |
東 6.0m 公道 接面14.0m
|
地目 |
宅地 |
| 国土法届出 |
- |
セットバック |
- |
| 特記事項 |
- |
| 備考 |
-
|
| エネルギー消費性能 |
- |
| 断熱性能 |
- |
| 目安光熱費 |
- |
| バス・トイレ |
- |
| キッチン |
- |
| 設備・サービス |
上水道、下水道、都市ガス、電気 |
| その他 |
- |
| 条件等 |
建築条件付き |
現況 |
更地 |
| 引渡し(可能時期/方法) |
即時/現況渡 |
物件番号 |
6989305890 |
| 情報公開日 |
2026年1月31日 |
次回更新予定日 |
2026年3月24日 |
| ケータイ用バーコード |
- スマートフォンでこの物件を見る
- スマートフォンからもこの物件をご覧になれます。
|
※「-」と表示されている項目については、情報提供会社にご確認ください。
| 周辺施設 |
仙台市立七北田中学校 |
| 距離 |
1820m |
写真を見る |
| 周辺施設 |
仙台市立市名坂小学校 |
| 距離 |
1296m |
写真を見る |
| 周辺施設 |
一般財団法人宮城県成人病予防協会附属仙台循環器病センター |
| 距離 |
2463m |
| 周辺施設 |
七十七銀行泉支店 |
| 距離 |
1447m |
写真を見る |
ここから簡単にお問い合わせをすることができます。
(SSLでの暗号化での送信を希望されるお客さまは
こちら
よりお問い合わせください)
お問い合わせを行う前に
「個人情報の取り扱いについて」を必ずお読みください。
「個人情報の取り扱いについて」に同意いただいた場合は「上記にご同意の上 確認画面へ進む」のボタンをクリックしてください。
個人情報の取り扱いについて
皆さまが送付された個人情報はアットホーム(株)のサーバを経由し、お問い合わせ先の不動産会社にメールまたはFAXにて転送されるためアットホーム(株)にも保管されます。アットホーム(株)で保管された個人情報の取り扱いについては、【こちら】をご覧ください。
また、本画面でご記入いただいた個人情報は、お問い合わせ先の不動産会社でも保管します。 お問い合わせ先の不動産会社が保管する個人情報の取り扱いについては、不動産会社に直接お問い合わせください。
宮城県知事免許(4)第5558号 |
|---|
- 交通:
- 仙台市南北線/泉中央駅 徒歩13分
- 宮城県仙台市泉区高玉町2-25
- TEL:
- 022-371-7477
- 所属団体:
- (公社)宮城県宅地建物取引業協会会員東北地区不動産公正取引協議会加盟
取引態様:一般媒介  - 20006811
|
- スマートフォンで
この不動産会社を見る

|
- 提携サイト等より掲載されている物件情報につきましては、不動産会社詳細情報にリンクされていないものがあります。
- 物件に関するお問合せは、物件詳細ページの「情報提供会社」に表示されている不動産会社へ直接お願いいたします。
- 間取図は、現況を優先させていただきます。
- 映像は物件の一部を撮影したものです。物件の契約にあたっての最終判断はご自身の判断に基づいて行ってください。
- 仲介手数料について

アットホームは物件情報の適正化に努めております。
内容に誤りがある場合にはこちらへご連絡ください。