千葉県柏市布施新町4丁目(我孫子駅)の土地:物件詳細
交通 所在地 |
駅徒歩 |
価格 坪単価 |
土地面積(坪数) 私道負担面積 |
引渡方法 最適用途 |
建ぺい率 容積率 |
|
JR常磐線/我孫子
千葉県柏市布施新町4丁目
|
31分
|
2,250万円
38.49万円
|
193.28m²
(58.46坪)
-
|
現況渡
住宅用地
|
50%
100%
|
|
地形図等
|
|
その他の画像
|
| 交通 | JR常磐線 我孫子駅 徒歩31分 |
|---|
| その他の交通 | JR常磐線 我孫子駅 【バス】 13分 三井団地入口 停歩6分 |
| 所在地 |
千葉県柏市布施新町4丁目
|
| 物件種目 |
土地 |
| 価格 |
2,250万円 |
坪単価 |
38.49万円 |
| 借地期間・地代(月額) |
- |
権利金 |
- |
| 敷金または保証金 |
- / - |
維持費等 |
- |
| その他一時金 |
- |
|
|
| 土地面積 |
193.28m²(公簿) |
坪数 |
58.46坪 |
| 最適用途 |
住宅用地 |
私道負担面積 |
- |
| 土地権利 |
所有権 |
都市計画 |
市街化区域 |
| 用途地域 |
1種低層 |
地勢 |
平坦 |
| 建ぺい率 |
50% |
容積率 |
100% |
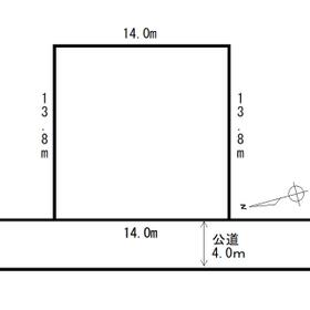
| 接道状況 |
西 4.0m 公道 接面14.0m
|
地目 |
宅地 |
| 国土法届出 |
- |
セットバック |
- |
| 特記事項 |
区画整理地内、整形地 |
| 備考 |
建物有 木造瓦・亜鉛メッキ鋼板葺2階建 1階55.48㎡ 2階40.57㎡ 昭和48年9月築
|
| エネルギー消費性能 |
- |
| 断熱性能 |
- |
| 目安光熱費 |
- |
| バス・トイレ |
- |
| キッチン |
- |
| 設備・サービス |
上水道、下水道、都市ガス |
| その他 |
- |
| 条件等 |
- |
現況 |
建物有 |
| 引渡し(可能時期/方法) |
相談/現況渡 |
物件番号 |
6989405433 |
| 情報公開日 |
2026年2月20日 |
次回更新予定日 |
2026年3月6日 |
| ケータイ用バーコード |
- スマートフォンでこの物件を見る
- スマートフォンからもこの物件をご覧になれます。
|
※「-」と表示されている項目については、情報提供会社にご確認ください。
| 周辺施設 |
我孫子ビレッジショッピングプラザ |
| 距離 |
925m |
| 周辺施設 |
わくわく広場我孫子つくし野店 |
| 距離 |
958m |
| 周辺施設 |
セブンイレブン柏布施弁天入口店 |
| 距離 |
1619m |
ここから簡単にお問い合わせをすることができます。
(SSLでの暗号化での送信を希望されるお客さまは
こちら
よりお問い合わせください)
お問い合わせを行う前に
「個人情報の取り扱いについて」を必ずお読みください。
「個人情報の取り扱いについて」に同意いただいた場合は「上記にご同意の上 確認画面へ進む」のボタンをクリックしてください。
個人情報の取り扱いについて
皆さまが送付された個人情報はアットホーム(株)のサーバを経由し、お問い合わせ先の不動産会社にメールまたはFAXにて転送されるためアットホーム(株)にも保管されます。アットホーム(株)で保管された個人情報の取り扱いについては、【こちら】をご覧ください。
また、本画面でご記入いただいた個人情報は、お問い合わせ先の不動産会社でも保管します。 お問い合わせ先の不動産会社が保管する個人情報の取り扱いについては、不動産会社に直接お問い合わせください。
千葉県知事免許(9)第10650号 |
|---|
- 交通:
- JR常磐線/柏駅 徒歩4分
- 千葉県柏市中央町2-29 CITY COURT K-Ⅰ 103
- TEL:
- 04-7164-8386
- FAX:
- 04-7164-8340
- 所属団体:
- (一社)千葉県宅地建物取引業協会会員(公社)首都圏不動産公正取引協議会加盟
取引態様:一般媒介  - 00530828
|
- スマートフォンで
この不動産会社を見る

|
- 提携サイト等より掲載されている物件情報につきましては、不動産会社詳細情報にリンクされていないものがあります。
- 物件に関するお問合せは、物件詳細ページの「情報提供会社」に表示されている不動産会社へ直接お願いいたします。
- 間取図は、現況を優先させていただきます。
- 映像は物件の一部を撮影したものです。物件の契約にあたっての最終判断はご自身の判断に基づいて行ってください。
- 仲介手数料について

アットホームは物件情報の適正化に努めております。
内容に誤りがある場合にはこちらへご連絡ください。