東京都台東区元浅草4丁目(田原町駅)の土地:物件詳細
交通 所在地 |
駅徒歩 |
価格 坪単価 |
土地面積(坪数) 私道負担面積 |
引渡方法 最適用途 |
建ぺい率 容積率 |
|
東京メトロ銀座線/田原町
東京都台東区元浅草4丁目
|
6分
|
9,600万円
647.28万円
|
49.03m²
(14.83坪)
-
|
更地渡
住宅用地
|
80%
500%
|
|
≪現地販売会≫【開催期間】2026年3月13日~6月13日 【時間】10:00~17:00 周辺には生活利便施設も整い、都心生活を快適に支える環境です。
|
|
地形図等
台東区 × 田原町6分 × 建築条件なし
|
その他
住宅と店舗が並ぶ落ち着いた街並み
|
<
その他の画像
>
|
| 交通 | 東京メトロ銀座線 田原町駅 徒歩6分 |
|---|
| その他の交通 | つくばエクスプレス 新御徒町駅 徒歩8分 東京メトロ銀座線 稲荷町駅 徒歩7分 |
| 所在地 |
東京都台東区元浅草4丁目
|
| 物件種目 |
土地 |
| 価格 |
9,600万円 |
坪単価 |
647.28万円 |
| 借地期間・地代(月額) |
- |
権利金 |
- |
| 敷金または保証金 |
- / - |
維持費等 |
- |
| その他一時金 |
- |
|
|
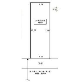
| 土地面積 |
49.03m²(公簿) |
坪数 |
14.83坪 |
| 最適用途 |
住宅用地 |
私道負担面積 |
- |
| 土地権利 |
所有権 |
都市計画 |
市街化区域 |
| 用途地域 |
商業地域 |
地勢 |
平坦 |
| 建ぺい率 |
80% |
容積率 |
500% |
| 接道状況 |
西 11.0m 公道 接面4.0m
|
地目 |
宅地 |
| 国土法届出 |
- |
セットバック |
- |
| アピールポイント |
[VECS]元浅草4丁目土地 PROJECT
浅草エリアも徒歩圏の利便性ある立地。建築条件がないため、お好みのハウスメーカー・工務店でこだわりの住まいづくりが可能です。住宅用地・事業用地として幅広くご検討いただけます。
♪現地内覧予約受付中です♪
【資料請求】は上記ボタンよりお進みください。
電話からは TEL0120-002-237 【通話料無料】
♪ご案内内容の目安になります。♪
□現地/物件見学(30分~)
□資金計画のご相談 (30分~)
□ご希望条件のご相談 (15分~) |
| 特記事項 |
- |
| 備考 |
-
|
| エネルギー消費性能 |
- |
| 断熱性能 |
- |
| 目安光熱費 |
- |
| バス・トイレ |
- |
| キッチン |
- |
| 設備・サービス |
上水道、下水道、都市ガス |
| その他 |
- |
| 条件等 |
- |
現況 |
更地 |
| 引渡し(可能時期/方法) |
相談/更地渡 |
物件番号 |
6989909317 |
| 情報公開日 |
2026年3月13日 |
次回更新予定日 |
2026年3月27日 |
| ケータイ用バーコード |
- スマートフォンでこの物件を見る
- スマートフォンからもこの物件をご覧になれます。
|
※「-」と表示されている項目については、情報提供会社にご確認ください。
ここから簡単にお問い合わせをすることができます。
(SSLでの暗号化での送信を希望されるお客さまは
こちら
よりお問い合わせください)
お問い合わせを行う前に
「個人情報の取り扱いについて」を必ずお読みください。
「個人情報の取り扱いについて」に同意いただいた場合は「上記にご同意の上 確認画面へ進む」のボタンをクリックしてください。
個人情報の取り扱いについて
皆さまが送付された個人情報はアットホーム(株)のサーバを経由し、お問い合わせ先の不動産会社にメールまたはFAXにて転送されるためアットホーム(株)にも保管されます。アットホーム(株)で保管された個人情報の取り扱いについては、【こちら】をご覧ください。
また、本画面でご記入いただいた個人情報は、お問い合わせ先の不動産会社でも保管します。 お問い合わせ先の不動産会社が保管する個人情報の取り扱いについては、不動産会社に直接お問い合わせください。
東京都知事免許(3)第92860号 |
|---|
- 交通:
- JR山手線/五反田駅 徒歩6分
- 東京都品川区西五反田7丁目7-2 エスティメゾン五反田201
- TEL:
- 0120-00-2237
- FAX:
- 03-6417-9616
- 所属団体:
- (公社)全日本不動産協会会員(公社)首都圏不動産公正取引協議会加盟
取引態様:媒介  - 00104656
|
- スマートフォンで
この不動産会社を見る

|
- 提携サイト等より掲載されている物件情報につきましては、不動産会社詳細情報にリンクされていないものがあります。
- 物件に関するお問合せは、物件詳細ページの「情報提供会社」に表示されている不動産会社へ直接お願いいたします。
- 間取図は、現況を優先させていただきます。
- 映像は物件の一部を撮影したものです。物件の契約にあたっての最終判断はご自身の判断に基づいて行ってください。
- 仲介手数料について

アットホームは物件情報の適正化に努めております。
内容に誤りがある場合にはこちらへご連絡ください。