愛知県一宮市大宮5丁目(尾張一宮駅)の貸駐車場:物件詳細
交通 所在地 |
駅徒歩 |
賃料 |
敷金/保証金 |
礼金 |
|
東海道本線/尾張一宮
愛知県一宮市大宮5丁目
|
22分
|
0.6万円
|
なし / 0.6万円
|
なし
|
|
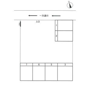
平面図
|
|
<
その他の画像
>
|
| 交通 | 東海道本線 尾張一宮駅 徒歩22分 |
|---|
| その他の交通 | 名鉄名古屋本線 名鉄一宮駅 徒歩22分 |
| 所在地 |
愛知県一宮市大宮5丁目
|
| 物件種目 |
賃貸駐車場 |
| 賃料 |
0.6万円 |
敷金 / 保証金 |
なし / 0.6万円 |
| 敷引 |
- |
管理費等 |
- |
| 礼金 |
なし |
保証金償却 |
- |
| その他一時金 |
- |
保険等 |
- |
| 維持費等 |
口座振替手数料:220円/月 |
| 駐車場名 |
317 パークランド大宮3 |
| 特記事項 |
24時間利用可 |
| 備考 |
管理形態/管理員の勤務形態:-/-
☆インボイス有
解約は1ヶ月前申し出
車庫証明発行手数料:3,000円+消費税
※個人契約の場合、口座振替の登録が必須です。
|
| エネルギー消費性能 |
- |
| 断熱性能 |
- |
| 目安光熱費 |
- |
| 契約期間 |
1年 |
引渡可能時期 |
即時 |
| 現況 |
空 |
更新料 |
- |
| 物件番号 |
6972480893 |
仲介手数料 |
0.6万円 |
| 情報公開日 |
2025年5月9日 |
次回更新予定日 |
2025年12月12日 |
| ケータイ用バーコード |
- スマートフォンでこの物件を見る
- スマートフォンからもこの物件をご覧になれます。
|
※「-」と表示されている項目については、情報提供会社にご確認ください。
ここから簡単にお問い合わせをすることができます。
(SSLでの暗号化での送信を希望されるお客さまは
こちら
よりお問い合わせください)
お問い合わせを行う前に
「個人情報の取り扱いについて」を必ずお読みください。
「個人情報の取り扱いについて」に同意いただいた場合は「上記にご同意の上 確認画面へ進む」のボタンをクリックしてください。
個人情報の取り扱いについて
皆さまが送付された個人情報はアットホーム(株)のサーバを経由し、お問い合わせ先の不動産会社にメールまたはFAXにて転送されるためアットホーム(株)にも保管されます。アットホーム(株)で保管された個人情報の取り扱いについては、【こちら】をご覧ください。
また、本画面でご記入いただいた個人情報は、お問い合わせ先の不動産会社でも保管します。 お問い合わせ先の不動産会社が保管する個人情報の取り扱いについては、不動産会社に直接お問い合わせください。
愛知県知事免許(16)第2914号 |
|---|
- 交通:
- 東海道本線/尾張一宮駅 【バス】 馬見塚 停歩1分
- 愛知県一宮市緑5丁目2-30
- TEL:
- 0586-77-7122
- FAX:
- 0586-76-7060
- 所属団体:
- (公社)愛知県宅地建物取引業協会会員東海不動産公正取引協議会加盟
取引態様:仲介  - 40402385
|
- スマートフォンで
この不動産会社を見る

|
- 提携サイト等より掲載されている物件情報につきましては、不動産会社詳細情報にリンクされていないものがあります。
- 物件に関するお問合せは、物件詳細ページの「情報提供会社」に表示されている不動産会社へ直接お願いいたします。
- 間取図は、現況を優先させていただきます。
- 映像は物件の一部を撮影したものです。物件の契約にあたっての最終判断はご自身の判断に基づいて行ってください。
- 仲介手数料について

アットホームは物件情報の適正化に努めております。
内容に誤りがある場合にはこちらへご連絡ください。