栃木県宇都宮市西川田南2丁目(西川田駅)の貸駐車場:物件詳細
交通 所在地 |
駅徒歩 |
賃料 |
敷金/保証金 |
礼金 |
|
東武宇都宮線/西川田
栃木県宇都宮市西川田南2丁目
|
16分
|
0.55万円
|
なし / なし
|
1ヶ月
|
|
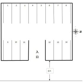
平面図
|
|
その他の画像
|
| 交通 | 東武宇都宮線 西川田駅 徒歩16分 |
| 所在地 |
栃木県宇都宮市西川田南2丁目
|
| 物件種目 |
賃貸駐車場 |
| 賃料 |
0.55万円 |
敷金 / 保証金 |
なし / なし |
| 敷引 |
- |
管理費等 |
なし |
| 礼金 |
1ヶ月 |
保証金償却 |
- |
| その他一時金 |
- |
保険等 |
- |
| 維持費等 |
- |
| 駐車場名 |
西川田駐車場 |
| 特記事項 |
- |
| 備考 |
管理形態/管理員の勤務形態:-/-
土地面積:329.00m²(公簿)
接道状況:東 6.0m
|
| エネルギー消費性能 |
- |
| 断熱性能 |
- |
| 目安光熱費 |
- |
| 契約期間 |
1年 |
引渡可能時期 |
相談 |
| 現況 |
空 |
更新料 |
なし |
| 物件番号 |
6982885907 |
仲介手数料 |
不要 |
| 情報公開日 |
2025年5月19日 |
次回更新予定日 |
2025年10月31日 |
| ケータイ用バーコード |
- スマートフォンでこの物件を見る
- スマートフォンからもこの物件をご覧になれます。
|
※「-」と表示されている項目については、情報提供会社にご確認ください。
| 周辺施設 |
ケンタッキーフライドチキン宇都宮西川田店 |
| 距離 |
680m |
| 周辺施設 |
栃木県総合運動公園陸上競技場 |
| 距離 |
867m |
| 周辺施設 |
とちのきファミリーランド |
| 距離 |
1181m |
| 周辺施設 |
栃木県総合運動公園水泳場 |
| 距離 |
1145m |
ここから簡単にお問い合わせをすることができます。
(SSLでの暗号化での送信を希望されるお客さまは
こちら
よりお問い合わせください)
お問い合わせを行う前に
「個人情報の取り扱いについて」を必ずお読みください。
「個人情報の取り扱いについて」に同意いただいた場合は「上記にご同意の上 確認画面へ進む」のボタンをクリックしてください。
個人情報の取り扱いについて
皆さまが送付された個人情報はアットホーム(株)のサーバを経由し、お問い合わせ先の不動産会社にメールまたはFAXにて転送されるためアットホーム(株)にも保管されます。アットホーム(株)で保管された個人情報の取り扱いについては、【こちら】をご覧ください。
また、本画面でご記入いただいた個人情報は、お問い合わせ先の不動産会社でも保管します。 お問い合わせ先の不動産会社が保管する個人情報の取り扱いについては、不動産会社に直接お問い合わせください。
栃木県知事免許(3)第4968号 |
|---|
- 交通:
- JR東北本線/宇都宮駅 徒歩25分
- 栃木県宇都宮市簗瀬町1260-3
- TEL:
- 028-689-8800
- FAX:
- 028-689-8811
- 所属団体:
- (公社)全日本不動産協会会員(公社)首都圏不動産公正取引協議会加盟
取引態様:貸主  - 00162255
|
- スマートフォンで
この不動産会社を見る

|
- 提携サイト等より掲載されている物件情報につきましては、不動産会社詳細情報にリンクされていないものがあります。
- 物件に関するお問合せは、物件詳細ページの「情報提供会社」に表示されている不動産会社へ直接お願いいたします。
- 間取図は、現況を優先させていただきます。
- 映像は物件の一部を撮影したものです。物件の契約にあたっての最終判断はご自身の判断に基づいて行ってください。
- 仲介手数料について

アットホームは物件情報の適正化に努めております。
内容に誤りがある場合にはこちらへご連絡ください。