熊本県熊本市南区南高江1丁目(西熊本駅)の貸駐車場:物件詳細
交通 所在地 |
駅徒歩 |
賃料 |
敷金/保証金 |
礼金 |
|
JR鹿児島本線/西熊本 [バス利用可] バス 南高江 停歩5分
熊本県熊本市南区南高江1丁目
|
13分
|
0.4万円
|
なし / なし
|
なし
|
|
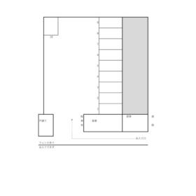
平面図
|
駐車場
砂利駐車場
|
その他の画像
|
| 交通 | JR鹿児島本線 西熊本駅 徒歩13分 [バス利用可] バス 南高江 停歩5分 |
|---|
| その他の交通 | 【バス】 合志町 停歩6分 |
| 所在地 |
熊本県熊本市南区南高江1丁目
|
| 物件種目 |
賃貸駐車場 |
| 賃料 |
0.4万円 |
敷金 / 保証金 |
なし / なし |
| 敷引 |
- |
管理費等 |
なし |
| 礼金 |
なし |
保証金償却 |
- |
| その他一時金 |
- |
保険等 |
- |
| 維持費等 |
- |
| アピールポイント |
平置き駐車場。砂利駐車場。国道3号線、旧3号線の両方へアクセスしやすいエリアです。今現在、6台募集中。 |
| 駐車場名 |
南高江1丁目月極駐車場 |
| 特記事項 |
保証人不要 |
| 備考 |
賃貸保証等:加入要(初回保証料(アルファー)総額の50%必要)
管理形態/管理員の勤務形態:-/-
平置き駐車場。砂利駐車場。国道3号線、旧3号線の両方へアクセスしやすいエリアです。
|
| エネルギー消費性能 |
- |
| 断熱性能 |
- |
| 目安光熱費 |
- |
| 契約期間 |
1年 |
引渡可能時期 |
即時 |
| 現況 |
空 |
更新料 |
なし |
| 物件番号 |
6983002312 |
仲介手数料 |
1.1ヶ月 |
| 情報公開日 |
2025年1月7日 |
次回更新予定日 |
2025年10月27日 |
| ケータイ用バーコード |
- スマートフォンでこの物件を見る
- スマートフォンからもこの物件をご覧になれます。
|
※「-」と表示されている項目については、情報提供会社にご確認ください。
| 周辺施設 |
デイリーヤマザキ熊本日吉店 |
| 距離 |
649m |
| 周辺施設 |
熊本スバル自動車南高江店 |
| 距離 |
499m |
| 周辺施設 |
幼保連携型認定こども園そよかぜこども園 |
| 距離 |
405m |
ここから簡単にお問い合わせをすることができます。
(SSLでの暗号化での送信を希望されるお客さまは
こちら
よりお問い合わせください)
お問い合わせを行う前に
「個人情報の取り扱いについて」を必ずお読みください。
「個人情報の取り扱いについて」に同意いただいた場合は「上記にご同意の上 確認画面へ進む」のボタンをクリックしてください。
個人情報の取り扱いについて
皆さまが送付された個人情報はアットホーム(株)のサーバを経由し、お問い合わせ先の不動産会社にメールまたはFAXにて転送されるためアットホーム(株)にも保管されます。アットホーム(株)で保管された個人情報の取り扱いについては、【こちら】をご覧ください。
また、本画面でご記入いただいた個人情報は、お問い合わせ先の不動産会社でも保管します。 お問い合わせ先の不動産会社が保管する個人情報の取り扱いについては、不動産会社に直接お問い合わせください。
国土交通大臣免許(3)第8333号 |
|---|
- 交通:
- JR豊肥本線/南熊本駅 徒歩10分 【バス】 八王寺 停歩1分
- 熊本県熊本市中央区八王寺町30-1 メインプレイス熊本南8階
- TEL:
- 096-370-7801
- FAX:
- 096-370-7803
- 所属団体:
- (公社)熊本県宅地建物取引業協会会員(一社)九州不動産公正取引協議会加盟
取引態様:代理  - 80501682
|
- スマートフォンで
この不動産会社を見る

|
- 提携サイト等より掲載されている物件情報につきましては、不動産会社詳細情報にリンクされていないものがあります。
- 物件に関するお問合せは、物件詳細ページの「情報提供会社」に表示されている不動産会社へ直接お願いいたします。
- 間取図は、現況を優先させていただきます。
- 映像は物件の一部を撮影したものです。物件の契約にあたっての最終判断はご自身の判断に基づいて行ってください。
- 仲介手数料について

アットホームは物件情報の適正化に努めております。
内容に誤りがある場合にはこちらへご連絡ください。