東京都墨田区本所1丁目(蔵前駅)の貸駐車場:物件詳細
交通 所在地 |
駅徒歩 |
賃料 |
敷金/保証金 |
礼金 |
|
都営大江戸線/蔵前
東京都墨田区本所1丁目
|
9分
|
2.7万円
|
なし / なし
|
なし
|
| 交通 | 都営大江戸線 蔵前駅 徒歩9分 |
|---|
| その他の交通 | 都営浅草線 蔵前駅 徒歩12分 東京メトロ銀座線 浅草駅 徒歩15分 |
| 所在地 |
東京都墨田区本所1丁目
|
| 物件種目 |
賃貸駐車場 |
| 賃料 |
2.7万円 |
敷金 / 保証金 |
なし / なし |
| 敷引 |
- |
管理費等 |
なし |
| 礼金 |
なし |
保証金償却 |
- |
| その他一時金 |
- |
保険等 |
- |
| 維持費等 |
- |
| 駐車場名 |
サイゼンハウス |
| 特記事項 |
- |
| 備考 |
賃貸保証等:加入要(初回保証料 50%~)
管理形態/管理員の勤務形態:-/-
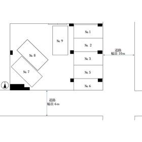
№8 12月末退去予定
|
| エネルギー消費性能 |
- |
| 断熱性能 |
- |
| 目安光熱費 |
- |
| 契約期間 |
1年 |
引渡可能時期 |
2026年1月上旬予定 |
| 現況 |
使用中 |
更新料 |
なし |
| 物件番号 |
6985498908 |
仲介手数料 |
1.1ヶ月 |
| 適格請求書発行 |
不可 |
| 情報公開日 |
2025年12月12日 |
次回更新予定日 |
2026年2月25日 |
| ケータイ用バーコード |
- スマートフォンでこの物件を見る
- スマートフォンからもこの物件をご覧になれます。
|
※「-」と表示されている項目については、情報提供会社にご確認ください。
| 周辺施設 |
サミットストア両国石原店 |
| 距離 |
135m |
| 周辺施設 |
セブンイレブン墨田本所1丁目清澄通り店 |
| 距離 |
137m |
| 周辺施設 |
私立千葉工業大学東京スカイツリータウンキャンパス |
| 距離 |
1959m |
| 周辺施設 |
医療法人財団正明会山田記念病院 |
| 距離 |
430m |
ここから簡単にお問い合わせをすることができます。
(SSLでの暗号化での送信を希望されるお客さまは
こちら
よりお問い合わせください)
お問い合わせを行う前に
「個人情報の取り扱いについて」を必ずお読みください。
「個人情報の取り扱いについて」に同意いただいた場合は「上記にご同意の上 確認画面へ進む」のボタンをクリックしてください。
個人情報の取り扱いについて
皆さまが送付された個人情報はアットホーム(株)のサーバを経由し、お問い合わせ先の不動産会社にメールまたはFAXにて転送されるためアットホーム(株)にも保管されます。アットホーム(株)で保管された個人情報の取り扱いについては、【こちら】をご覧ください。
また、本画面でご記入いただいた個人情報は、お問い合わせ先の不動産会社でも保管します。 お問い合わせ先の不動産会社が保管する個人情報の取り扱いについては、不動産会社に直接お問い合わせください。
東京都知事免許(3)第94252号 |
|---|
- 交通:
- 京成本線/新三河島駅 徒歩2分
- 東京都荒川区荒川5丁目4-2 ラヴィエント町屋101
- TEL:
- 03-3805-2522
- FAX:
- 03-3805-0080
- 所属団体:
- (公社)東京都宅地建物取引業協会会員(公社)首都圏不動産公正取引協議会加盟
取引態様:仲介  - 00106980
|
- スマートフォンで
この不動産会社を見る

|
- 提携サイト等より掲載されている物件情報につきましては、不動産会社詳細情報にリンクされていないものがあります。
- 物件に関するお問合せは、物件詳細ページの「情報提供会社」に表示されている不動産会社へ直接お願いいたします。
- 間取図は、現況を優先させていただきます。
- 映像は物件の一部を撮影したものです。物件の契約にあたっての最終判断はご自身の判断に基づいて行ってください。
- 仲介手数料について

アットホームは物件情報の適正化に努めております。
内容に誤りがある場合にはこちらへご連絡ください。