新潟県新潟市中央区姥ケ山6丁目(越後石山駅)の貸駐車場:物件詳細
交通 所在地 |
駅徒歩 |
賃料 |
敷金/保証金 |
礼金 |
|
JR信越本線/越後石山
新潟県新潟市中央区姥ケ山6丁目
|
22分
|
0.5万円
|
なし / なし
|
なし
|
|
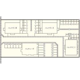
平面図
|
外観
|
その他の画像
|
| 交通 | JR信越本線 越後石山駅 徒歩22分 |
|---|
| その他の交通 | 上越新幹線 新潟駅 【バス】 16分 京王団地 停歩5分 |
| 所在地 |
新潟県新潟市中央区姥ケ山6丁目
|
| 物件種目 |
賃貸駐車場 |
| 賃料 |
0.5万円 |
敷金 / 保証金 |
なし / なし |
| 敷引 |
- |
管理費等 |
- |
| 礼金 |
なし |
保証金償却 |
- |
| その他一時金 |
保証会社初回保証料:5,000円 |
保険等 |
不要 |
| 維持費等 |
保証会社継続保証料:400円/月、口座振替手数料:440円/月 |
| 駐車場名 |
Halekulani(ハレクラニ)パーキング No.18・19・41 |
| 特記事項 |
- |
| 備考 |
管理形態/管理員の勤務形態:-/-
|
| エネルギー消費性能 |
- |
| 断熱性能 |
- |
| 目安光熱費 |
- |
| 契約期間 |
1年 |
引渡可能時期 |
即時 |
| 現況 |
空 |
更新料 |
なし |
| 物件番号 |
6987732374 |
|
|
| 情報公開日 |
2025年9月21日 |
次回更新予定日 |
2025年12月17日 |
| ケータイ用バーコード |
- スマートフォンでこの物件を見る
- スマートフォンからもこの物件をご覧になれます。
|
※「-」と表示されている項目については、情報提供会社にご確認ください。
| 周辺施設 |
イオン 山二ツ店 |
| 距離 |
220m |
写真を見る |
| 周辺施設 |
マツモトキヨシ 山二ツ店 |
| 距離 |
300m |
写真を見る |
| 周辺施設 |
セブンイレブン 新潟姥ヶ山店 |
| 距離 |
150m |
写真を見る |
| 周辺施設 |
ローソン 新潟山二ツ1丁目店 |
| 距離 |
190m |
写真を見る |
| 周辺施設 |
新潟市立山潟中学校 |
| 距離 |
640m |
写真を見る |
| 周辺施設 |
新潟市立桜が丘小学校 |
| 距離 |
160m |
写真を見る |
| 周辺施設 |
新潟南保育園 |
| 距離 |
800m |
写真を見る |
ここから簡単にお問い合わせをすることができます。
(SSLでの暗号化での送信を希望されるお客さまは
こちら
よりお問い合わせください)
お問い合わせを行う前に
「個人情報の取り扱いについて」を必ずお読みください。
「個人情報の取り扱いについて」に同意いただいた場合は「上記にご同意の上 確認画面へ進む」のボタンをクリックしてください。
個人情報の取り扱いについて
皆さまが送付された個人情報はアットホーム(株)のサーバを経由し、お問い合わせ先の不動産会社にメールまたはFAXにて転送されるためアットホーム(株)にも保管されます。アットホーム(株)で保管された個人情報の取り扱いについては、【こちら】をご覧ください。
また、本画面でご記入いただいた個人情報は、お問い合わせ先の不動産会社でも保管します。 お問い合わせ先の不動産会社が保管する個人情報の取り扱いについては、不動産会社に直接お問い合わせください。
明治事務所 慶風社(株)東京都知事免許(1)第109445号 |
|---|
- 交通:
- JR山手線/原宿駅 徒歩7分
- 東京都渋谷区神宮前6丁目28-9
- TEL:
- 03-6427-5066
- FAX:
- 03-6427-5067
- 所属団体:
- (公社)全日本不動産協会会員(公社)首都圏不動産公正取引協議会加盟
取引態様:仲介 |
- 提携サイト等より掲載されている物件情報につきましては、不動産会社詳細情報にリンクされていないものがあります。
- 物件に関するお問合せは、物件詳細ページの「情報提供会社」に表示されている不動産会社へ直接お願いいたします。
- 間取図は、現況を優先させていただきます。
- 映像は物件の一部を撮影したものです。物件の契約にあたっての最終判断はご自身の判断に基づいて行ってください。
- 仲介手数料について

アットホームは物件情報の適正化に努めております。
内容に誤りがある場合にはこちらへご連絡ください。