東京都千代田区神田三崎町2丁目(水道橋駅)の貸駐車場:物件詳細
交通 所在地 |
駅徒歩 |
賃料 |
敷金/保証金 |
礼金 |
|
JR総武線/水道橋
東京都千代田区神田三崎町2丁目
|
2分
|
7.15万円
|
1ヶ月 / なし
|
1ヶ月
|
|
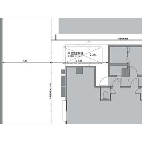
平面図
駐車場配置図です
|
駐車場
屋根部分までの高さ確認中です。
|
| 交通 | JR総武線 水道橋駅 徒歩2分 |
|---|
| その他の交通 | 東京メトロ半蔵門線 九段下駅 徒歩8分 東京メトロ半蔵門線 神保町駅 徒歩8分 |
| 所在地 |
東京都千代田区神田三崎町2丁目
|
| 物件種目 |
賃貸駐車場 |
| 賃料 |
7.15万円 |
敷金 / 保証金 |
1ヶ月 / なし |
| 敷引 |
- |
管理費等 |
- |
| 礼金 |
1ヶ月 |
保証金償却 |
- |
| その他一時金 |
- |
保険等 |
- |
| 維持費等 |
- |
| アピールポイント |
■1台分のスペースです
(全長5,800mm、全幅2,300mm、高さ確認中です)
■ご契約前に試し入れをお願いしております。
■短期解約時、違約金が発生いたします。
「水道橋」駅 徒歩2分、なかなか無い、駅至近の駐車場です!
通勤用・社用車駐車スペースとして是非ご利用ください。 |
| 駐車場名 |
華ビル 屋根付き平置き |
| 特記事項 |
- |
| 備考 |
管理形態/管理員の勤務形態:-/-
■1台分のスペースです
(全長5,800mm、全幅2,300mm、高さ確認中です)
■ご契約前に試し入れをお願いしております。
■短期解約時、違約金が発生いたします。
詳細は担当関根迄お問合せ下さい!
|
| エネルギー消費性能 |
- |
| 断熱性能 |
- |
| 目安光熱費 |
- |
| 契約期間 |
1年 |
引渡可能時期 |
2026年2月中旬予定 |
| 現況 |
使用中 |
更新料 |
- |
| 物件番号 |
6989083191 |
仲介手数料 |
1ヶ月 |
| 情報公開日 |
2026年1月15日 |
次回更新予定日 |
2026年2月12日 |
| ケータイ用バーコード |
- スマートフォンでこの物件を見る
- スマートフォンからもこの物件をご覧になれます。
|
※「-」と表示されている項目については、情報提供会社にご確認ください。
ここから簡単にお問い合わせをすることができます。
(SSLでの暗号化での送信を希望されるお客さまは
こちら
よりお問い合わせください)
お問い合わせを行う前に
「個人情報の取り扱いについて」を必ずお読みください。
「個人情報の取り扱いについて」に同意いただいた場合は「上記にご同意の上 確認画面へ進む」のボタンをクリックしてください。
個人情報の取り扱いについて
皆さまが送付された個人情報はアットホーム(株)のサーバを経由し、お問い合わせ先の不動産会社にメールまたはFAXにて転送されるためアットホーム(株)にも保管されます。アットホーム(株)で保管された個人情報の取り扱いについては、【こちら】をご覧ください。
また、本画面でご記入いただいた個人情報は、お問い合わせ先の不動産会社でも保管します。 お問い合わせ先の不動産会社が保管する個人情報の取り扱いについては、不動産会社に直接お問い合わせください。
東京都知事免許(5)第79601号 |
|---|
- 交通:
- JR総武線/飯田橋駅 徒歩3分
- 東京都千代田区飯田橋4丁目5-12 SK飯田橋ビル3F
- TEL:
- 03-3234-9666
- FAX:
- 03-3234-9660
- 所属団体:
- (公社)全日本不動産協会会員(公社)首都圏不動産公正取引協議会加盟
取引態様:仲介  - 00107300
|
- スマートフォンで
この不動産会社を見る

|
- 提携サイト等より掲載されている物件情報につきましては、不動産会社詳細情報にリンクされていないものがあります。
- 物件に関するお問合せは、物件詳細ページの「情報提供会社」に表示されている不動産会社へ直接お願いいたします。
- 間取図は、現況を優先させていただきます。
- 映像は物件の一部を撮影したものです。物件の契約にあたっての最終判断はご自身の判断に基づいて行ってください。
- 仲介手数料について

アットホームは物件情報の適正化に努めております。
内容に誤りがある場合にはこちらへご連絡ください。