不動産 賃貸 マンション等の住宅情報:埼玉住まい情報


群馬県高崎市栄町(高崎駅)の貸駐車場:物件詳細

  • 物件詳細
  • 情報の見方
  • 印刷用画面
交通
所在地
駅徒歩 賃料 敷金/保証金 礼金

上信電鉄/高崎

群馬県高崎市栄町

10分

46.2万円

なし / なし

なし

おすすめコメント  スタッフ: 蓼沼 伸行

本物件は砂利舗装のゲート付きの駐車場です。全部で28台駐車可能です。分割も可能です。1台あたり16,500円(税込)です。短期間でもお気軽にご連絡ください。

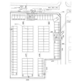
平面図

平面図

この中で28台分駐車可能です。分割の台数でもご紹介可能です。

外観

外観

その他の画像
  • 外観
  • 外観
  • 外観
  • 外観
  • 周辺環境
  • 周辺環境
  • 外観
  • 外観
  • 外観
  • 外観
    • とりあえず保存
    • お問い合わせ
    交通

    上信電鉄 高崎駅 徒歩10分

    その他の交通

    JR八高線 高崎駅 徒歩8分

    JR高崎線 高崎駅 徒歩7分

    所在地 群馬県高崎市栄町
    物件種目 賃貸駐車場
    賃料 46.2万円 敷金 / 保証金 なし / なし
    敷引 管理費等 なし
    礼金 なし 保証金償却
    その他一時金 保険等
    維持費等
    アピールポイント 本物件は砂利舗装のゲート付きの駐車場です。全部で28台駐車可能です。分割も可能です。1台あたり16,500円(税込)です。
    駐車場名 (仮)高崎市栄町駐車場 28台分
    特記事項 24時間利用可、保証人不要
    備考
    管理形態/管理員の勤務形態:-/-
    土地面積:2,555.00m²
    エネルギー消費性能
    断熱性能
    目安光熱費
    設備・サービス
    その他
    契約期間 1年 引渡可能時期 相談
    現況 更新料
    物件番号 6989123524 仲介手数料 1ヶ月
    情報公開日 2026年1月18日 次回更新予定日 2026年2月15日
    ケータイ用バーコード

    QRコード

    スマートフォンでこの物件を見る
    スマートフォンからもこの物件をご覧になれます。
    ※「-」と表示されている項目については、情報提供会社にご確認ください。

    この物件の周辺情報

    周辺施設 小野池學院
    距離 86m
    周辺施設 高崎ビューティモード専門学校
    距離 123m
    周辺施設 中央情報大学校
    距離 172m
    周辺施設 群馬銀行高崎栄町支店
    距離 193m
    周辺施設 セブンイレブン高崎駅東口店
    距離 362m
    周辺施設 ニッポンレンタカー高崎東口駅前営業所
    距離 288m
    周辺施設 ビックカメラ高崎東口店
    距離 200m
    周辺施設 駅レンタカー高崎営業所
    距離 275m

    クイックお問い合わせ

    ここから簡単にお問い合わせをすることができます。
    (SSLでの暗号化での送信を希望されるお客さまは こちら よりお問い合わせください)

    お問い合わせ内容(必須)
    お名前・ご担当者様名(必須) 姓  名 
    メールアドレス(必須)
    ※携帯電話のメールアドレスをご入力される方はこちらをご確認ください
    電話番号(必須)
    - -

    ※入力いただいた電話番号へSMSまたは音声でパスワードをご連絡します。

    携帯電話の番号をご入力の方へ

    携帯電話の番号をご入力の方へ
    確認画面にて送信ボタンをクリックするとSMSが携帯電話に届きます。
    そのSMSに記載のパスワード(認証番号)を入力し、お問い合わせを完了してください。
    尚、SMSの送信者番号は 0005 202 760 となります。
    これはアットホームの固定番号です。

    備考欄 希望条件、物件案内希望日、質問などがございましたらご記入ください。
    お問い合わせを行う前に「個人情報の取り扱いについて」を必ずお読みください。
    「個人情報の取り扱いについて」に同意いただいた場合は「上記にご同意の上 確認画面へ進む」のボタンをクリックしてください。

    個人情報の取り扱いについて

    皆さまが送付された個人情報はアットホーム(株)のサーバを経由し、お問い合わせ先の不動産会社にメールまたはFAXにて転送されるためアットホーム(株)にも保管されます。アットホーム(株)で保管された個人情報の取り扱いについては、【こちら】をご覧ください。
    また、本画面でご記入いただいた個人情報は、お問い合わせ先の不動産会社でも保管します。 お問い合わせ先の不動産会社が保管する個人情報の取り扱いについては、不動産会社に直接お問い合わせください。

    情報提供会社

    情報提供会社

    スカイホーム(株)

    埼玉県知事免許(1)第25153号

    交通:
    JR埼京線/中浦和駅 徒歩6分
    埼玉県さいたま市桜区西堀2丁目5番19号 
    TEL:
    048-753-9909
    FAX:
    048-753-9655
    所属団体:
    (公社)埼玉県宅地建物取引業協会会員
    (公社)首都圏不動産公正取引協議会加盟

    取引態様:仲介

    • 会社情報
    • 00275720
    スマートフォンで
    この不動産会社を見る
    QRコード
    • とりあえず保存
    • お問い合わせ
    • 提携サイト等より掲載されている物件情報につきましては、不動産会社詳細情報にリンクされていないものがあります。
    • 物件に関するお問合せは、物件詳細ページの「情報提供会社」に表示されている不動産会社へ直接お願いいたします。
    • 間取図は、現況を優先させていただきます。
    • 映像は物件の一部を撮影したものです。物件の契約にあたっての最終判断はご自身の判断に基づいて行ってください。
    • 仲介手数料について仲介手数料

    アットホームは物件情報の適正化に努めております。 内容に誤りがある場合にはこちらへご連絡ください。

    【埼玉住まい情報】では、日本全国の物件から賃貸マンションや賃貸アパート・賃貸一戸建て等の賃貸住宅情報、新築マンション・分譲マンションや中古マンション等の売買マンション情報、新築一戸建てや中古一戸建てなどの戸建住宅、 土地など、総合的な不動産住宅情報検索サービスを提供致します。
    【埼玉住まい情報】から、選りすぐりの不動産物件を探してみましょう。

    【免責事項】
    このコーナーの運営はアットホーム株式会社(https://www.athome.co.jp/)が行っています。
    このコーナーに掲載している物件情報は、「アットホーム不動産情報ネットワーク」に加盟する不動産会社等(情報提供元)から提供されています。信頼性の高い情報提供が行えるよう、最大限の努力をしておりますが、その内容を保証するものではありません。 利用者のみなさまと各情報提供元との取引に起因する損害および情報が掲載されたことに起因する損害等については、株式会社イーシティ埼玉、およびアットホームは一切責任を負いません。
    各物件情報の内容や画像等はすべて現況を優先させていただきます。
    お取引等(お取引の準備、資金調達等を含みます)の際には、内容や契約条件等について、各情報提供元より十分な説明を受け、ご自身でご確認の上、判断してください。
    このコーナーへの物件情報のご掲載、その他不動産業務ソリューション等についての不動産会社様のお問合せはこちらからお願いいたします。

    物件画像: