不動産 賃貸 マンション等の住宅情報:埼玉住まい情報


東京都港区新橋4丁目(新橋駅)の貸店舗:物件詳細

  • 物件詳細
  • 情報の見方
  • 印刷用画面
交通
所在地
駅徒歩 賃料
管理費等
敷金/保証金
礼金
使用部分面積
坪数/坪単価
物件種目
築年月

JR山手線/新橋

東京都港区新橋4丁目

5分

119.064万円

なし

8ヶ月 / なし

なし

89.46m²

27.06坪/4.3998万円

貸店舗・事務所

2022年5月(築3年11ヶ月)

おすすめコメント  スタッフ: 八木 憲政

2022年5月竣工の店舗・オフィスビルです。カーテンウォールタワーの外観でインパクトがあります。業種等お気軽にご相談ください。

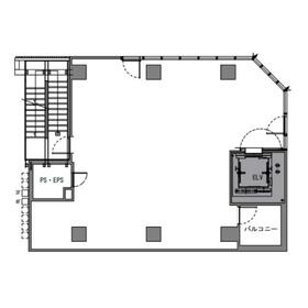
間取図

間取図

外観

外観

<
その他の画像
  • 外観
  • 郵便局
  • 銀行
  • 銀行
  • 銀行
  • コンビニ
  • コンビニ
  • コンビニ
  • 飲食店
>
    • とりあえず保存
    • お問い合わせ
    交通

    JR山手線 新橋駅 徒歩5分

    その他の交通

    都営大江戸線 汐留駅 徒歩6分

    都営三田線 御成門駅 徒歩8分

    所在地 東京都港区新橋4丁目
    物件種目 貸店舗・事務所
    賃料 119.064万円 管理費等 なし
    敷金 / 保証金 8ヶ月 / なし 礼金 なし
    敷引 2ヶ月 坪単価 4.3998万円
    保証金償却 権利金
    造作譲渡 その他一時金 なし
    維持費等 保険等
    使用部分面積 89.46m² 坪数 27.06坪
    築年月 2022年5月(築3年11ヶ月) 階建 / 階 11階建 / 4階
    駐車場 バイク置き場
    駐輪場 土地面積
    接道状況 用途地域
    間取り 建物構造 鉄骨造
    アピールポイント 株式会社クイックコンサルティングは、素早く丁寧をモットーに全国のオフィス移転に対応しております。
    お問合せ頂いてからのレスポンスの早さにも自信がございますのでお急ぎの方は是非ご用命下さい。
    勿論その後の粘り強さにも自信がございます。
    ご希望の物件が見つかるまで、粘り強く何度でも物件をご提案致します。
    また、単に物件を紹介するだけでなく、内装の提案などオフィスに関わる様々なお悩みにお答えしております。
    その為、移転を任されるのが初めてのご担当者様やオフィスに関してお悩みをお持ちの経営者様などからご好評を頂いております。

    なお弊社は東京本社に加えて、大阪、名古屋、広島、福岡に5つの支店がございます。
    全国展開する事で地方に居を構える貸主様との関係が強化出来たり全国展開をされている企業様のご移転をより密にサポートさせて頂く事が可能です。

    ■追記
    地方物件に関しましては、直接支店へお電話頂いた方がスムーズです。
    東京本社:03-5201-8040
    大阪支店:06-6147-9791
    名古屋支店:052-223-0655
    福岡支店:092-791-5500
    広島支店:082-242-6600
    建物名・部屋番号 AIBA SHIMBASHI TOWER(愛場新橋タワー) 4F
    リフォーム履歴
    リノベーション履歴
    特記事項 24時間セキュリティー、耐震構造(新耐震基準)、天井高2.5M以上
    備考
    管理形態/管理員の勤務形態:-/-
    エネルギー消費性能
    断熱性能
    目安光熱費
    バス・トイレ
    キッチン
    設備・サービス インターネット対応、光ファイバー
    その他 エレベーター
    契約期間 2年 条件等
    引渡可能時期 即時 現況
    仲介手数料 119.064万円    
    更新料 新賃料 1ヶ月 物件番号 1020245177
    情報公開日 2023年5月28日 次回更新予定日 2026年3月13日
    ケータイ用バーコード

    QRコード

    スマートフォンでこの物件を見る
    スマートフォンからもこの物件をご覧になれます。
    ※「-」と表示されている項目については、情報提供会社にご確認ください。

    この物件の周辺情報

    周辺施設 新橋四郵便局
    距離 230m
    周辺施設 みずほ銀行新橋中央支店
    距離 148m
    周辺施設 城南信用金庫新橋支店
    距離 219m
    周辺施設 ゆうちょ銀行本店ニュー新橋ビル内出張所
    距離 353m
    周辺施設 ローソン新橋四丁目店
    距離 139m
    周辺施設 ファミリーマート新橋赤レンガ通り店
    距離 262m
    周辺施設 セブンイレブン新橋第一京浜店
    距離 216m
    周辺施設 カフェ・ベローチェ新橋四丁目店
    距離 138m

    クイックお問い合わせ

    ここから簡単にお問い合わせをすることができます。
    (SSLでの暗号化での送信を希望されるお客さまは こちら よりお問い合わせください)

    お問い合わせ内容(必須)
    物件のお問い合わせ理由(必須)
    お名前・ご担当者様名(必須) 姓  名 
    メールアドレス(必須)
    ※携帯電話のメールアドレスをご入力される方はこちらをご確認ください
    電話番号(必須)
    - -

    ※入力いただいた電話番号へSMSまたは音声でパスワードをご連絡します。

    携帯電話の番号をご入力の方へ

    携帯電話の番号をご入力の方へ
    確認画面にて送信ボタンをクリックするとSMSが携帯電話に届きます。
    そのSMSに記載のパスワード(認証番号)を入力し、お問い合わせを完了してください。
    尚、SMSの送信者番号は 0005 202 760 となります。
    これはアットホームの固定番号です。

    備考欄 希望条件、物件案内希望日、質問などがございましたらご記入ください。
    お問い合わせを行う前に「個人情報の取り扱いについて」を必ずお読みください。
    「個人情報の取り扱いについて」に同意いただいた場合は「上記にご同意の上 確認画面へ進む」のボタンをクリックしてください。

    個人情報の取り扱いについて

    皆さまが送付された個人情報はアットホーム(株)のサーバを経由し、お問い合わせ先の不動産会社にメールまたはFAXにて転送されるためアットホーム(株)にも保管されます。アットホーム(株)で保管された個人情報の取り扱いについては、【こちら】をご覧ください。
    また、本画面でご記入いただいた個人情報は、お問い合わせ先の不動産会社でも保管します。 お問い合わせ先の不動産会社が保管する個人情報の取り扱いについては、不動産会社に直接お問い合わせください。

    情報提供会社

    情報提供会社

    (株)クイックコンサルティング

    国土交通大臣免許(4)第7938号

    交通:
    東京メトロ銀座線/日本橋駅 徒歩1分
    東京都中央区日本橋3丁目8-16 ぶよおビル5F
    TEL:
    03-5201-8040
    FAX:
    03-5201-8041
    所属団体:
    (公社)全日本不動産協会会員

    取引態様:仲介

    • 会社情報
    • 00160377
    スマートフォンで
    この不動産会社を見る
    QRコード
    • とりあえず保存
    • お問い合わせ
    • 提携サイト等より掲載されている物件情報につきましては、不動産会社詳細情報にリンクされていないものがあります。
    • 物件に関するお問合せは、物件詳細ページの「情報提供会社」に表示されている不動産会社へ直接お願いいたします。
    • 間取図は、現況を優先させていただきます。
    • 映像は物件の一部を撮影したものです。物件の契約にあたっての最終判断はご自身の判断に基づいて行ってください。
    • 仲介手数料について仲介手数料

    アットホームは物件情報の適正化に努めております。 内容に誤りがある場合にはこちらへご連絡ください。

    【埼玉住まい情報】では、日本全国の物件から賃貸マンションや賃貸アパート・賃貸一戸建て等の賃貸住宅情報、新築マンション・分譲マンションや中古マンション等の売買マンション情報、新築一戸建てや中古一戸建てなどの戸建住宅、 土地など、総合的な不動産住宅情報検索サービスを提供致します。
    【埼玉住まい情報】から、選りすぐりの不動産物件を探してみましょう。

    【免責事項】
    このコーナーの運営はアットホーム株式会社(https://www.athome.co.jp/)が行っています。
    このコーナーに掲載している物件情報は、「アットホーム不動産情報ネットワーク」に加盟する不動産会社等(情報提供元)から提供されています。信頼性の高い情報提供が行えるよう、最大限の努力をしておりますが、その内容を保証するものではありません。 利用者のみなさまと各情報提供元との取引に起因する損害および情報が掲載されたことに起因する損害等については、株式会社イーシティ埼玉、およびアットホームは一切責任を負いません。
    各物件情報の内容や画像等はすべて現況を優先させていただきます。
    お取引等(お取引の準備、資金調達等を含みます)の際には、内容や契約条件等について、各情報提供元より十分な説明を受け、ご自身でご確認の上、判断してください。
    このコーナーへの物件情報のご掲載、その他不動産業務ソリューション等についての不動産会社様のお問合せはこちらからお願いいたします。

    物件画像: