広島県広島市南区荒神町(広島駅)の貸店舗:物件詳細
交通 所在地 |
駅徒歩 |
賃料 管理費等 |
敷金/保証金 礼金 |
使用部分面積 坪数/坪単価 |
物件種目 築年月 |
|
山陽新幹線/広島
広島県広島市南区荒神町
|
6分
|
137.5万円
なし
|
12ヶ月 / なし
なし
|
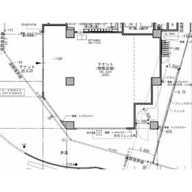
165.32m²
50.00坪/2.7496万円
|
貸店舗・事務所
2020年4月(築6年2ヶ月)
|
|
間取図
|
外観
|
その他の画像
|
| 交通 | 山陽新幹線 広島駅 徒歩6分 |
|---|
| その他の交通 | JR山陽本線 広島駅 徒歩6分 広島電鉄本線 広島駅 徒歩6分 |
| 所在地 |
広島県広島市南区荒神町
|
| 物件種目 |
貸店舗・事務所 |
| 賃料 |
137.5万円 |
管理費等 |
なし |
| 敷金 / 保証金 |
12ヶ月 / なし |
礼金 |
なし |
| 敷引 |
- |
坪単価 |
2.7496万円 |
| 保証金償却 |
- |
権利金 |
- |
| 造作譲渡 |
- |
その他一時金 |
なし |
| 維持費等 |
- |
保険等 |
- |
| クレジットカード決済 |
初期費用可 |
| 使用部分面積 |
165.32m² |
坪数 |
50.00坪 |
| 築年月 |
2020年4月(築6年2ヶ月)
|
階建 / 階 |
8階建 / 1階 |
| 駐車場 |
無 |
バイク置き場 |
- |
| 駐輪場 |
- |
土地面積 |
- |
| 接道状況 |
-
|
用途地域 |
- |
| 間取り |
- |
建物構造 |
RC |
| 建物名・部屋番号 |
ネストホテル広島駅前 001 |
| リフォーム履歴 |
- |
| リノベーション履歴 |
- |
| 特記事項 |
- |
| 備考 |
賃貸保証等:加入要(要確認)
管理形態/管理員の勤務形態:-/-
主要採光面:南西向き
広島駅近く、角地路面店の募集!
地路面店舗で視認性良し!20年の定期借家契約(※飲食は軽飲食のみ)スケルトン渡しになります。お問い合
|
| エネルギー消費性能 |
- |
| 断熱性能 |
- |
| 目安光熱費 |
- |
| バス・トイレ |
- |
| キッチン |
- |
| 設備・サービス |
- |
| その他 |
- |
| 契約期間 |
20年 |
条件等 |
定期借家 |
| 引渡可能時期 |
相談 |
現況 |
空 |
| 仲介手数料 |
137.5万円 |
|
|
| 更新料 |
なし |
物件番号 |
1026812847 |
| 情報公開日 |
2026年3月23日 |
次回更新予定日 |
2026年5月21日 |
| ケータイ用バーコード |
- スマートフォンでこの物件を見る
- スマートフォンからもこの物件をご覧になれます。
|
※「-」と表示されている項目については、情報提供会社にご確認ください。
| 周辺施設 |
広島市立荒神町小学校 |
| 距離 |
416m |
写真を見る |
| 周辺施設 |
広島市立二葉中学校 |
| 距離 |
1387m |
写真を見る |
| 周辺施設 |
私立広島県瀬戸内高校 |
| 距離 |
1266m |
写真を見る |
| 周辺施設 |
広島市東区役所 |
| 距離 |
494m |
写真を見る |
| 周辺施設 |
広島蟹屋郵便局 |
| 距離 |
428m |
写真を見る |
| 周辺施設 |
広島市立東区図書館 |
| 距離 |
590m |
写真を見る |
| 周辺施設 |
広島東警察署 |
| 距離 |
1367m |
写真を見る |
ここから簡単にお問い合わせをすることができます。
(SSLでの暗号化での送信を希望されるお客さまは
こちら
よりお問い合わせください)
お問い合わせを行う前に
「個人情報の取り扱いについて」を必ずお読みください。
「個人情報の取り扱いについて」に同意いただいた場合は「上記にご同意の上 確認画面へ進む」のボタンをクリックしてください。
個人情報の取り扱いについて
皆さまが送付された個人情報はアットホーム(株)のサーバを経由し、お問い合わせ先の不動産会社にメールまたはFAXにて転送されるためアットホーム(株)にも保管されます。アットホーム(株)で保管された個人情報の取り扱いについては、【こちら】をご覧ください。
また、本画面でご記入いただいた個人情報は、お問い合わせ先の不動産会社でも保管します。 お問い合わせ先の不動産会社が保管する個人情報の取り扱いについては、不動産会社に直接お問い合わせください。
国土交通大臣免許(2)第9113号 |
|---|
- 交通:
- JR山陽本線/広島駅 徒歩1分
- 広島県広島市南区大須賀町13-6 加藤ビル1F
- TEL:
- 082-553-9377
- FAX:
- 082-261-0505
- 所属団体:
- (公社)広島県宅地建物取引業協会会員中国地区不動産公正取引協議会加盟
取引態様:仲介  - 50024468
|
- スマートフォンで
この不動産会社を見る

|
- 提携サイト等より掲載されている物件情報につきましては、不動産会社詳細情報にリンクされていないものがあります。
- 物件に関するお問合せは、物件詳細ページの「情報提供会社」に表示されている不動産会社へ直接お願いいたします。
- 間取図は、現況を優先させていただきます。
- 映像は物件の一部を撮影したものです。物件の契約にあたっての最終判断はご自身の判断に基づいて行ってください。
- 仲介手数料について

アットホームは物件情報の適正化に努めております。
内容に誤りがある場合にはこちらへご連絡ください。