茨城県牛久市中央5丁目(牛久駅)の貸店舗:物件詳細
交通 所在地 |
駅徒歩 |
賃料 管理費等 |
敷金/保証金 礼金 |
使用部分面積 坪数/坪単価 |
物件種目 築年月 |
|
JR常磐線/牛久
茨城県牛久市中央5丁目
|
1分
|
21.5611万円
なし
|
3ヶ月 / なし
なし
|
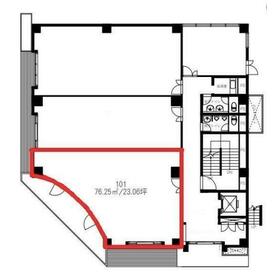
76.25m²
23.06坪/0.9348万円
|
貸店舗・事務所
1989年12月(築36年6ヶ月)
|
|
間取図
|
外観
|
その他の画像
|
| 交通 | JR常磐線 牛久駅 徒歩1分 |
| 所在地 |
茨城県牛久市中央5丁目
|
| 物件種目 |
貸店舗・事務所 |
| 賃料 |
21.5611万円 |
管理費等 |
なし |
| 敷金 / 保証金 |
3ヶ月 / なし |
礼金 |
なし |
| 敷引 |
- |
坪単価 |
0.9348万円 |
| 保証金償却 |
- |
権利金 |
- |
| 造作譲渡 |
- |
その他一時金 |
なし |
| 維持費等 |
- |
保険等 |
- |
| 使用部分面積 |
76.25m² |
坪数 |
23.06坪 |
| 築年月 |
1989年12月(築36年6ヶ月)
|
階建 / 階 |
地上6階地下1階建 / 1階 |
| 駐車場 |
無 |
バイク置き場 |
無 |
| 駐輪場 |
有 |
土地面積 |
- |
| 接道状況 |
-
|
用途地域 |
- |
| 間取り |
- |
建物構造 |
SRC |
| アピールポイント |
弊社グループの管理物件を募集しています!ご質問・ご内見希望はお気軽にお問合せください♪ |
| 建物名・部屋番号 |
牛久駅前ビル 101 |
| リフォーム履歴 |
- |
| リノベーション履歴 |
2014年3月 共用部美装! ※実施年月は最も古い履歴を表示 |
| 特記事項 |
24時間利用可、土曜日利用可、土日・祝日利用可、フリーレント、天井高2.5M以上 |
| 備考 |
管理形態/管理員の勤務形態:-/-
フリーレント:3ヶ月
|
| エネルギー消費性能 |
- |
| 断熱性能 |
- |
| 目安光熱費 |
- |
| バス・トイレ |
男女別トイレ、トイレ |
| キッチン |
- |
| 設備・サービス |
給湯、エアコン、冷房 |
| その他 |
エレベーター |
| 契約期間 |
2年 |
条件等 |
- |
| 引渡可能時期 |
即時 |
現況 |
空 |
| 更新料 |
- |
物件番号 |
1045280498 |
| 情報公開日 |
2025年4月4日 |
次回更新予定日 |
2026年5月13日 |
| ケータイ用バーコード |
- スマートフォンでこの物件を見る
- スマートフォンからもこの物件をご覧になれます。
|
※「-」と表示されている項目については、情報提供会社にご確認ください。
| 周辺施設 |
ファミリーマート牛久駅前店 |
| 距離 |
150m |
| 周辺施設 |
セブンイレブン牛久南2丁目店 |
| 距離 |
414m |
ここから簡単にお問い合わせをすることができます。
(SSLでの暗号化での送信を希望されるお客さまは
こちら
よりお問い合わせください)
お問い合わせを行う前に
「個人情報の取り扱いについて」を必ずお読みください。
「個人情報の取り扱いについて」に同意いただいた場合は「上記にご同意の上 確認画面へ進む」のボタンをクリックしてください。
個人情報の取り扱いについて
皆さまが送付された個人情報はアットホーム(株)のサーバを経由し、お問い合わせ先の不動産会社にメールまたはFAXにて転送されるためアットホーム(株)にも保管されます。アットホーム(株)で保管された個人情報の取り扱いについては、【こちら】をご覧ください。
また、本画面でご記入いただいた個人情報は、お問い合わせ先の不動産会社でも保管します。 お問い合わせ先の不動産会社が保管する個人情報の取り扱いについては、不動産会社に直接お問い合わせください。
国土交通大臣免許(2)第8884号 |
|---|
- 交通:
- 東京メトロ銀座線/溜池山王駅 徒歩3分
- 東京都千代田区永田町2丁目12-4 赤坂山王センタービル8F
- TEL:
- 03-5156-8888
- FAX:
- 03-5156-8886
- 所属団体:
- (公社)全日本不動産協会会員(公社)首都圏不動産公正取引協議会加盟
取引態様:仲介  - 00820564
|
- スマートフォンで
この不動産会社を見る

|
- 提携サイト等より掲載されている物件情報につきましては、不動産会社詳細情報にリンクされていないものがあります。
- 物件に関するお問合せは、物件詳細ページの「情報提供会社」に表示されている不動産会社へ直接お願いいたします。
- 間取図は、現況を優先させていただきます。
- 映像は物件の一部を撮影したものです。物件の契約にあたっての最終判断はご自身の判断に基づいて行ってください。
- 仲介手数料について

アットホームは物件情報の適正化に努めております。
内容に誤りがある場合にはこちらへご連絡ください。