東京都八王子市子安町1丁目(八王子駅)の貸店舗:物件詳細
交通 所在地 |
駅徒歩 |
賃料 管理費等 |
敷金/保証金 礼金 |
使用部分面積 坪数/坪単価 |
物件種目 築年月 |
|
JR中央線/八王子
東京都八王子市子安町1丁目
|
7分
|
34.1万円
なし
|
6ヶ月 / なし
1ヶ月
|
82.65m²
25.00坪/1.364万円
|
貸店舗・事務所
2001年1月(築25年4ヶ月)
|
|
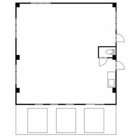
間取図
駐車場3台分賃料に込み!交通量のある子安公園通り沿いです。
|
外観
駐車場3台分賃料に込み!交通量のある子安公園通り沿いです。
|
その他の画像
|
| 交通 | JR中央線 八王子駅 徒歩7分 |
|---|
| その他の交通 | 京王線 京王八王子駅 徒歩13分 京王高尾線 京王片倉駅 徒歩14分 |
| 所在地 |
東京都八王子市子安町1丁目
|
| 物件種目 |
貸店舗・事務所 |
| 賃料 |
34.1万円 |
管理費等 |
なし |
| 敷金 / 保証金 |
6ヶ月 / なし |
礼金 |
1ヶ月 |
| 敷引 |
- |
坪単価 |
1.364万円 |
| 保証金償却 |
解約時1ヶ月 |
権利金 |
- |
| 造作譲渡 |
- |
その他一時金 |
なし |
| 維持費等 |
- |
保険等 |
- |
| 使用部分面積 |
82.65m² |
坪数 |
25.00坪 |
| 築年月 |
2001年1月(築25年4ヶ月)
|
階建 / 階 |
3階建 / 1階 |
| 駐車場 |
有 無料(空き3台) 駐3台可 |
バイク置き場 |
- |
| 駐輪場 |
- |
土地面積 |
- |
| 接道状況 |
-
|
用途地域 |
- |
| 間取り |
- |
建物構造 |
鉄骨造 |
| アピールポイント |
駐車場3台分賃料に込み、トイレ・空調等残置物であり |
| 建物名・部屋番号 |
Partenza 1F |
| リフォーム履歴 |
- |
| リノベーション履歴 |
- |
| 特記事項 |
耐震構造(新耐震基準) |
| 備考 |
管理形態/管理員の勤務形態:-/-
飲食物を取り扱う業種の場合害虫・害獣調査契約要(56,000円税別/年2回分)。指定保証会社加入要(初回保証料:月額総支払額の100%、年間保証料:月額総支払額の10%、他口座振替手数料あり)。更新事務手数料:13,750円(税込)
|
| エネルギー消費性能 |
- |
| 断熱性能 |
- |
| 目安光熱費 |
- |
| バス・トイレ |
- |
| キッチン |
- |
| 設備・サービス |
光ファイバー |
| その他 |
- |
| 契約期間 |
3年 |
条件等 |
- |
| 引渡可能時期 |
2026年8月下旬予定 |
現況 |
使用中 |
| 仲介手数料 |
1.1ヶ月 |
|
|
| 更新料 |
新賃料 1ヶ月 |
物件番号 |
1056280438 |
| 情報公開日 |
2026年3月13日 |
次回更新予定日 |
2026年5月12日 |
| ケータイ用バーコード |
- スマートフォンでこの物件を見る
- スマートフォンからもこの物件をご覧になれます。
|
※「-」と表示されている項目については、情報提供会社にご確認ください。
| 周辺施設 |
みずほ銀行八王子南口支店 |
| 距離 |
270m |
| 周辺施設 |
CoCo壱番屋八王子駅南口店 |
| 距離 |
310m |
| 周辺施設 |
エ・プロントセレオ八王子店 |
| 距離 |
450m |
| 周辺施設 |
サイゼリヤサザンスカイタワー八王子店 |
| 距離 |
530m |
| 周辺施設 |
中華食堂日高屋八王子南口店 |
| 距離 |
530m |
| 周辺施設 |
ファミリーマート八王子子安町店 |
| 距離 |
150m |
ここから簡単にお問い合わせをすることができます。
(SSLでの暗号化での送信を希望されるお客さまは
こちら
よりお問い合わせください)
お問い合わせを行う前に
「個人情報の取り扱いについて」を必ずお読みください。
「個人情報の取り扱いについて」に同意いただいた場合は「上記にご同意の上 確認画面へ進む」のボタンをクリックしてください。
個人情報の取り扱いについて
皆さまが送付された個人情報はアットホーム(株)のサーバを経由し、お問い合わせ先の不動産会社にメールまたはFAXにて転送されるためアットホーム(株)にも保管されます。アットホーム(株)で保管された個人情報の取り扱いについては、【こちら】をご覧ください。
また、本画面でご記入いただいた個人情報は、お問い合わせ先の不動産会社でも保管します。 お問い合わせ先の不動産会社が保管する個人情報の取り扱いについては、不動産会社に直接お問い合わせください。
国土交通大臣免許(5)第6225号 |
|---|
- 交通:
- 都営新宿線/岩本町駅 徒歩5分
- 東京都千代田区岩本町2丁目6-10 第一中野ビル8F
- TEL:
- 03-5687-1915
- FAX:
- 03-5687-1914
取引態様:仲介  - 00101342
|
- スマートフォンで
この不動産会社を見る

|
- 提携サイト等より掲載されている物件情報につきましては、不動産会社詳細情報にリンクされていないものがあります。
- 物件に関するお問合せは、物件詳細ページの「情報提供会社」に表示されている不動産会社へ直接お願いいたします。
- 間取図は、現況を優先させていただきます。
- 映像は物件の一部を撮影したものです。物件の契約にあたっての最終判断はご自身の判断に基づいて行ってください。
- 仲介手数料について

アットホームは物件情報の適正化に努めております。
内容に誤りがある場合にはこちらへご連絡ください。