愛知県名古屋市千種区星が丘山手(星ヶ丘駅)の貸店舗:物件詳細
交通 所在地 |
駅徒歩 |
賃料 管理費等 |
敷金/保証金 礼金 |
使用部分面積 坪数/坪単価 |
物件種目 築年月 |
名古屋市東山線/星ヶ丘
愛知県名古屋市千種区星が丘山手
|
1分
|
31.27万円
59,554円
|
なし / 10ヶ月
なし
|
89.49m²
27.07坪/1.1552万円
|
貸店舗・事務所
2011年8月(築14年3ヶ月)
|
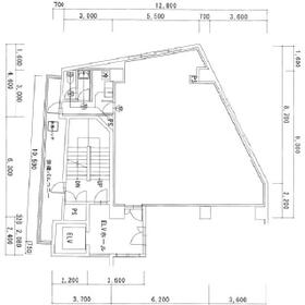
間取図
|
外観
|
その他の画像
|
交通 | 名古屋市東山線 星ヶ丘駅 徒歩1分 |
---|
その他の交通 | 名古屋市東山線 東山公園駅 徒歩18分 名古屋市東山線 一社駅 徒歩26分 |
所在地 |
愛知県名古屋市千種区星が丘山手
|
物件種目 |
貸店舗・事務所 |
賃料 |
31.27万円 |
管理費等 |
59,554円 |
敷金 / 保証金 |
なし / 10ヶ月 |
礼金 |
なし |
敷引 |
- |
坪単価 |
1.1552万円 |
保証金償却 |
- |
権利金 |
- |
造作譲渡 |
- |
その他一時金 |
なし |
維持費等 |
ごみ処理費(事務所の場合):1,650円/月 |
保険等 |
- |
使用部分面積 |
89.49m² |
坪数 |
27.07坪 |
築年月 |
2011年8月(築14年3ヶ月)
|
階建 / 階 |
4階建 / 3階 |
駐車場 |
無 |
バイク置き場 |
無 |
駐輪場 |
無 |
土地面積 |
- |
接道状況 |
南 公道
|
用途地域 |
- |
間取り |
- |
建物構造 |
RC |
建物名・部屋番号 |
SUN HOSHIGAOKA 3B |
リフォーム履歴 |
- |
リノベーション履歴 |
- |
特記事項 |
24時間利用可、OAフロア、角部屋 |
備考 |
管理形態/管理員の勤務形態:-/-
主要採光面:北向き
保証会社相談 要保険 2026年4月引渡
保証金償却 1年未満100% 3年未満70% 3年以上50%償却
|
エネルギー消費性能 |
- |
断熱性能 |
- |
目安光熱費 |
- |
バス・トイレ |
- |
キッチン |
- |
設備・サービス |
都市ガス、動力あり、火災警報器(報知機) |
その他 |
エレベーター |
契約期間 |
2年 |
条件等 |
- |
引渡可能時期 |
相談 |
現況 |
居住中 |
更新料 |
なし |
物件番号 |
1060764985 |
情報公開日 |
2025年10月9日 |
次回更新予定日 |
2025年10月23日 |
ケータイ用バーコード |
- スマートフォンでこの物件を見る
- スマートフォンからもこの物件をご覧になれます。
|
※「-」と表示されている項目については、情報提供会社にご確認ください。
ここから簡単にお問い合わせをすることができます。
(SSLでの暗号化での送信を希望されるお客さまは
こちら
よりお問い合わせください)
お問い合わせを行う前に
「個人情報の取り扱いについて」を必ずお読みください。
「個人情報の取り扱いについて」に同意いただいた場合は「上記にご同意の上 確認画面へ進む」のボタンをクリックしてください。
個人情報の取り扱いについて
皆さまが送付された個人情報はアットホーム(株)のサーバを経由し、お問い合わせ先の不動産会社にメールまたはFAXにて転送されるためアットホーム(株)にも保管されます。アットホーム(株)で保管された個人情報の取り扱いについては、【こちら】をご覧ください。
また、本画面でご記入いただいた個人情報は、お問い合わせ先の不動産会社でも保管します。 お問い合わせ先の不動産会社が保管する個人情報の取り扱いについては、不動産会社に直接お問い合わせください。
(株)明が丘愛知県知事免許(2)第23112号 |
---|
- 愛知県名古屋市名東区明が丘50 サン・ラ・サールビル4F
- TEL:
- 052-772-1170
- FAX:
- 052-776-0988
- 所属団体:
- (公社)愛知県宅地建物取引業協会会員東海不動産公正取引協議会加盟
取引態様:貸主 |
- 提携サイト等より掲載されている物件情報につきましては、不動産会社詳細情報にリンクされていないものがあります。
- 物件に関するお問合せは、物件詳細ページの「情報提供会社」に表示されている不動産会社へ直接お願いいたします。
- 間取図は、現況を優先させていただきます。
- 映像は物件の一部を撮影したものです。物件の契約にあたっての最終判断はご自身の判断に基づいて行ってください。
- 仲介手数料について

アットホームは物件情報の適正化に努めております。
内容に誤りがある場合にはこちらへご連絡ください。