大阪府大阪市中央区安土町3丁目(本町駅)の貸店舗:物件詳細
交通 所在地 |
駅徒歩 |
賃料 管理費等 |
敷金/保証金 礼金 |
使用部分面積 坪数/坪単価 |
物件種目 築年月 |
地下鉄御堂筋線/本町
大阪府大阪市中央区安土町3丁目
|
1分
|
1,890.196万円
なし
|
12ヶ月 / なし
なし
|
2,028.76m²
613.69坪/3.0801万円
|
貸店舗・事務所
2023年3月(築2年8ヶ月)
|
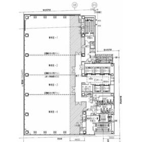
間取図
本町ガーデンシティテラス 間取り
|
外観
本町ガーデンシティテラス 外観
|
<
その他の画像
>
|
交通 | 地下鉄御堂筋線 本町駅 徒歩1分 |
---|
その他の交通 | 地下鉄中央線 堺筋本町駅 徒歩7分 地下鉄御堂筋線 淀屋橋駅 徒歩10分 |
所在地 |
大阪府大阪市中央区安土町3丁目
|
物件種目 |
貸店舗・事務所 |
賃料 |
1,890.196万円 |
管理費等 |
なし |
敷金 / 保証金 |
12ヶ月 / なし |
礼金 |
なし |
敷引 |
- |
坪単価 |
3.0801万円 |
保証金償却 |
- |
権利金 |
- |
造作譲渡 |
- |
その他一時金 |
なし |
維持費等 |
- |
保険等 |
- |
使用部分面積 |
2,028.76m² |
坪数 |
613.69坪 |
築年月 |
2023年3月(築2年8ヶ月)
|
階建 / 階 |
地上19階地下2階建 / 18階 |
駐車場 |
有 40,000円/月(空き1台) |
バイク置き場 |
近有 |
駐輪場 |
近有 |
土地面積 |
- |
接道状況 |
-
|
用途地域 |
- |
間取り |
- |
建物構造 |
鉄骨造 |
アピールポイント |
★当店では大阪初となるサロン型店舗です。
お客様一人一人のご要望を丁寧にお聞きしオーダーメイドのご提案をさせていただきす。
★個室のプライベート空間で24時間換気を行いながらご提案をさせていただきます。
★予約制なので他のお客様と同じ空間にいることがほとんどありません。
★キッズルームも完備しておりますのでお子様を連れてのご来店も大歓迎です。
★賃貸・売買双方を専門としておりますので、最良のご提案をさせていただきます。
★LINEお問い合わせが比較的早急にご対応出来ます!
★AFLOであれば、他社様の掲載物件でもまとめてご内覧・ご紹介可能です。 |
建物名・部屋番号 |
|
リフォーム履歴 |
- |
リノベーション履歴 |
- |
特記事項 |
有人警備、OAフロア、1フロア1テナント、角部屋、制震構造、天井高2.5M以上、バリアフリー、24時間換気システム |
備考 |
賃貸保証等:加入要(都度お問い合わせ下さい。都度お問い合わせ下さい。)
管理形態/管理員の勤務形態:-/-
物件より徒歩圏内に当社営業店がございます。
事務所物件をはじめ、飲食・美容・物販などの様々な業種のニーズに応じて店舗物件をご紹介しております。
尚、弊社ではおとり広告は一切おこなっておりません。現地での内覧お待ち合わせ等も可能です。
お問い合わせ頂いた物件は勿論のこと、インターネットに掲載していないオススメ物件多数ございます。
ご相談も含めお気軽にお申し付け下さいませ。
物件より徒歩圏内に当社営業店がございます。内覧等・ご相談はお気軽にご連絡下さいませ。
現地でのお待ち合わせ希望などにもご対応させていただいております。
06-6578-2223
|
エネルギー消費性能 |
- |
断熱性能 |
- |
目安光熱費 |
- |
バス・トイレ |
男女別トイレ、トイレ2ヶ所、トイレ |
キッチン |
- |
設備・サービス |
個別空調、オートロック、防犯カメラ、エアコン、火災警報器(報知機)、インターネット対応、光ファイバー、ケーブルTV |
その他 |
施設内喫煙所、エレベーター2基以上、エレベーター |
契約期間 |
5年 |
条件等 |
定期借家 |
引渡可能時期 |
即時 |
現況 |
空 |
更新料 |
- |
物件番号 |
1071053393 |
情報公開日 |
2025年9月13日 |
次回更新予定日 |
2025年10月28日 |
ケータイ用バーコード |
- スマートフォンでこの物件を見る
- スマートフォンからもこの物件をご覧になれます。
|
※「-」と表示されている項目については、情報提供会社にご確認ください。
周辺施設 |
みずほ銀行船場支店 |
距離 |
220m |
写真を見る |
周辺施設 |
御堂筋本町郵便局 |
距離 |
280m |
写真を見る |
周辺施設 |
大阪市中央区役所 |
距離 |
1150m |
写真を見る |
周辺施設 |
FRESCO(フレスコ) ミニ 御堂筋本町店 |
距離 |
140m |
写真を見る |
周辺施設 |
Seria(セリア) 紀伊國屋本町店 |
距離 |
400m |
写真を見る |
周辺施設 |
ダイコクドラッグ 四ツ橋本町店 |
距離 |
530m |
写真を見る |
周辺施設 |
ノムラクリーニング 瓦町店 |
距離 |
680m |
写真を見る |
周辺施設 |
コスモ石油 久太郎町 |
距離 |
750m |
写真を見る |
ここから簡単にお問い合わせをすることができます。
(SSLでの暗号化での送信を希望されるお客さまは
こちら
よりお問い合わせください)
お問い合わせを行う前に
「個人情報の取り扱いについて」を必ずお読みください。
「個人情報の取り扱いについて」に同意いただいた場合は「上記にご同意の上 確認画面へ進む」のボタンをクリックしてください。
個人情報の取り扱いについて
皆さまが送付された個人情報はアットホーム(株)のサーバを経由し、お問い合わせ先の不動産会社にメールまたはFAXにて転送されるためアットホーム(株)にも保管されます。アットホーム(株)で保管された個人情報の取り扱いについては、【こちら】をご覧ください。
また、本画面でご記入いただいた個人情報は、お問い合わせ先の不動産会社でも保管します。 お問い合わせ先の不動産会社が保管する個人情報の取り扱いについては、不動産会社に直接お問い合わせください。
大阪府知事免許(3)第58557号 |
---|
- 交通:
- 地下鉄四つ橋線/四ツ橋駅 徒歩1分
- 大阪府大阪市西区北堀江1丁目2-19 アステリオ北堀江ザ・メトロタワー3F
- TEL:
- 06-6578-2223
- FAX:
- 06-6578-2228
- 所属団体:
- (公社)全日本不動産協会会員(公社)近畿地区不動産公正取引協議会加盟
取引態様:仲介  - 50109899
|
- スマートフォンで
この不動産会社を見る

|
- 提携サイト等より掲載されている物件情報につきましては、不動産会社詳細情報にリンクされていないものがあります。
- 物件に関するお問合せは、物件詳細ページの「情報提供会社」に表示されている不動産会社へ直接お願いいたします。
- 間取図は、現況を優先させていただきます。
- 映像は物件の一部を撮影したものです。物件の契約にあたっての最終判断はご自身の判断に基づいて行ってください。
- 仲介手数料について

アットホームは物件情報の適正化に努めております。
内容に誤りがある場合にはこちらへご連絡ください。