大阪府大阪市中央区南船場3丁目(心斎橋駅)の貸店舗:物件詳細
交通 所在地 |
駅徒歩 |
賃料 管理費等 |
敷金/保証金 礼金 |
使用部分面積 坪数/坪単価 |
物件種目 築年月 |
|
地下鉄御堂筋線/心斎橋
大阪府大阪市中央区南船場3丁目
|
3分
|
115.9752万円
なし
|
なし / 1,127.664万円
なし
|
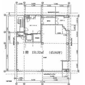
151.54m²
45.84坪/2.53万円
|
貸店舗・事務所
2001年3月(築25年)
|
|
間取図
|
外観
|
<
その他の画像
>
|
| 交通 | 地下鉄御堂筋線 心斎橋駅 徒歩3分 |
|---|
| その他の交通 | 地下鉄長堀鶴見緑地線 長堀橋駅 徒歩5分 地下鉄四つ橋線 四ツ橋駅 徒歩6分 |
| 所在地 |
大阪府大阪市中央区南船場3丁目
|
| 物件種目 |
貸店舗・事務所 |
| 賃料 |
115.9752万円 |
管理費等 |
なし |
| 敷金 / 保証金 |
なし / 1,127.664万円 |
礼金 |
なし |
| 敷引 |
- |
坪単価 |
2.53万円 |
| 保証金償却 |
- |
権利金 |
- |
| 造作譲渡 |
- |
その他一時金 |
なし |
| 維持費等 |
- |
保険等 |
- |
| クレジットカード決済 |
初期費用可 |
| 使用部分面積 |
151.54m² |
坪数 |
45.84坪 |
| 築年月 |
2001年3月(築25年)
|
階建 / 階 |
9階建 / 1階 |
| 駐車場 |
近有 33,000円/月 |
バイク置き場 |
近有 |
| 駐輪場 |
有 |
土地面積 |
- |
| 接道状況 |
-
|
用途地域 |
- |
| 間取り |
ワンルーム |
建物構造 |
鉄骨造 |
| アピールポイント |
当店では店舗、事務所、SOHOなど、お仕事でご利用できる物件を幅広くご紹介しております。どんな業種でも一度ご相談ください(^^♪常に新鮮な情報をお届けし、お客様にピッタリの物件をご提案致します!弊社ではネット上に載っている物件だけではなく、弊社ならではのネットワークがございますので物件情報は他社には負けません☆
公式LINEでのご対応も可能となっておりますので、煩わしいメール対応は必要ありません。お気軽にご連絡ください(^^♪
コロナ対策として、オンライン接客、内見、重説も対応可能となっております。
また掲載写真以外の室内、周辺情報もご要望頂けると写真、動画でお送りします♪
店舗、事務所のお探しは是非ミニミニ桜川店へお問合せ下さい。
TEL:06-6567-3232
LINE@ID:@jxw7332a
↑↑↑お名前とお探しの物件の詳細をお送りください↑↑↑
|
| 建物名・部屋番号 |
1F |
| リフォーム履歴 |
- |
| リノベーション履歴 |
- |
| 特記事項 |
スケルトン、土曜日利用可、土日・祝日利用可、1フロア1テナント、角部屋、天井高2.5M以上、IT重説対応物件 |
| 備考 |
管理形態/管理員の勤務形態:-/-
IT重説対応物件
当店では店舗、事務所、SOHOなど、お仕事でご利用できる物件を幅広くご紹介しております。どんな業種でも一度ご相談ください(^^♪常に新鮮な情報をお届けし、お客様にピッタリの物件をご提案致します!弊社ではネット上に載っている物件だけではなく、弊社ならではのネットワークがございますので物件情報は他社には負けません☆
公式LINEでのご対応も可能となっておりますので、煩わしいメール対応は必要ありません。お気軽にご連絡ください(^^♪
コロナ対策として、オンライン接客、内見、重説も対応可能となっております。
また掲載写真以外の室内、周辺情報もご要望頂けると写真、動画でお送りします♪
店舗、事務所のお探しは是非ミニミニ桜川店へお問合せ下さい。
TEL:06-6567-3232
LINE@ID:@jxw7332a
↑↑↑お名前とお探しの物件の詳細をお送りください↑↑↑
防犯カメラが設置されており、トラブルや犯罪への不安も和らぎます。初期費用はカードで決済いただけます。賃料は115.9752万円です。近隣に駐車場があるので、遠くまで駐車しに行かなくても大丈夫です。礼金不要というメ
|
| エネルギー消費性能 |
- |
| 断熱性能 |
- |
| 目安光熱費 |
- |
| バス・トイレ |
- |
| キッチン |
- |
| 設備・サービス |
看板取付スペースあり
個別空調、オートロック、防犯カメラ、動力あり、冷房、インターネット対応、光ファイバー |
| その他 |
エレベーター |
| 契約期間 |
2年 |
条件等 |
- |
| 引渡可能時期 |
相談 |
現況 |
空 |
| 仲介手数料 |
1ヶ月 |
|
|
| 更新料 |
- |
物件番号 |
1071541693 |
| 情報公開日 |
2026年1月9日 |
次回更新予定日 |
2026年2月6日 |
| ケータイ用バーコード |
- スマートフォンでこの物件を見る
- スマートフォンからもこの物件をご覧になれます。
|
※「-」と表示されている項目については、情報提供会社にご確認ください。
| 周辺施設 |
船場ちとせ保育園 |
| 距離 |
1026m |
写真を見る |
| 周辺施設 |
堀江敬愛保育園 |
| 距離 |
1130m |
写真を見る |
| 周辺施設 |
イオンフードスタイル 四ツ橋店 |
| 距離 |
688m |
写真を見る |
| 周辺施設 |
foodium 東心斎橋 |
| 距離 |
830m |
写真を見る |
| 周辺施設 |
ライフ 堺筋本町店 |
| 距離 |
915m |
写真を見る |
| 周辺施設 |
セブン-イレブン ウエストタウン店 |
| 距離 |
435m |
写真を見る |
| 周辺施設 |
新阿波座公園 |
| 距離 |
1098m |
写真を見る |
ここから簡単にお問い合わせをすることができます。
(SSLでの暗号化での送信を希望されるお客さまは
こちら
よりお問い合わせください)
お問い合わせを行う前に
「個人情報の取り扱いについて」を必ずお読みください。
「個人情報の取り扱いについて」に同意いただいた場合は「上記にご同意の上 確認画面へ進む」のボタンをクリックしてください。
個人情報の取り扱いについて
皆さまが送付された個人情報はアットホーム(株)のサーバを経由し、お問い合わせ先の不動産会社にメールまたはFAXにて転送されるためアットホーム(株)にも保管されます。アットホーム(株)で保管された個人情報の取り扱いについては、【こちら】をご覧ください。
また、本画面でご記入いただいた個人情報は、お問い合わせ先の不動産会社でも保管します。 お問い合わせ先の不動産会社が保管する個人情報の取り扱いについては、不動産会社に直接お問い合わせください。
大阪府知事免許(6)第47283号 |
|---|
- 交通:
- 地下鉄千日前線/桜川駅 徒歩1分
- 大阪府大阪市浪速区幸町1丁目3-19
- TEL:
- 06-6567-3232
- FAX:
- 06-6567-3333
- 所属団体:
- (一社)大阪府宅地建物取引業協会会員(公社)近畿地区不動産公正取引協議会加盟
取引態様:仲介  - 50022071
|
- スマートフォンで
この不動産会社を見る

|
- 提携サイト等より掲載されている物件情報につきましては、不動産会社詳細情報にリンクされていないものがあります。
- 物件に関するお問合せは、物件詳細ページの「情報提供会社」に表示されている不動産会社へ直接お願いいたします。
- 間取図は、現況を優先させていただきます。
- 映像は物件の一部を撮影したものです。物件の契約にあたっての最終判断はご自身の判断に基づいて行ってください。
- 仲介手数料について

アットホームは物件情報の適正化に努めております。
内容に誤りがある場合にはこちらへご連絡ください。