東京都中央区日本橋小網町(人形町駅)の貸店舗:物件詳細
交通 所在地 |
駅徒歩 |
賃料 管理費等 |
敷金/保証金 礼金 |
使用部分面積 坪数/坪単価 |
物件種目 築年月 |
|
東京メトロ日比谷線/人形町
東京都中央区日本橋小網町
|
6分
|
152.9099万円
なし
|
なし / 12ヶ月
なし
|
270.31m²
81.76坪/1.8701万円
|
貸店舗・事務所
1983年2月(築42年11ヶ月)
|
|
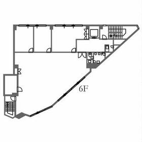
間取図
間取図
|
外観
外観ほか
|
その他の画像
|
| 交通 | 東京メトロ日比谷線 人形町駅 徒歩6分 |
|---|
| その他の交通 | 東京メトロ東西線 茅場町駅 徒歩7分 東京メトロ半蔵門線 水天宮前駅 徒歩7分 |
| 所在地 |
東京都中央区日本橋小網町
|
| 物件種目 |
貸店舗・事務所 |
| 賃料 |
152.9099万円 |
管理費等 |
なし |
| 敷金 / 保証金 |
なし / 12ヶ月 |
礼金 |
なし |
| 敷引 |
- |
坪単価 |
1.8701万円 |
| 保証金償却 |
解約時1.1ヶ月 |
権利金 |
- |
| 造作譲渡 |
- |
その他一時金 |
なし |
| 維持費等 |
- |
保険等 |
- |
| 使用部分面積 |
270.31m² |
坪数 |
81.76坪 |
| 築年月 |
1983年2月(築42年11ヶ月)
|
階建 / 階 |
地上8階地下1階建 / 6階 |
| 駐車場 |
- |
バイク置き場 |
- |
| 駐輪場 |
- |
土地面積 |
- |
| 接道状況 |
-
|
用途地域 |
- |
| 間取り |
- |
建物構造 |
SRC |
| アピールポイント |
ラ・ベール日本橋は人形町駅A2出口から広がるビジネスエリアに所在する8階建て地下1階の商業・オフィス複合ビルです。本物件は新大橋通りから一歩入った通りに建っており、街並みに調和して建つスタンダードなデザイン、本社や支店設置先としてお勧めできる建物です。人形町駅からこの物件周辺にはローソン 日本橋蛎殻町一丁目店79m、2023年8月時点があります。 |
| 建物名・部屋番号 |
ラ・ベール日本橋 |
| リフォーム履歴 |
- |
| リノベーション履歴 |
- |
| 特記事項 |
- |
| 備考 |
管理形態/管理員の勤務形態:-/-
所属階6階。
|
| エネルギー消費性能 |
- |
| 断熱性能 |
- |
| 目安光熱費 |
- |
| バス・トイレ |
共用部分に男女別トイレあり |
| キッチン |
- |
| 設備・サービス |
個別空調、エアコン |
| その他 |
エレベーター |
| 契約期間 |
3年 |
条件等 |
定期借家 |
| 引渡可能時期 |
即時 |
現況 |
空 |
| 更新料 |
なし |
物件番号 |
1082261540 |
| 情報公開日 |
2023年9月26日 |
次回更新予定日 |
2025年12月19日 |
| ケータイ用バーコード |
- スマートフォンでこの物件を見る
- スマートフォンからもこの物件をご覧になれます。
|
※「-」と表示されている項目については、情報提供会社にご確認ください。
ここから簡単にお問い合わせをすることができます。
(SSLでの暗号化での送信を希望されるお客さまは
こちら
よりお問い合わせください)
お問い合わせを行う前に
「個人情報の取り扱いについて」を必ずお読みください。
「個人情報の取り扱いについて」に同意いただいた場合は「上記にご同意の上 確認画面へ進む」のボタンをクリックしてください。
個人情報の取り扱いについて
皆さまが送付された個人情報はアットホーム(株)のサーバを経由し、お問い合わせ先の不動産会社にメールまたはFAXにて転送されるためアットホーム(株)にも保管されます。アットホーム(株)で保管された個人情報の取り扱いについては、【こちら】をご覧ください。
また、本画面でご記入いただいた個人情報は、お問い合わせ先の不動産会社でも保管します。 お問い合わせ先の不動産会社が保管する個人情報の取り扱いについては、不動産会社に直接お問い合わせください。
国土交通大臣免許(8)第4372号 |
|---|
- 交通:
- 東京メトロ日比谷線/六本木駅 徒歩3分
- 東京都港区西麻布1丁目2-7 KN127ビル9F
- TEL:
- 03-5413-5613
- FAX:
- 03-5413-5610
- 所属団体:
- (一社)不動産流通経営協会会員(公社)首都圏不動産公正取引協議会加盟
取引態様:仲介  - 00140337
|
- スマートフォンで
この不動産会社を見る

|
- 提携サイト等より掲載されている物件情報につきましては、不動産会社詳細情報にリンクされていないものがあります。
- 物件に関するお問合せは、物件詳細ページの「情報提供会社」に表示されている不動産会社へ直接お願いいたします。
- 間取図は、現況を優先させていただきます。
- 映像は物件の一部を撮影したものです。物件の契約にあたっての最終判断はご自身の判断に基づいて行ってください。
- 仲介手数料について

アットホームは物件情報の適正化に努めております。
内容に誤りがある場合にはこちらへご連絡ください。