埼玉県狭山市中央3丁目(狭山市駅)の貸店舗:物件詳細
交通 所在地 |
駅徒歩 |
賃料 管理費等 |
敷金/保証金 礼金 |
使用部分面積 坪数/坪単価 |
物件種目 築年月 |
|
西武新宿線/狭山市
埼玉県狭山市中央3丁目
|
18分
|
13.2万円
3,300円
|
6ヶ月 / なし
1ヶ月
|
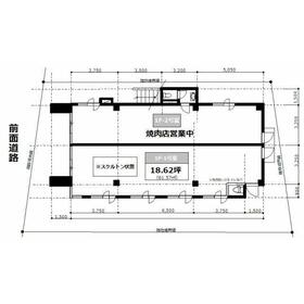
61.57m²
18.62坪/0.7088万円
|
貸店舗・事務所
1990年10月(築35年8ヶ月)
|
|
間取図
|
外観
|
<
その他の画像
>
|
| 交通 | 西武新宿線 狭山市駅 徒歩18分 |
|---|
| その他の交通 | 西武新宿線 新狭山駅 徒歩32分 西武新宿線 入曽駅 徒歩38分 |
| 所在地 |
埼玉県狭山市中央3丁目
|
| 物件種目 |
貸店舗・事務所 |
| 賃料 |
13.2万円 |
管理費等 |
3,300円 |
| 敷金 / 保証金 |
6ヶ月 / なし |
礼金 |
1ヶ月 |
| 敷引 |
- |
坪単価 |
0.7088万円 |
| 保証金償却 |
解約時1ヶ月 |
権利金 |
- |
| 造作譲渡 |
- |
その他一時金 |
なし |
| 維持費等 |
- |
保険等 |
- |
| 使用部分面積 |
61.57m² |
坪数 |
18.62坪 |
| 築年月 |
1990年10月(築35年8ヶ月)
|
階建 / 階 |
3階建 / 1階 |
| 駐車場 |
- |
バイク置き場 |
- |
| 駐輪場 |
- |
土地面積 |
- |
| 接道状況 |
-
|
用途地域 |
- |
| 間取り |
- |
建物構造 |
鉄骨造 |
| アピールポイント |
こんにちは!フロンティアホームです♪
新しい一歩を応援する、魅力的な店舗・事務所物件をご紹介します。 こちらは西武新宿線「狭山市駅」からアクセス可能な、新規開業にぴったりの空間です。
1階の1号室は18.62坪の広さがあり、スケルトン状態での引き渡しとなるため、お客様の理想のレイアウトを自由に形にできます。飲食店や美容室、学習塾など、幅広い業種でご利用いただけます。隣接する駐車場も確保されており、お車でお越しのお客様にも便利です。
明るい未来を描けるこの場所で、あなたの夢を実現してみませんか。 ご興味をお持ちいただけましたら、ぜひお気軽にお問い合わせください! |
| 建物名・部屋番号 |
ヴィラ・プルメリア |
| リフォーム履歴 |
- |
| リノベーション履歴 |
- |
| 特記事項 |
スケルトン |
| 備考 |
賃貸保証等:加入要(エポスカード 初回保証料が総額賃料の100%、月額保証料1000円。大手法人契約の場合は保証会社は不要。)
管理形態/管理員の勤務形態:-/-
詳細は弊社図面参照。
スケルトン引き渡し・明け渡し。/6ヶ月前解約予告。/飲食店可。/隣地駐車場 月額7500円(税別)3台分確保しています。/深夜営業は不可とする。/看板・トイレは残置物扱いとする。/飲食店可。/1年未満での解約・退去する場合には、賃料・共益費の1ヶ月分を支払うこと。
|
| エネルギー消費性能 |
- |
| 断熱性能 |
- |
| 目安光熱費 |
- |
| バス・トイレ |
トイレ |
| キッチン |
- |
| 設備・サービス |
- |
| その他 |
- |
| 契約期間 |
3年 |
条件等 |
- |
| 引渡可能時期 |
相談 |
現況 |
空 |
| 更新料 |
新賃料 1ヶ月 |
物件番号 |
1083970198 |
| 情報公開日 |
2025年4月21日 |
次回更新予定日 |
2026年5月17日 |
| ケータイ用バーコード |
- スマートフォンでこの物件を見る
- スマートフォンからもこの物件をご覧になれます。
|
※「-」と表示されている項目については、情報提供会社にご確認ください。
| 周辺施設 |
狭山郵便局 |
| 距離 |
1039m |
写真を見る |
| 周辺施設 |
ローソン 狭山富士見二丁目店 |
| 距離 |
1273m |
写真を見る |
| 周辺施設 |
maruetsu(マルエツ) 入間川店 |
| 距離 |
107m |
写真を見る |
ここから簡単にお問い合わせをすることができます。
(SSLでの暗号化での送信を希望されるお客さまは
こちら
よりお問い合わせください)
お問い合わせを行う前に
「個人情報の取り扱いについて」を必ずお読みください。
「個人情報の取り扱いについて」に同意いただいた場合は「上記にご同意の上 確認画面へ進む」のボタンをクリックしてください。
個人情報の取り扱いについて
皆さまが送付された個人情報はアットホーム(株)のサーバを経由し、お問い合わせ先の不動産会社にメールまたはFAXにて転送されるためアットホーム(株)にも保管されます。アットホーム(株)で保管された個人情報の取り扱いについては、【こちら】をご覧ください。
また、本画面でご記入いただいた個人情報は、お問い合わせ先の不動産会社でも保管します。 お問い合わせ先の不動産会社が保管する個人情報の取り扱いについては、不動産会社に直接お問い合わせください。
国土交通大臣免許(3)第8796号 |
|---|
- 交通:
- 西武池袋線/所沢駅 徒歩4分
- 埼玉県所沢市日吉町28-7
- TEL:
- 04-2929-2231
- FAX:
- 04-2929-2232
- 所属団体:
- (公社)全日本不動産協会会員(公社)首都圏不動産公正取引協議会加盟
取引態様:仲介  - 00532246
|
- スマートフォンで
この不動産会社を見る

|
- 提携サイト等より掲載されている物件情報につきましては、不動産会社詳細情報にリンクされていないものがあります。
- 物件に関するお問合せは、物件詳細ページの「情報提供会社」に表示されている不動産会社へ直接お願いいたします。
- 間取図は、現況を優先させていただきます。
- 映像は物件の一部を撮影したものです。物件の契約にあたっての最終判断はご自身の判断に基づいて行ってください。
- 仲介手数料について

アットホームは物件情報の適正化に努めております。
内容に誤りがある場合にはこちらへご連絡ください。