京都府京都市下京区大坂町(五条駅)の貸店舗:物件詳細
交通 所在地 |
駅徒歩 |
賃料 管理費等 |
敷金/保証金 礼金 |
使用部分面積 坪数/坪単価 |
物件種目 築年月 |
|
地下鉄烏丸線/五条
京都府京都市下京区大坂町
|
2分
|
30.7076万円
65,802円
|
なし / 12ヶ月
なし
|
65.93m²
19.94坪/1.5398万円
|
貸店舗・事務所
1980年3月(築45年10ヶ月)
|
|
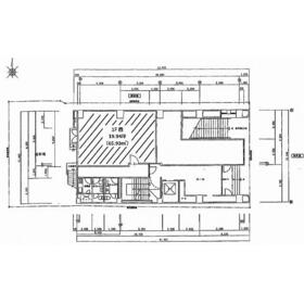
間取図
|
外観
|
その他の画像
|
| 交通 | 地下鉄烏丸線 五条駅 徒歩2分 |
|---|
| その他の交通 | 近鉄京都線 京都駅 徒歩13分 |
| 所在地 |
京都府京都市下京区大坂町
|
| 物件種目 |
貸店舗・事務所 |
| 賃料 |
30.7076万円 |
管理費等 |
65,802円 |
| 敷金 / 保証金 |
なし / 12ヶ月 |
礼金 |
なし |
| 敷引 |
実費 |
坪単価 |
1.5398万円 |
| 保証金償却 |
- |
権利金 |
- |
| 造作譲渡 |
- |
その他一時金 |
なし |
| 維持費等 |
- |
保険等 |
- |
| 使用部分面積 |
65.93m² |
坪数 |
19.94坪 |
| 築年月 |
1980年3月(築45年10ヶ月)
|
階建 / 階 |
地上8階地下1階建 / 1階 |
| 駐車場 |
- |
バイク置き場 |
- |
| 駐輪場 |
- |
土地面積 |
- |
| 接道状況 |
-
|
用途地域 |
- |
| 間取り |
- |
建物構造 |
SRC |
| アピールポイント |
地下鉄「五条」駅直結(8番出口)! 1階西区画のテナントです(奥側の店舗)◎ 事務所、物販店、サービス店舗等ご相談可能です♪(飲食店不可) |
| 建物名・部屋番号 |
三善ビル 1階西区画 |
| リフォーム履歴 |
- |
| リノベーション履歴 |
- |
| 特記事項 |
飲食店不可 |
| 備考 |
管理形態/管理員の勤務形態:-/-
契約金要相談/電気料金:賃貸借物件内(各室メーターを計り算出)・空調機及び共用部(メーターを計り算出)/水道料金:2ヶ月毎(水道料金額請求額を人数で割る)/塵芥処理費:8,000円/月 ※産業廃棄物、発泡スチロール等を含む/清掃費?:30,000円/年 (15,000円/1回×2回 年2回) ※窓拭き・サッシ枠清掃/清掃費?:30,000円/年 (15,000円/1回×2回) ※業種による空調機、空調フィルター及び換気扇フィルター清掃/セコム機械警備費:7,000円/月 ※セコムカード初回5枚無料貸与/※セコムカード初回5枚無料貸与(追加の場合800円/枚)/エレベーター、空調、トイレ、システムキッチン、エアコン、光ファイバー有、OAフロア/2020年空調更新/入退館時間:24時間可能
|
| エネルギー消費性能 |
- |
| 断熱性能 |
- |
| 目安光熱費 |
- |
| バス・トイレ |
- |
| キッチン |
- |
| 設備・サービス |
空調機あり |
| その他 |
- |
| 契約期間 |
5年 |
条件等 |
- |
| 引渡可能時期 |
相談 |
現況 |
空 |
| 更新料 |
なし |
物件番号 |
1086516985 |
| 情報公開日 |
2025年7月18日 |
次回更新予定日 |
2025年12月17日 |
| ケータイ用バーコード |
- スマートフォンでこの物件を見る
- スマートフォンからもこの物件をご覧になれます。
|
※「-」と表示されている項目については、情報提供会社にご確認ください。
ここから簡単にお問い合わせをすることができます。
(SSLでの暗号化での送信を希望されるお客さまは
こちら
よりお問い合わせください)
お問い合わせを行う前に
「個人情報の取り扱いについて」を必ずお読みください。
「個人情報の取り扱いについて」に同意いただいた場合は「上記にご同意の上 確認画面へ進む」のボタンをクリックしてください。
個人情報の取り扱いについて
皆さまが送付された個人情報はアットホーム(株)のサーバを経由し、お問い合わせ先の不動産会社にメールまたはFAXにて転送されるためアットホーム(株)にも保管されます。アットホーム(株)で保管された個人情報の取り扱いについては、【こちら】をご覧ください。
また、本画面でご記入いただいた個人情報は、お問い合わせ先の不動産会社でも保管します。 お問い合わせ先の不動産会社が保管する個人情報の取り扱いについては、不動産会社に直接お問い合わせください。
京都府知事免許(6)第10749号 |
|---|
- 交通:
- 地下鉄烏丸線/四条駅 徒歩4分
- 京都府京都市下京区東洞院通四条下る元悪王子町43-12
- TEL:
- 075-708-3563
- FAX:
- 075-708-3564
- 所属団体:
- (公財)日本賃貸住宅管理協会会員(公社)京都府宅地建物取引業協会会員(公社)近畿地区不動産公正取引協議会加盟
取引態様:仲介  - 50108641
|
- スマートフォンで
この不動産会社を見る

|
- 提携サイト等より掲載されている物件情報につきましては、不動産会社詳細情報にリンクされていないものがあります。
- 物件に関するお問合せは、物件詳細ページの「情報提供会社」に表示されている不動産会社へ直接お願いいたします。
- 間取図は、現況を優先させていただきます。
- 映像は物件の一部を撮影したものです。物件の契約にあたっての最終判断はご自身の判断に基づいて行ってください。
- 仲介手数料について

アットホームは物件情報の適正化に努めております。
内容に誤りがある場合にはこちらへご連絡ください。