大阪府東大阪市小阪1丁目(河内小阪駅)の貸店舗:物件詳細
交通 所在地 |
駅徒歩 |
賃料 管理費等 |
敷金/保証金 礼金 |
使用部分面積 坪数/坪単価 |
物件種目 築年月 |
近鉄奈良線/河内小阪
大阪府東大阪市小阪1丁目
|
2分
|
15.84万円
なし
|
なし / なし
3ヶ月
|
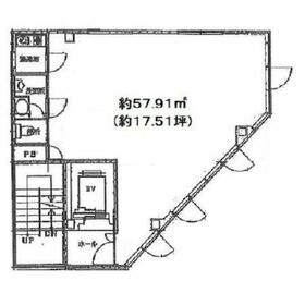
57.91m²
17.51坪/0.9043万円
|
貸店舗・事務所
1990年11月(築35年)
|
間取図
|
外観
|
その他の画像
|
交通 | 近鉄奈良線 河内小阪駅 徒歩2分 |
---|
その他の交通 | 近鉄奈良線 河内永和駅 徒歩9分 JRおおさか東線 JR河内永和駅 徒歩10分 |
所在地 |
大阪府東大阪市小阪1丁目
|
物件種目 |
貸店舗・事務所 |
賃料 |
15.84万円 |
管理費等 |
なし |
敷金 / 保証金 |
なし / なし |
礼金 |
3ヶ月 |
敷引 |
- |
坪単価 |
0.9043万円 |
保証金償却 |
- |
権利金 |
- |
造作譲渡 |
- |
その他一時金 |
なし |
維持費等 |
- |
保険等 |
- |
使用部分面積 |
57.91m² |
坪数 |
17.51坪 |
築年月 |
1990年11月(築35年)
|
階建 / 階 |
6階建 / 5階 |
駐車場 |
- |
バイク置き場 |
- |
駐輪場 |
- |
土地面積 |
- |
接道状況 |
-
|
用途地域 |
- |
間取り |
- |
建物構造 |
鉄骨造 |
アピールポイント |
■リノベスト不動産■
□リフォーム・リノベーションのご相談も承ります!
□店舗の内装工事もぜひご相談下さい。
□特殊な業種様も大歓迎♪
□土日祝営業中
□地元密着!
□女性スタッフ対応
□他社では紹介できない物件もご紹介可能
お気軽にお問い合わせください♪
|
建物名・部屋番号 |
エイショウ興産ビル |
リフォーム履歴 |
- |
リノベーション履歴 |
- |
特記事項 |
飲食店可 |
備考 |
管理形態/管理員の勤務形態:-/-
・USEN引落し
・賃料保証料:賃料1カ月?税別?/初回
・口座引落手数料/440円?月額?
・火災保険料加入義務/後日見積り
|
エネルギー消費性能 |
- |
断熱性能 |
- |
目安光熱費 |
- |
バス・トイレ |
トイレ |
キッチン |
- |
設備・サービス |
- |
その他 |
- |
契約期間 |
2年 |
条件等 |
- |
引渡可能時期 |
即時 |
現況 |
空 |
更新料 |
- |
物件番号 |
1100014102 |
情報公開日 |
2025年9月1日 |
次回更新予定日 |
2025年10月29日 |
ケータイ用バーコード |
- スマートフォンでこの物件を見る
- スマートフォンからもこの物件をご覧になれます。
|
※「-」と表示されている項目については、情報提供会社にご確認ください。
ここから簡単にお問い合わせをすることができます。
(SSLでの暗号化での送信を希望されるお客さまは
こちら
よりお問い合わせください)
お問い合わせを行う前に
「個人情報の取り扱いについて」を必ずお読みください。
「個人情報の取り扱いについて」に同意いただいた場合は「上記にご同意の上 確認画面へ進む」のボタンをクリックしてください。
個人情報の取り扱いについて
皆さまが送付された個人情報はアットホーム(株)のサーバを経由し、お問い合わせ先の不動産会社にメールまたはFAXにて転送されるためアットホーム(株)にも保管されます。アットホーム(株)で保管された個人情報の取り扱いについては、【こちら】をご覧ください。
また、本画面でご記入いただいた個人情報は、お問い合わせ先の不動産会社でも保管します。 お問い合わせ先の不動産会社が保管する個人情報の取り扱いについては、不動産会社に直接お問い合わせください。
大阪府知事免許(1)第63875号 |
---|
- 交通:
- 近鉄大阪線/布施駅 徒歩3分
- 大阪府東大阪市長堂1丁目2-3 布施駅前ナワショウビル2階
- TEL:
- 06-4307-3173
- FAX:
- 06-4307-3175
- 所属団体:
- (公社)全日本不動産協会会員(一社)全国不動産協会会員(公社)近畿地区不動産公正取引協議会加盟
取引態様:仲介  - 50109859
|
- スマートフォンで
この不動産会社を見る

|
- 提携サイト等より掲載されている物件情報につきましては、不動産会社詳細情報にリンクされていないものがあります。
- 物件に関するお問合せは、物件詳細ページの「情報提供会社」に表示されている不動産会社へ直接お願いいたします。
- 間取図は、現況を優先させていただきます。
- 映像は物件の一部を撮影したものです。物件の契約にあたっての最終判断はご自身の判断に基づいて行ってください。
- 仲介手数料について

アットホームは物件情報の適正化に努めております。
内容に誤りがある場合にはこちらへご連絡ください。