東京都世田谷区梅丘1丁目(梅ヶ丘駅)の貸店舗:物件詳細
交通 所在地 |
駅徒歩 |
賃料 管理費等 |
敷金/保証金 礼金 |
使用部分面積 坪数/坪単価 |
物件種目 築年月 |
|
小田急小田原線/梅ヶ丘
東京都世田谷区梅丘1丁目
|
1分
|
77万円
なし
|
なし / 10ヶ月
2ヶ月
|
172.47m²
52.17坪/1.4759万円
|
貸店舗
1988年3月(築37年10ヶ月)
|
|
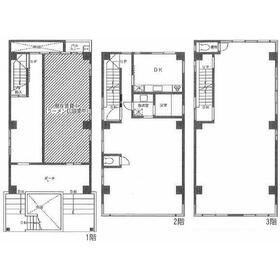
間取図
|
外観
|
<
その他の画像
>
|
| 交通 | 小田急小田原線 梅ヶ丘駅 徒歩1分 |
|---|
| その他の交通 | 小田急小田原線 豪徳寺駅 徒歩9分 東急世田谷線 山下駅 徒歩10分 |
| 所在地 |
東京都世田谷区梅丘1丁目
|
| 物件種目 |
貸店舗 |
| 賃料 |
77万円 |
管理費等 |
なし |
| 敷金 / 保証金 |
なし / 10ヶ月 |
礼金 |
2ヶ月 |
| 敷引 |
- |
坪単価 |
1.4759万円 |
| 保証金償却 |
解約時2ヶ月 |
権利金 |
- |
| 造作譲渡 |
- |
その他一時金 |
なし |
| 維持費等 |
- |
保険等 |
- |
| 使用部分面積 |
172.47m² |
坪数 |
52.17坪 |
| 築年月 |
1988年3月(築37年10ヶ月)
|
階建 / 階 |
地上3階地下1階建 |
| 駐車場 |
- |
バイク置き場 |
- |
| 駐輪場 |
- |
土地面積 |
- |
| 接道状況 |
-
|
用途地域 |
近隣商業 |
| 間取り |
- |
建物構造 |
RC |
| アピールポイント |
駅徒歩1分&商店街沿いの好立地物件です♪ |
| 建物名・部屋番号 |
小泉ビル |
| リフォーム履歴 |
- |
| リノベーション履歴 |
- |
| 特記事項 |
角部屋、IT重説対応物件 |
| 備考 |
賃貸保証等:加入要(初回保証料:総賃料の100% 年間保証料:総賃料の7% 口座引落手数料:330円/月)
管理形態/管理員の勤務形態:-/-
主要採光面:南東向き
IT重説対応物件
※定期借家契約5年間(再契約相談型)※再契約時事務手数料有:新賃料の25%(税別)※屋上に約25m2の専用倉庫あり※検査済証なし
その他費用コメント:退去時原状費用は借主負担となります
|
| エネルギー消費性能 |
- |
| 断熱性能 |
- |
| 目安光熱費 |
- |
| バス・トイレ |
シャワー、トイレ |
| キッチン |
- |
| 設備・サービス |
都市ガス |
| その他 |
- |
| 契約期間 |
5年 |
条件等 |
定期借家 |
| 引渡可能時期 |
相談 |
現況 |
空 |
| 仲介手数料 |
1ヶ月 |
|
|
| 更新料 |
新賃料 2ヶ月 |
物件番号 |
1127539005 |
| 情報公開日 |
2025年11月17日 |
次回更新予定日 |
2025年12月15日 |
| ケータイ用バーコード |
- スマートフォンでこの物件を見る
- スマートフォンからもこの物件をご覧になれます。
|
※「-」と表示されている項目については、情報提供会社にご確認ください。
| 周辺施設 |
セブンイレブン 世田谷梅ヶ丘駅前店 |
| 距離 |
68m |
写真を見る |
| 周辺施設 |
ココカラファイン梅ヶ丘駅前店 |
| 距離 |
83m |
写真を見る |
| 周辺施設 |
業務スーパー 梅ヶ丘店 |
| 距離 |
41m |
写真を見る |
| 周辺施設 |
梅ヶ丘駅前郵便局 |
| 距離 |
218m |
写真を見る |
| 周辺施設 |
浜中歯科クリニック |
| 距離 |
10m |
写真を見る |
| 周辺施設 |
マクドナルド 梅ヶ丘駅前店 |
| 距離 |
80m |
写真を見る |
ここから簡単にお問い合わせをすることができます。
(SSLでの暗号化での送信を希望されるお客さまは
こちら
よりお問い合わせください)
お問い合わせを行う前に
「個人情報の取り扱いについて」を必ずお読みください。
「個人情報の取り扱いについて」に同意いただいた場合は「上記にご同意の上 確認画面へ進む」のボタンをクリックしてください。
個人情報の取り扱いについて
皆さまが送付された個人情報はアットホーム(株)のサーバを経由し、お問い合わせ先の不動産会社にメールまたはFAXにて転送されるためアットホーム(株)にも保管されます。アットホーム(株)で保管された個人情報の取り扱いについては、【こちら】をご覧ください。
また、本画面でご記入いただいた個人情報は、お問い合わせ先の不動産会社でも保管します。 お問い合わせ先の不動産会社が保管する個人情報の取り扱いについては、不動産会社に直接お問い合わせください。
東京都知事免許(8)第62780号 |
|---|
- 交通:
- 小田急小田原線/梅ヶ丘駅 徒歩1分
- 東京都世田谷区梅丘1丁目21-7 梅ケ丘駅前ビル1F
- TEL:
- 03-5799-6633
- FAX:
- 03-5450-1144
- 所属団体:
- (公社)全日本不動産協会会員(公社)首都圏不動産公正取引協議会加盟
取引態様:仲介  - 00510989
|
- スマートフォンで
この不動産会社を見る

|
- 提携サイト等より掲載されている物件情報につきましては、不動産会社詳細情報にリンクされていないものがあります。
- 物件に関するお問合せは、物件詳細ページの「情報提供会社」に表示されている不動産会社へ直接お願いいたします。
- 間取図は、現況を優先させていただきます。
- 映像は物件の一部を撮影したものです。物件の契約にあたっての最終判断はご自身の判断に基づいて行ってください。
- 仲介手数料について

アットホームは物件情報の適正化に努めております。
内容に誤りがある場合にはこちらへご連絡ください。