奈良県生駒市元町1丁目(生駒駅)の貸店舗:物件詳細
交通 所在地 |
駅徒歩 |
賃料 管理費等 |
敷金/保証金 礼金 |
使用部分面積 坪数/坪単価 |
物件種目 築年月 |
|
近鉄けいはんな線/生駒
奈良県生駒市元町1丁目
|
3分
|
44万円
44,000円
|
4ヶ月 / なし
88万円
|
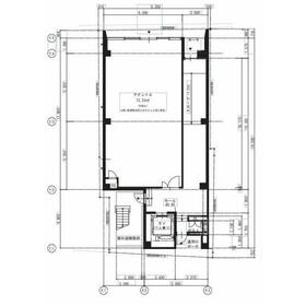
73.33m²
22.18坪/1.9836万円
|
貸店舗
2023年5月(築2年10ヶ月)
|
|
間取図
|
外観
|
<
その他の画像
>
|
| 交通 | 近鉄けいはんな線 生駒駅 徒歩3分 |
|---|
| その他の交通 | 近鉄奈良線 東生駒駅 徒歩17分 近鉄生駒線 菜畑駅 徒歩20分 |
| 所在地 |
奈良県生駒市元町1丁目
|
| 物件種目 |
貸店舗 |
| 賃料 |
44万円 |
管理費等 |
44,000円 |
| 敷金 / 保証金 |
4ヶ月 / なし |
礼金 |
88万円 |
| 敷引 |
- |
坪単価 |
1.9836万円 |
| 保証金償却 |
- |
権利金 |
- |
| 造作譲渡 |
- |
その他一時金 |
なし |
| 維持費等 |
- |
保険等 |
- |
| 使用部分面積 |
73.33m² |
坪数 |
22.18坪 |
| 築年月 |
2023年5月(築2年10ヶ月)
|
階建 / 階 |
5階建 / 1階 |
| 駐車場 |
無 |
バイク置き場 |
- |
| 駐輪場 |
- |
土地面積 |
- |
| 接道状況 |
-
|
用途地域 |
商業地域 |
| 間取り |
ワンルーム |
建物構造 |
鉄骨造 |
| 建物名・部屋番号 |
山田ビル |
| リフォーム履歴 |
- |
| リノベーション履歴 |
- |
| 特記事項 |
居抜き、飲食店可、24時間セキュリティー、IT重説対応物件 |
| 備考 |
賃貸保証等:加入要(USEN TRUST 初回保証料:100% 更新料:10%/年)
管理形態/管理員の勤務形態:-/-
IT重説対応物件
生駒駅南口側、路面テナント!前面ガラス張り☆飲食OK☆居抜き物件☆業種要相談
山田ビル:近鉄けいはんな線生駒駅にも近くて便利。スーパーマーケットKINSHO(近商) 新生駒店まで212mです。周辺に駅が二つあり、交通の利便性が高いです。場所が平坦なのは、ランニングをする上で抑えたいポイントですね。物販向けなので、お気軽にお問い合わせください。初期費用として、礼金は2ヶ月分かかります。スクール向けの物件です。
|
| エネルギー消費性能 |
- |
| 断熱性能 |
- |
| 目安光熱費 |
- |
| バス・トイレ |
トイレ |
| キッチン |
- |
| 設備・サービス |
都市ガス |
| その他 |
- |
| 契約期間 |
2年 |
条件等 |
- |
| 引渡可能時期 |
相談 |
現況 |
空 |
| 更新料 |
- |
物件番号 |
1130666415 |
| 情報公開日 |
2026年1月13日 |
次回更新予定日 |
2026年2月14日 |
| ケータイ用バーコード |
- スマートフォンでこの物件を見る
- スマートフォンからもこの物件をご覧になれます。
|
※「-」と表示されている項目については、情報提供会社にご確認ください。
| 周辺施設 |
スーパーマーケットKINSHO(近商) 新生駒店 |
| 距離 |
212m |
写真を見る |
| 周辺施設 |
ベルテラスいこま |
| 距離 |
291m |
写真を見る |
ここから簡単にお問い合わせをすることができます。
(SSLでの暗号化での送信を希望されるお客さまは
こちら
よりお問い合わせください)
お問い合わせを行う前に
「個人情報の取り扱いについて」を必ずお読みください。
「個人情報の取り扱いについて」に同意いただいた場合は「上記にご同意の上 確認画面へ進む」のボタンをクリックしてください。
個人情報の取り扱いについて
皆さまが送付された個人情報はアットホーム(株)のサーバを経由し、お問い合わせ先の不動産会社にメールまたはFAXにて転送されるためアットホーム(株)にも保管されます。アットホーム(株)で保管された個人情報の取り扱いについては、【こちら】をご覧ください。
また、本画面でご記入いただいた個人情報は、お問い合わせ先の不動産会社でも保管します。 お問い合わせ先の不動産会社が保管する個人情報の取り扱いについては、不動産会社に直接お問い合わせください。
奈良県知事免許(2)第4336号 |
|---|
- 交通:
- 近鉄奈良線/大和西大寺駅 徒歩7分
- 奈良県奈良市佐紀町47-1 岡本ビル1階
- TEL:
- 0742-32-0025
- FAX:
- 0742-32-0026
- 所属団体:
- (一社)兵庫県宅地建物取引業協会会員(公社)近畿地区不動産公正取引協議会加盟
取引態様:仲介  - 50103634
|
- スマートフォンで
この不動産会社を見る

|
- 提携サイト等より掲載されている物件情報につきましては、不動産会社詳細情報にリンクされていないものがあります。
- 物件に関するお問合せは、物件詳細ページの「情報提供会社」に表示されている不動産会社へ直接お願いいたします。
- 間取図は、現況を優先させていただきます。
- 映像は物件の一部を撮影したものです。物件の契約にあたっての最終判断はご自身の判断に基づいて行ってください。
- 仲介手数料について

アットホームは物件情報の適正化に努めております。
内容に誤りがある場合にはこちらへご連絡ください。